深圳深物业御棠上府(光明)首页丨深物业御棠上府楼盘详情_房价_户型_详情
扫描到手机,新闻随时看
扫一扫,用手机看文章
更加方便分享给朋友
深圳【深物业御棠上府】项目介绍
光明区玉塘街道新楼盘深物业·御棠上府,产品面积段为建面约82㎡的3房,93/94㎡的3房和115㎡的4房,115㎡的全南向,可售商品房共484套。目前已出地面多层,毛坯限价4.34万/㎡,更多详情欢迎咨询光明深物业御棠上府开发商售楼处400免费咨询/预约热线:400-992-0669 中介勿扰。

深物业御棠上府位于光明区玉塘街道松白路与长岗三路交汇处西南角,土地使用面积为14901.8㎡,该地块挂牌起始价14.1亿元,2021年11月25日深物业竞得该地块。
据规划显示,项目规划总用地面积约1.5万㎡,总建面约12万㎡,规定计容建面约8.2万㎡,建筑容积率不超过5.5。

其中,住宅约7.5万㎡,包含出售型人才住房约2.1万㎡,共计871户。普通商品房484户,出售型人才房388户,停车位为1050个;物业服务用房150㎡;商业2000㎡。据效果图显示,项目主体除独立占地的9班幼儿园外,由3栋超高层住宅塔楼及沿街商业裙楼构成。
园林效果图

建面约82平的3房、约93/94平的3房、约115平的4房,为100%全南向、全明格局。
比如建面约93平的3房2厅2卫,三开间朝南,通风采光极佳,而且客餐厅为一体化设计,尽量做到了空间零浪费。
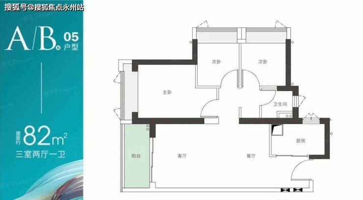
A/B座05户型-建面约82m2 三房两厅一卫

B座06户型-建面约94m2 三房两厅两卫

A/B座04户型—建面约93m2 三房两厅两卫

A座01户型-建面约94m2 三房两厅两卫

A/B座03户型—建面约93m2 三房两厅两卫

A/B座02户型-建面约82m2 三房两厅一卫

A座06户型-建面约114m2 四房两厅两卫

B座01户型-建面约114m2 四房两厅两卫

交通方面|
目前距离最近的6号地铁线长圳站约2公里,远期有规划中的18号线玉塘站(暂定名—原田寮站)和29号线交汇站点在项目附近。

商业配套|
项目最近的商业有田寮炜东城百货、九鸿世纪广场,皆为城中村商业,且在田寮社区利益统筹范围内,后期主要依靠勤诚达K+广场商业,距离500米左右;光明首个沃尔玛就落户在此,从项目前往沃尔玛步行距离900米左右。

教育配套|
项目自带一所九班幼儿园,附近有田寮小学,西侧规划有初中,约1公里有华中师范大学附属光明勤诚达学校(具体学区划分范围以当年教育局公示为准)。

光明御棠上府最大亮点是价格低,性价比高,项目最小户型是82㎡3房,
御棠上府【深物业御棠上府】光明御棠上府开发商售楼处电话:400-992-0669(中介勿扰)
来电可了解楼盘最新动态、房价、在售房源、交楼时间等信息!让你买的放心,住的舒心!
御棠上府开发商售楼处直销_欢迎来电预约享受内部折扣_恭迎品鉴
◆提前来电-预约登记尊享售楼处销售专业讲解〢一对一热情服务〢◆
御棠上府开发商售楼中心〢预约可享内部优惠〢匠心钜制-恭迎品鉴〢
温馨提示:项目没有所谓的“分机号”注意保护个人隐私!谨防上当!看房请务必提前预约,避免临时无人接待,感谢您的配合!
免责声明🔉:
1、本宣传资料仅作为客户邀约邀请,不作为要约或者承诺,对本楼盘配套、交通、学校(建设)规划或者产品介绍,旨在提供相关信息,不意味着本公司对此作出承诺,相关内容不排除因政府相关规划、规定及开发商未能控制原因而发生变化,最终以政府相关部门审批文件为准。
2、以上所发布的户型图与样板间实拍图所示平面仅供参考,具体因楼栋、楼层的差别,局部结构、面积等存在不同,不构成要约内容。户型图与样板间内部实拍图所示家具和电器配置仅供参考,不作为交付标准,最终以买卖合同为准。
3、双方权利义务以双方签订的相关合同为准。
4、相关公共配套设施及规划条件以政府审批的文件为准。
声明:本文由入驻焦点开放平台的作者撰写,除焦点官方账号外,观点仅代表作者本人,不代表焦点立场。
