紫元元大厦(深圳福田)售楼处电话-紫元元大厦户型、周边配套、交通
扫描到手机,新闻随时看
扫一扫,用手机看文章
更加方便分享给朋友
紫元元大厦开发商售楼处电话:400-992-0669(中介勿扰)
预约看房,现场销售置业顾问一对一对接,享受额外优惠!
温馨提示:过来看房需提前来电预约销售,感谢您的配合!
紫元元大厦,择址深圳核心区——福田CBD中轴,荟聚世界级优质配套,塑造出独一无二的世界中心圈层生活封面:工作之余,可以选择参加顶级的潮流盛会,亦可以与世界音乐大师一同探讨音乐的魅力,闲暇时再来一场友谊的比赛,无论是生意的伙伴还是人生的知己,总能在这里发现一个适合彼此的空间。
*效果图

凭栏阅尽灯火阑珊,推窗一睹绿意盎然,去阅繁华,更悦自然。在紫元元大厦向东北方向俯瞰,映入眼帘的便是约147公顷的深圳中心公园,比肩纽约中央公园的极致绿暮,为灯火璀璨的城市增添了一抹清新。
游走其间,木的沉稳,水的活力、花的娇艳,一一入目,时间缓缓流动,在此,以身心对话自然,悠然惬意,邂逅离尘不离城的绿色生活。

紫元元大厦咫尺约1800万㎡科创圈超体,随着深港科创圈规划和河套规划的逐步落地,以及皇岗口岸和福田口岸的加持,片区经济将迎来新的腾飞,而紫元元将成为区域价值跃升的第一受益者,价值红利可期。
紫元元大厦,作为湾区划时代的作品,它推开的,是城市顶级资产的“未来之门”,将领衔湾区资产的发展。世界中心磁聚世界财富,全球资本云集中心地标。存量时代,紫元元大厦,致敬财富时代塔尖阶层。
基础信息介绍
开发商:深圳市苏豪投资有限公司
项目位置:深圳市福田区滨河大道与皇岗路交界西南处
项目占地面积:约5108.68㎡
总建筑面积:60222.21㎡
地上建筑面积:44191.34㎡
产权年限:40年 楼层:共47层
楼层区间(7-29层)
产品:约50-58-68-70㎡的4.5米层高灵动空间
平层产品:112-132㎡天际公寓
车位比:1:0.8(共380个车位数,其中智能车库214个)
梯户比:4梯12/13户 物业管理费:9元/平
售楼处电话:400-992-0669
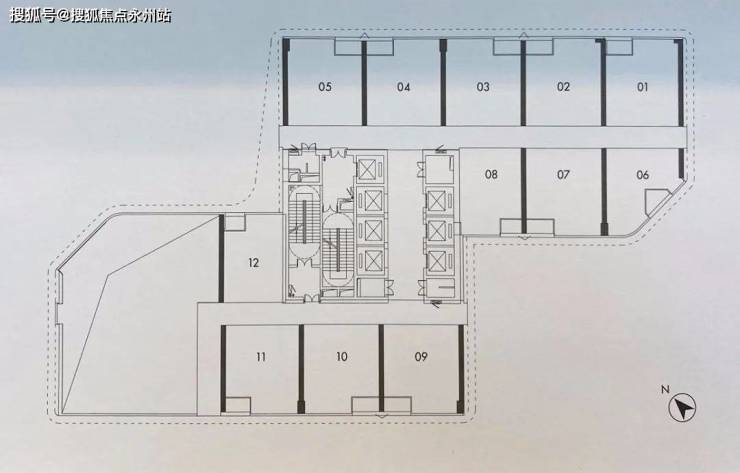
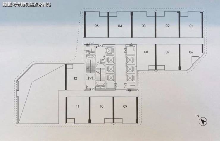
7-29层是商办产品(4.5米层高,LOFT形式精装交房),一层12户
06户型:53㎡两房
08、12户型:54㎡两房
其余户型全部为68㎡的两房
31-47层是公寓产品(3.3米层高),一层8户,4种户型
深圳紫元元大厦开发商售楼处电话:400-992-0669(中介勿扰)
过来本项目营销中心看房,记得提前来电预约,感谢你的配合!
提前预约享受楼盘内场优惠折扣,并安排现场销售一对一服务!
来电可了解楼盘最新动态、房价、在售房源、交楼时间等信息!
免责声明🔉:以上所发布的楼盘相关信息仅供参考,所有图文资料及说明请以最终批文及双方在楼盘现场签署的买卖合同为准;本图文内容如无意中侵犯某方权益,请联系我们将会及时处理。
声明:本文由入驻焦点开放平台的作者撰写,除焦点官方账号外,观点仅代表作者本人,不代表焦点立场。
