深圳绿景尚悦府(福田)首页网站丨绿景尚悦府楼盘详情_房价_户型_详情
扫描到手机,新闻随时看
扫一扫,用手机看文章
更加方便分享给朋友
深圳绿景尚悦府开发商售楼处电话:400-992-0669(中介勿扰)
预约看房,现场销售置业顾问一对一对接,享受额外优惠!
温馨提示:过来看房需提前来电预约销售,感谢您的配合!
尚悦府临近 地铁7号线 “上沙站”、9号线 “下沙站”,一站即达车公庙站,在车公庙可实现 1/7/9/11号地铁线4线换乘,快速抵达深圳各中心区。未来
尚悦府位于福田沙尾片区,原为沙嘴村二期旧改项目,由绿景集团开发,一期项目为绿景红树湾壹号(已入市);二期项目为尚悦府,总房源有990套,其中商品住宅有85户,其余房源均为回迁房,有905户。
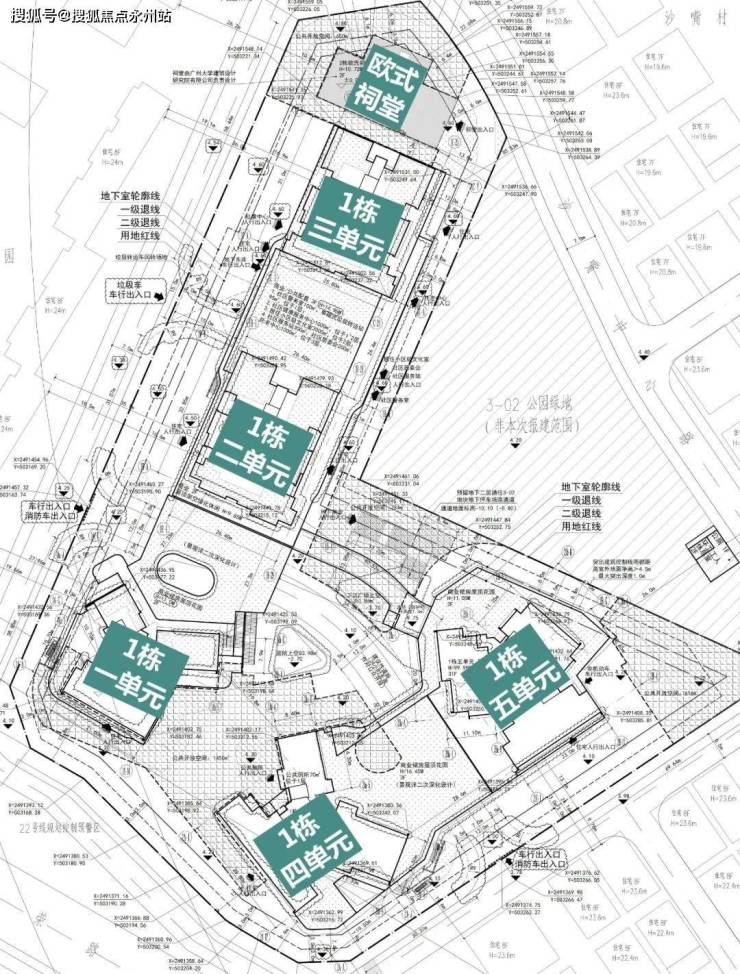
尚悦府由6栋建筑主体组成,其中1栋分为1/2/3/4/5单元,2栋为祠堂,项目总建筑面积163835㎡,计容建面108939㎡,其中住宅建面86961㎡,商业建面11377㎡,容积率6.20,机动车位881个。

福田区 位于深圳市中部,是深圳市的中心城区,同时也是市委、市政府所在地,各种资源配套都十分的丰富且成熟。但同时福田的开发也已接近饱和,所以住宅供应一定程度上都是靠 旧改 推动的。

尚悦府原为沙嘴村二期旧改项目,由绿景集团开发,一期项目为绿景红树湾壹号(已入市);二期项目为尚悦府,总房源有990套,其中商品住宅只有85户,其余房源均为回迁房,有905户。

尚悦府临近 地铁7号线 “上沙站”、9号线 “下沙站”,一站即达车公庙站,在车公庙可实现 1/7/9/11号地铁线4线换乘,快速抵达深圳各中心区。未来,在上沙站还规划有 22号线。地铁出行也非常便利。

绿景尚悦府所在的大金沙片区,属于深圳福田超大规模的城市更新区域,位于福荣路与上沙村路交汇处,是深圳市首个实施连片规划、抱团改造的大片区,也是福田打造 CAZ(中央活力区)扩容的重点区域,交通路网十分完善,通过京港澳高速、滨河大道、福强路等多条城市主干道,可畅达深圳各主要城区,邻近地铁7/9/22号线(规划中)。
项目旁边的中洲商业就高达16万㎡,远超南山海岸城。其中,一期商业体量约8万㎡,即将开业。
更令人期待的是,其中约40%的进驻品牌都是深圳首店或者华南首店!比如有着40年历史的现象级书店——华南首家茑屋书店、国内首座TeamLab未来梦想乐园、寰映Imax影院都确定落地于此。
深圳绿景尚悦府开发商售楼处电话:400-992-0669(中介勿扰)
过来营销中心看房,需要提前来电预约销售,感谢您的配合!
提前预约享受楼盘内场优惠折扣,并安排现场销售一对一服务!
来电可了解楼盘最新动态、房价、在售房源、交楼时间等信息!
免责声明🔉:以上所发布的楼盘相关信息仅供参考,所有图文资料及说明请以最终批文及双方在楼盘现场签署的买卖合同为准;本图文内容如无意中侵犯某方权益,请联系我们将会及时处理
声明:本文由入驻焦点开放平台的作者撰写,除焦点官方账号外,观点仅代表作者本人,不代表焦点立场。
