深圳鸿荣源珈誉玖玺(鸿荣源珈誉玖玺)首页网站丨楼盘详情_房价_户型详情
扫描到手机,新闻随时看
扫一扫,用手机看文章
更加方便分享给朋友
鸿荣源珈誉玖玺最新介绍:备案价、折扣、学区、地铁、交通、户型图、特价房、优缺点、得房率、优惠活动、小区图片、开盘时间、交房时间、周边配套、最新详情等咨询。
深圳鸿荣源珈誉玖玺售楼处电话: 400-992-0669 预约来访下定当天更享折上折!!
(营销中心 | 欢迎来电咨询 | 请提前预约登记看房 | 1:1销售专业讲解)
沙井鸿荣源珈誉玖玺售楼中心热线: 400-992-0669(售楼处)【VIP贵宾专线】
沙井鸿荣源,位于宝安大道于凤塘大道交汇处东南侧,该项目原是"塘尾片区城市更新单元“,由鸿荣源集团一手打造,也号称是第二个壹城中心升级版,地处沙井核心板块,周边1公里内涵盖3个重量级商业(万丰海岸城购物中心+鸿荣源壹方奥特莱斯+华强购物中心),11号地铁线”塘尾站“距离约300米。(深圳鸿荣源珈誉玖玺售楼处电话:400-992-0669)
最新消息:宝安沙井「鸿荣源◆珈誉玖玺」于2024年11月12日取证入市,本次推出8栋/9栋1单元,共525套房源,面积有83-86-89-93-96㎡的3房2卫,110-122-126㎡的4房2厅2卫户型,备案均价5.56万/㎡,备案单价4.93-6.08万/㎡,总价在411-769万/套,计划在2026年底带精装交房,赠送全屋海尔中央空调。
鸿荣源珈誉玖玺也是鸿荣源珈誉府3期住宅,是整个项目的收官之作,本次珈誉加推8栋/9栋1单元,给出了备案价*99*99*96*99折的优惠,综合下来约9.314折,折后均价5.53万/㎡,单价5.41-5.66万/㎡,总价在660-715万/套。
122㎡的4房2厅2卫,折后总价660-682万/套,单价5.41-5.58万/㎡。
137㎡的4房2厅2卫,折后总价694-715万/套,单价5.49-5.66万/㎡。
如需了解更多详情,欢迎来电咨询鸿荣源珈誉玖玺售楼处咨询/预约电话:400-992-0669 中介请勿扰,过来我们营销中心看房务必记得提前来电预约,预约看房的话最终的价格还能更加优惠。

项目总建面约248万㎡,将打造近8000套住宅,其中住宅面积70万㎡,商业面积50万㎡,共分4期开发,是鸿荣源集团全新开发的地标级综合体大盘,涵盖高端住宅、商业办公、星级酒店、优质教育、大型购物中心等业态。
而本次壹方奥莱商业中心,也是鸿荣源”奥特莱斯“产品线的首个项目,商业中心通过空中绿道与塘尾地铁站相连,现代感十足,也是鸿荣源继前海壹方城,龙华壹方天地之后开发的第3个超大商住综合体项目。(深圳鸿荣源珈誉玖玺售楼处电话:400-992-0669)
「鸿荣源◆珈誉玖玺」总占地面积约4.79万㎡,总建筑面积约40.53万㎡,计容建筑面积约27.63万㎡,容积率5.42,绿化率40%,共由10栋总高31-48F住宅组成,其中6栋1/2单元住宅44F,7栋/8栋住宅48F,9栋1单元住宅46F,9栋2单元住宅45F,10栋1单元住宅47F,10栋2单元住宅31F,11栋住宅46F,12栋/13栋住宅48F。
总规划2479户,地下室有3层,规划停车位2795个,车位占比约1:1.127。
想了解更多我们项目近期动态、剩余楼层、底价信息与保留房源,请认准我们售楼处电话/预约热线:400-992-0669 中介勿扰
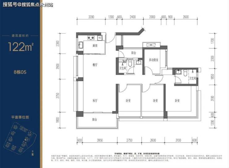
122㎡的4房2厅2卫:设计的是经典竖厅格局,进门入户玄关,客厅4.55米开间,LDKB一体化设计,动静分区,四开间朝南,主卧270°观景飘窗,4个卧室分别做到了主卧13.69㎡/次卧10.17㎡/次卧9.62㎡/次卧7.5㎡(包含墙体飘窗),L型厨房,公卫三段式分离,得房率约75.28%(不含赠送),西南朝向。
126㎡的4房2厅2卫:设计的是横厅南北通透格局,进门入户玄关,客餐厅6.4米开间,LDKB一体化设计,超宽展面,动静分区,五开间朝南,主卧三面观景飘窗,4个卧室分别做到了主卧18.32㎡/次卧10.22㎡/次卧9.1㎡/次卧8.75㎡(包含墙体飘窗),L型厨房,公卫三段式分离,得房率约75.27%(不含赠送),阳台主朝西南向。
169㎡的4房2厅3卫:设计的是竖厅格局,2梯2户,专梯入户,独立入户玄关,客厅4.65米开间,LDKB一体化设计,四开间朝南,双主卧套间,4个卧室分别做到了主卧18.98㎡/套间12㎡/次卧9.35㎡/次卧9.04㎡(包含墙体飘窗),客厅连接次卧出7.47米长的大阳台,看花园全貌景观,二字型厨房带1个生活阳台,公卫三段式分离,得房率68.58%(不含赠送),正南朝向。

199㎡的4房2厅3卫:设计的是竖厅格局,2梯2户,专梯入户,独立入户玄关,客厅6.9米开间,LDKB一体化设计,客厅超大开间,四开间朝南,双主卧套间,4个卧室分别做到了主卧20.28㎡/套间12㎡/次卧11.16㎡/次卧9.18㎡(包含墙体飘窗),客厅出6.9米长的超大阳台,看花园全貌景观,二字型厨房带1个生活阳台,公卫三段式分离,得房率约68.58%(不含赠送),正南朝向。

开发商:深圳市鸿荣源控股(集团)有限公司
物业公司:深圳市鸿荣源物业服务有限公司
物业管理费:5.9元/㎡ 售楼热线:400-992-0669
总占地面积:约4.79万㎡ 总建筑面积:约40.53万㎡
容积率:5.42 绿化率:40% 总户数:2479户
产权年限:2022.5-2092.5年(70年)
总栋数及楼高:10栋,31-44-45-46-47-48层。
梯户比:2梯2户/3梯5户/3梯7户
停车位:2795个 车位占比:1:1.127
交房时间:2026年12月 交付标准:精装修
项目采用围合式布局,约2.9万㎡艺术大园林,采用世界名画“记忆的永恒”为灵感打造,最大楼间距约161米,全龄段子母双泳池。
鸿荣源珈誉玖玺6栋采用纯板楼设计,2梯2户,外立面采用部分铝板设计,单元入户大堂采用大理石地面及花纹石材墙面,奢阔3.15米层高。(深圳鸿荣源珈誉玖玺售楼处电话:400-992-0669)
「鸿荣源◆珈誉玖玺」家门口就是宝安大道及凤塘大道等交通主干道,11号地铁线“塘尾站”,距离约300米,4站到宝安机场,6站到宝中,7站到前海湾,8站到南山,11站到车公庙。鸿荣源珈誉玖玺家门口就是宝安大道及凤塘大道等交通主干道。
学校方面:鸿荣源珈誉府旁边,所规划的2个教育用地,已经正式出了红头文件,为深圳外国语宝安学校(集团)南校区,分别为1所63班九年一贯制学校,1所为27班九年一贯制学校(珈誉玖玺旁边),另外根据宝安区2024年最新的学区划分:
小学学区:划分在桥头学校小学部、塘尾万里学校小学部、滨海小学(集团)福桥小学、立新湖学校小学部、凤凰学校小学部、滨海小学(集团)文昌小学;
初中学区:划分在桥头学校初中部、塘尾万里学校初中部、立新湖学校初中部、福永中学、新安中学(集团)第二外国语学校(初中部)、航星学校初中部、凤凰学校初中部。
虽然同为宝安鸿荣源珈誉府项目,但是因为社区不同,学区划分是有明显区别的,旁边规划的深圳外国语宝安学校南校区仅27个班,后期录取积分应该会非常紧张,另外距离约900米的立新湖学校,在2024年小一的录取积分是86.8分,初一的录取积分是81分,塘尾万里学校在2024年的小一录取积分是100.5分,初一录取积分是94.2分;
按照宝安区教育局公布的积分政策,只要是深圳户籍(其它区)+学区内商品房,基础分100分,深圳宝安户籍+学区内商品房,基础分105分。
商业方面:项目自带50万㎡奥特莱斯商业,汇集了壹方+奥莱的商业模式,在项目北侧还有万丰海岸城近18万㎡的购物中心,这个片区以后也将会是整个沙井最高端最集中的商业购物中心。
鸿荣源的品质一直都是深圳房地产行业的标杆,从龙岗中心城的公园大地,龙华的壹城中心,宝中的鸿荣源熙龙湾,沙井的鸿荣源禧园,布吉的鸿荣源尚峰等等,都是广受买房者喜欢的楼盘,不管是品质还是物业层面都是赞不绝口。
珈誉玖玺的区位板块,是属于沙井的塘尾片区,相对靠近宝中,在板块来看也靠近当前的马安山海岸城商业中心,加上鸿荣源这么大体量的房子,以后也肯定会成为沙井最为核心的区域。(深圳鸿荣源珈誉玖玺售楼处电话:400-992-0669)
项目家门口50万平的壹方奥特莱斯商业,11号线塘尾站距离300米,也是宝安的生命线,配套的学校跟鸿荣源珈誉府1/2期是有区别的,3期珈誉玖玺属于稔田社区,后期大概率只能就读深外宝安南校区27班制的这所学校,虽然学校同属深圳外国语,但是学校班级有限,后期入学会特别紧张,另外最近的就是立新湖学校,总体评分还是上选的。
深圳鸿荣源珈誉玖玺售楼处电话:400-992-0669【售楼中心】
沙井鸿荣源珈誉玖玺营销中心电话:400-992-0669【营销中心】
提前预约售楼处看房,可享受线上预约折扣,一对一专属置业顾问服务。
楼盘详情介绍(楼盘项目怎么样?多少钱一平?什么时候交楼?有什么户型?周边有什么学校?物业费多少?),想了解更详细楼盘资料和最新折扣价格,请拨打售楼处电话400-992-0669,销售会为您详细介绍。
温馨提示:过来营销中心参观样板间请记得提前拨打售楼处400热线预约,感谢您的配合!
声明:本文由入驻焦点开放平台的作者撰写,除焦点官方账号外,观点仅代表作者本人,不代表焦点立场。
