深圳前海锦尚公馆户型面积78-115-162㎡精装|锦尚公馆|项目介绍楼盘最新消息
扫描到手机,新闻随时看
扫一扫,用手机看文章
更加方便分享给朋友
项目基本信息


深圳前海锦尚公馆户型面积78-115-162㎡精装|锦尚公馆|项目介绍楼盘最新消息
【项目名称】前海锦尚公馆
【占地面积】0.93万㎡
【建筑面积】3.44万㎡
【容积率】2.33
【产权年限】40年,2015年-2055年
【开发商电话】4009920669
锦尚公馆值不值得买?
妈湾首发:妈湾留白十年,领驭前海核芯
招商局、前海管理局强强联袂执笔匠造2.9平方公里理想大城
采撷蜚声国际的蛇口生活蓝本,升级城市美好
联通湾区城市群,对话世界的前沿


高端配套:国家博物馆+国际名校,倾情营造全龄友好城区
妈湾,以打造“人文艺术胜地、国际教育高地、世界级湾区商业门户”为目标
引进国家博物馆、荟同学校、深港滨海演艺中心(规划)、国际免税城(规划)、游艇俱乐部(规划)、七星级酒店(规划)等生活美学配套以人为尺度,创造全龄友好的公共服务,营造充满温情的、进阶多元的城区生活。
立体交通:多维交通网,成就塔尖任务的全球商务生活圈

距离5号线仅300米,步行4分钟即达,可前海换乘11、9、1号线,规划有21、26号线,通达全城西部跨海通道,穗莞深、深惠、深港西部快线,贯穿城市经济动脉。
深圳未曾所见:十年前海唯此洋房式美作

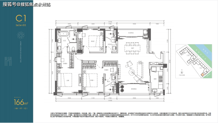
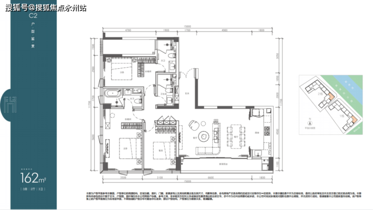
2.9平方公里大城启幕作品,约2.33超低容积率,仅10层洋房式寓所,仅167户;楼盘咨询热线:15012627238 蔡经理
带宽景阳台、通燃气真公寓,灵动多变户型,德系精装交付
现居住类公寓可申请民电,不限购不限贷。

匠心巧思 :人性化精装
玄关鞋柜和衣柜均设置衣物护理机,由表及里呵护健康
抽屉配置指纹锁,便捷安全守护
香樟木层板,特殊肌理质感,驱虫防蛀

周至收纳:全屋收纳系统
充分考虑家庭成员动线与生活需求,合理规划全屋强大完善收纳体系
玄关柜、鞋柜、陈列柜、杂物柜一应俱全
主卧设置超高衣柜,可180°开启,做到对空间的极致利用
意大利简约设计镜柜,正面观感无边框
橱柜柜门采用德国原装进口轮系统,推拉顺滑,持久耐用

圈层社交:风景里的生活社交场
3100㎡漫步式艺术文化街区
屋顶花园,阳光绿意交织的公共开放空间

招商物业:让美好生活实至名归
招商物业直管,国家一级资质
智能化物管体验:Smart科技赋能;Serivice天眼守护;Safe智慧安防;Soft智能家居;楼盘咨询热线:15012627238 蔡经理
湾享家Enjoy One+,专属定制服务

销量引领:一季度公寓销售榜TOP3
自带高光,聚焦全城目光
一往无前,续写当红不让

┊ 丨 ◆ 项目效果图鉴赏 ◆ 丨 ┊


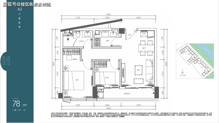
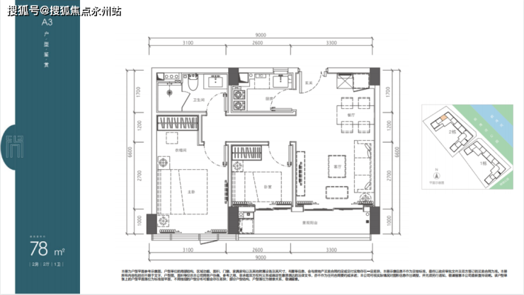
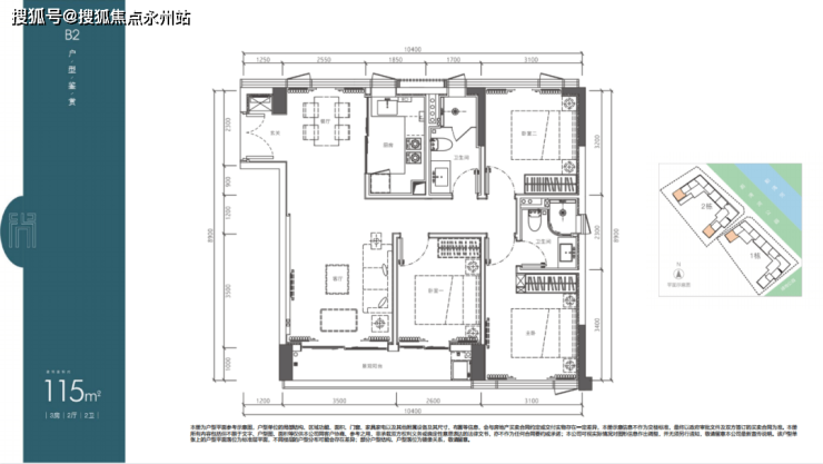
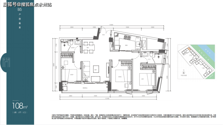
┊ 丨 ◆ 平面图分布图 ◆ 丨 ┊















┊ 丨 ◆ 室内精装效果图 ◆ 丨 ┊


【锦尚公馆开发商售楼中心咨询|预约热线:400-992-0669(中介请勿扰)】
✅ 过来项目营销中心看房,记得提前来电预约,感谢您的配合!
✅ 提前预约享受楼盘内场优惠折扣,并安排现场销售一对一服务!
✅ 来电可了解楼盘最新动态、房价、在售房源、交楼时间等信息!
【免责声明】
· 本文中所提到的“前海锦尚公馆”项目名称均为本项目的推广名,具体备案名可能存在不同。
· 本宣传资料仅作为要约邀请,相关图文内容不排除因政府相关规划、规定及开发商未能控制的原因而发生变化,本公司保留对宣传资料修改的权利,敬请留意最新资料。
·本资料对项目或户型产品的介绍,旨在提供相关信息,不意味着本公司对此作出了承诺,买卖双方的权利义务以双方签订的《商品房买卖合同》及附件等协议为准。
· 本文部分图片来源于国际互联网,版权归原作者所有,如涉及版权等问题,请立即联系我们,我们会给予更改或相关处理。对使用本网站信息和服务所引起的后果,本网站不作任何承诺。
声明:本文由入驻焦点开放平台的作者撰写,除焦点官方账号外,观点仅代表作者本人,不代表焦点立场。
