2025龙华华侨城四海华亭楼盘详情/户型解析与价格体系公告!
扫描到手机,新闻随时看
扫一扫,用手机看文章
更加方便分享给朋友
【华侨城四海华亭】项目前身为“龙胜旧村城市更新单元”,共分5个地块建设,分别是龙胜华府,龙胜尚府,龙胜悦府,龙胜云坊,四海华亭,另外配建1所9年制学校,如今的龙华中学弘毅校区(龙胜学校),项目总占地面积约5.45万㎡,总建筑面积约56万㎡。

占地面积约1.7万㎡,建筑面积约16.4万㎡,容积率6.81,绿化率30.59%,共4栋51-52层高住宅,由1栋1-4单元组成,其中1栋1.2单元是3梯5户设计,1栋3.4单元是4梯6户设计,可售商品房有1044套,车位数1249个。
华侨城四海华亭_营销中心_Vip Tel:400-992-0669 中介勿扰
华侨城·四海华亭为涵盖商业、住宅、公寓的综合体大盘。项目总建筑面积约56.3万平米,共由5个地块组成。项目首推位于05地块四海华亭·龙胜云坊的公寓,总建面约3.7万㎡。其中,《龙胜云坊》项目占比面积约1.17万㎡,规划总建筑面积约12.53万㎡,计容积率面积约9.38万,包含住宅约2.86万㎡,商务公寓约3.69万㎡,商业约2.3万㎡,菜市场约0.15万㎡,另有部分基础配套设施等。
龙华大浪《华侨城四海华亭》,于2022年11月3日取证入市,推出1栋1/2/3/4单元,共1043套住宅房源,面积87㎡的3房1卫,94-97㎡的3房2卫,106-112-121㎡的4房2卫,备案单价5.88万-6.85万/㎡,备案均价6.45万/㎡,总价507万-829万/套,2024年12月31日带精装交房!
最新消息:项目将推出少量工抵房,单价4.5万起带装修,三房总价400万出头,在售约87-95-105-112-120三房与四房!
华侨城四海华亭_Vip Tel:400-992-0669 中介勿扰

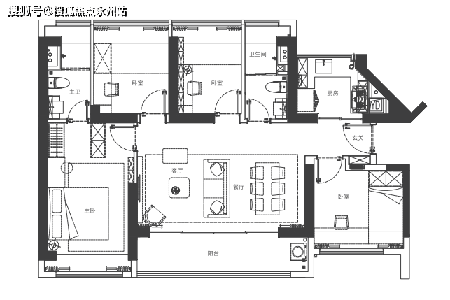
87平米3房1卫,为两开间竖厅:共4条腿,05户型东南朝向,06户型西南朝向。
户型为两开间面宽,采光面比较小,但客厅开间较大;06户型东南向看公园景观,景观面较好,其中1#3单元靠近小区规划的活动场地,或有噪音,但视野更加开阔。1#4单元靠近内部道路,

96㎡ 3房2厅2卫 :典型的竖厅鼻头户,共8条腿,每个楼栋均有分布;
该户型方正,三开间南向,采光比较好,除了次卧和客厅开间小点,其他功能空间都比较合理
朝向上:1#1单元和2单元的03 04户型、1#3/4单元的05户型,都是东南向;1#3/4单元的06户型是西南向,
景观上:东南向均看公园,西南向看城中村和后期高楼

112㎡ 4房2厅2卫:横厅,南北通透的设计。在空间尺度上,卧室和厨房空间比106㎡大些,但公卫对着餐厅。共2条腿,分布在1#3/4单元,均是西南朝向,看城中村。楼栋选择上4单元比3单元稍好,3单元的02户型更靠近城中村

121㎡ 4房2厅2卫:共2条腿,分布在1#3/4单元的01户型
户型是横厅设计,最大的优势是主卧空间特别大,相当于2个房间的面积,可以做独立衣帽间,但最大的缺点也是因为主卧面积太大,其他的功能空间与106-112㎡相差无几,可以说多出来的这10几平米,都放在了主卧上。
楼栋选择上,同112户型类似,3单元的会受到幼儿园影响,北向视野看城中村和工厂区,朝向上都是东南朝向。
四海华亭,位于龙华区大浪街道龙胜路与春华路交汇处东侧,由华侨城集团开发,项目毗邻高峰学校,周边多为城中村,城市面貌稍差,不过基本都已经划入城市更新单元,东南侧约1.2公里是龙华最大的壹方天地购物中心,4号地铁线“龙华站”,“龙胜站”距离都在800米范围内,6号地铁线“上芬站”距离约1.4公里。

项目距离4号线龙华站与龙胜站约700米,步行大约需要10分钟。
从该站出发,3站到达深圳北站,可在深圳北站换乘5/6号线,或搭乘高铁。
另外,未来还规划有地铁18、21、25、27号线,还有6号线支南线、17号线西延在规划建设中,未来可直通罗湖、福田、南山、前海。
项目自带9班幼儿园,自身配建有九年一贯制弘毅学校、幼儿园,周边有龙华中心中小学、高峰学校等,且2km范围有和平实验小学、未来小学。
高峰九年制学区;其成绩多年蝉联龙华前3位置,百年老校,而且去年录取到3类,竞争不是很激烈
龙华区入学政策:在龙华区买房,不需要等交房也可以申请学校,只需要网签合同和不动产查询单即可上学。
项目自带约5万㎡欢乐情景商业,联动周边百万商业旗舰,构筑“超级活力中心”,拥享约200万㎡超级商圈,周边还有壹方天地、华南首个Costco(在建)、红山6979、天虹商场等超百万商业配套,咫尺之间,左右皆繁华。
坐享都市资源配置,八大场馆人文殿堂,演艺馆、展览馆、简上体育馆、大浪文体中心、龙华文体中心、深圳龙华书城、深圳第二图书馆(在建中)、深圳美术新馆(在建中)等,超越福田市民中心的千亿公建配套群,全面提升生活品质。
深圳华侨城四海华亭售楼处电话:400-992-0669 (1对1专线)欢迎咨询最新动态、房价、在售房源、交楼时间等信息,“请务必注意”甄别,我们营销中心只有一个号码,不需要转换分机。
看房请务必提前预约,避免临时无人接待, 感谢您的配合!
龙华·四海华亭欢迎您-预约看房,置业顾问一对一对接在售户型图丨项目介绍丨房源丨_周边配套丨详细解答
温馨提示:项目没有所谓的“分机号”注意保护个人隐私!谨防上当!看房请务必提前预约,避免临时无人接待,感谢您的配合!
声明:本文由入驻焦点开放平台的作者撰写,除焦点官方账号外,观点仅代表作者本人,不代表焦点立场。
