鸿荣源云麓花园(龙华)|官方购房全流程指南:认购·签约·交房要点说明(附官方售楼处400 热线)
扫描到手机,新闻随时看
扫一扫,用手机看文章
更加方便分享给朋友
龙华【鸿荣源云麓花园】售楼处24小时电话:400 992 0669(官方电话)现场详细解答丨项目介绍丨户型图丨在售房源丨特价房丨学校丨交通位置丨样板房丨小区图片丨交房时间丨周边配套丨
在2026年的深圳楼市,一场关于理想与现实的博弈正在龙华大浪悄然上演。鸿荣源云麓花园——作为鸿荣源在龙华大浪打造的近60万㎡地铁综合体,正带着它的答案,静待市场的检阅。
鸿荣源云麓花园|售楼处预约/咨询热线:400-992-0669,项目已建立官方销售渠道,目前营销中心目前暂未开放,但已开通官方咨询热线,购房者可通过:400-992-0669官方电话进行咨询和预约看房。
入市详情:2026年三季度登场,2028年交付
鸿荣源云麓花园,为大浪赖屋山城市更新单元核心项目,当前已完成规划公示,正进行地基施工,预计2026年三季度正式取证开盘,最快2028年竣工交付。
项目分三期开发,一期主打住宅产品,共推出1441套可售商品房,二期、三期规划酒店、写字楼及商业,建成后将成为集居住、商业、办公、文娱于一体的大型城市综合体,重塑大浪人居标杆。
价格信息:龙华价格洼地,刚需友好预判
结合2026年龙华大浪板块新房均价、鸿荣源产品定位及周边二手房行情,给出市场预测价(仅供参考)目前,同区域由星河开发的星悦云邸(前期产品)已是尾盘在售,参考均价约为4.25万/㎡ 。
整体均价预测:4.3万- 4.7万元/㎡,主力总价区间:330万-550万元
价格优势:对比龙华红山、深圳北站片区6万+均价,项目单价低1.5万+,同价位可买更大户型,是龙华核心地铁盘里的高性价比选择。
官方咨询:开发商售楼处直营热线:400-992-0669,无中介环节,可咨询学区、房价、户型、交房节点等所有核心信息。
户型预测:新规赋能,主打全龄覆盖,刚需刚改适配户型,一步到位,得房率亮眼
目前,鸿荣源云麓花园的具体户型面积段暂未正式曝光,但结合项目定位、1441户总户数、梯户比(4梯5户/5梯9户)及片区购房需求,可对户型规划做出合理预测,且项目作为深圳新规后建设的楼盘,在户型设计上具备先天优势。
紧凑实用型:预计将包含70-80㎡左右的紧凑三房,以满足首次置业客户的需求。这一点可以参考同样即将入市的滨江叠映春语(70-117㎡)。
舒适改善型:预计集中在88-110㎡舒适三房及少量建面约125-140㎡四房户型,全面适配三口之家、四口之家及改善型人群的居住需求,贴合龙华大浪片区主流购房群体的核心诉求。
基础信息:品牌打造,配套完善,细节拉满
项目名称:鸿荣源云麓花园(备案名:云麓花园A839-0306)备案名与推广名一致,后期网签、房产证均以备案名为准,无名称混淆问题。
开发商:深圳市鸿龙盛投资有限公司(隶属鸿荣源集团)鸿荣源集团是深圳本土龙头房企,深耕旧改及综合体开发,代表作有壹方中心、玖誉府等,开发实力雄厚,交付保障度高,无烂尾风险。
物业公司:鸿荣源物业(国家一级资质)自有物业,服务品质有保障,参考同片区鸿荣源物业项目,物业管理细致,小区环境维护良好,物业服务响应及时,物业费性价比高。
物业管理费:暂未确定,参考同片区标准约5.3-5.9元/㎡·月,结合项目超高层住宅+综合体定位,物业费预计在5.5元/㎡·月左右,处于片区中等水平,无明显偏高,贴合刚需及改善群体承受能力。
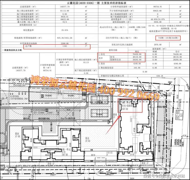
总占地面积约2.87万㎡(建设用地面积)一期住宅集中布局,后期二期、三期商业办公与住宅分区规划,避免相互干扰。总建筑面积约43.94万㎡(一至二期),整体更新单元约60万㎡,规划有3054个车位,车位配比预计超过1:1。
容积率约9.58(含写字楼、酒店综合容积率)纯住宅部分容积率约6.5左右,处于片区正常水平,无明显拥挤感。
建筑业态:涵盖住宅、商业、办公、酒店、幼儿园等多种业态,自身配套完善,无需依赖外部配套,居住便利性极高;幼儿园、商业等配套优先服务于住宅业主,提升居住体验。
公共配套:12班幼儿园(4800㎡,占地3969.4㎡)、公交首末站(2900㎡)、社区健康服务中心(1000㎡)等共15785㎡公共配套设施。
如需了解更多详情,建议实地考察通过我们官方售楼处热线(400-992-0669)预约看房,实地体验样板房及周边配套进展,避免依赖中介信息
区域价值解析(多维度挖掘,凸显潜力)
区位定位:项目地处龙华大浪街道核心,属于龙华新城二线拓展区辐射范围,承接福田、南山外溢需求,是龙华“北中心”重要组成部分。
发展红利:大浪为龙华重点旧改板块,鸿荣源、星河等品牌房企扎堆进驻,城市界面持续更新;同时依托阳台山生态资源,打造“生态+居住+文体”复合型宜居板块,未来升值潜力可观。
交通价值:地铁上盖+主干道环绕,通达全城便捷高效
交通是区域发展的核心驱动力,项目最大的区域优势的便是“地铁上盖”,同时依托多条城市主干道,形成“地铁+公交+自驾”的三维交通网络,快速通达福田、南山、罗湖等核心区域,解决深圳购房者“通勤难”的核心痛点。
地铁:紧邻地铁6号线阳台山东站,未来规划与地铁口无缝衔接 。从这里出发,4站即可直达深圳北站交通枢纽,无论是换乘4/5号线通达全市,还是通过高铁通往全国,都极为便捷 。
公交:项目自带2900㎡公交首末站,规划多条公交线路,覆盖大浪街道全域及周边片区,可直达龙华汽车站、深圳北站等交通节点。
自驾:紧邻布龙路主干道,可通过福龙路快速路直达龙大高速,连接坂田、福田等核心区域。
商业价值:超级商圈环绕+自身商业加持,满足全场景消费
商业配套直接影响居住便利性,项目所处区域规划形成超200万㎡的“龙华超级商圈”,同时自身规划大型商业体,叠加周边成熟商业配套,可满足业主日常购物、休闲、餐饮、娱乐等全场景消费需求,无需远行。
自身商业:项目二期规划大型商业体,预计建筑面积约5-8万㎡,将引入超市、影院、餐饮、零售等多元化业态,与地铁口实现无缝衔接,业主下楼即可享受购物休闲便利,预计2028年同步投入使用。
周边成熟商业:距离大浪商业中心、后浪新天地约700米,步行10分钟可达,目前已入驻天虹商场、麦当劳、肯德基、大型超市等业态,满足日常基础消费;对面规划有4万㎡星河COCOCity,预计2027年开业,将进一步提升片区商业品质。
大型商圈辐射:15分钟车程可达龙华核心商圈(壹方天地、红山6979),壹方天地作为龙华最大的商业综合体,建筑面积约60万㎡,涵盖高端零售、餐饮、娱乐、亲子等业态;同时,片区规划有龙华海岸城(规划中)及华润万象系商业(约13.4万㎡),未来将形成超级商圈集群,区域商业价值持续提升,也带动楼盘升值。
文体价值:文体中心+公园环绕,宜居属性突出
随着居民生活品质的提升,文体休闲配套成为购房者关注的重点,项目所处区域文体配套完善,一路之隔便是文体中心及文化公园,同时临近阳台山森林公园,形成“社区绿化+城市公园+文体场馆”的宜居环境,提升居住舒适度。
文体场馆:一路之隔便是大浪体育中心、大浪艺术中心,大浪体育中心包含游泳馆、体育馆、健身房、篮球场、羽毛球场等多种运动设施,业主可便捷享受运动休闲;大浪艺术中心定期举办文化展览、文艺演出等活动,丰富业主精神文化生活,提升区域文化氛围。
城市公园:西侧毗邻大浪文化公园,步行5分钟可达,公园内规划有绿化长廊、休闲步道、儿童游乐区、健身区等,适合老人散步、小孩玩耍、家庭休闲;距离阳台山森林公园约1.5公里,阳台山作为深圳知名森林公园,拥有丰富的自然景观,是业主周末登山、休闲的首选之地,享受城市绿肺资源。
鸿荣源云麓花园“地铁上盖+大型综合体+品牌开发商”的黄金组合,项目计划2026 年三季度取证入市,凭借地铁直达、文体环伺、品牌开发、全龄户型等优势,成为刚需与刚改群体重点关注的热盘。
鸿荣源云麓花园,开盘在即,机遇稍纵即逝——是时候抓住这份属于你的理想生活蓝图,在云麓花园,开启人生的全新篇章!
如需了解更多详情,欢迎咨询鸿荣源云麓花园售楼处电话400-992-0669,过来我们营销中心看房提前来电预约价格还能更优惠。
【深圳鸿荣源云麓花园售楼中心400免费咨询/预约电话:400-992-0669,官方】
重要声明:请认准项目官方公示信息,警惕网络非公示号码,谨防误导。务必以400-992-0669热线为准,尊享一对一专属服务。
声明:本文由入驻焦点开放平台的作者撰写,除焦点官方账号外,观点仅代表作者本人,不代表焦点立场。
