中信城开红树湾(欢迎您)深圳福田中信城开红树湾地址-房价_户型_学校_楼盘详情
扫描到手机,新闻随时看
扫一扫,用手机看文章
更加方便分享给朋友
中信城开红树湾开发商售楼处电话:400-992-0669(中介勿扰)
预约看房,现场销售置业顾问一对一对接,享受额外优惠!
温馨提示:过来看房需提前来电预约销售,感谢您的配合!

地铁:
三号延长线福保站去年已经开通,距离1.3公里。
学校:
周边配套小学是福苑小学(公办),初中是福田外国语中学(原名福田保税区实验学校);幼儿园则在距离项目约350米处有福田第八幼儿园。
商超:
楼下自带商业,目前距离比较近的益田中心广场,中港城的CTMALL。
医院:
项目距离最近的是福田妇幼保健院。
公园:
项目隔壁就是最大的湿地公园-福田红树林湿地公园,运动休闲都能满足。
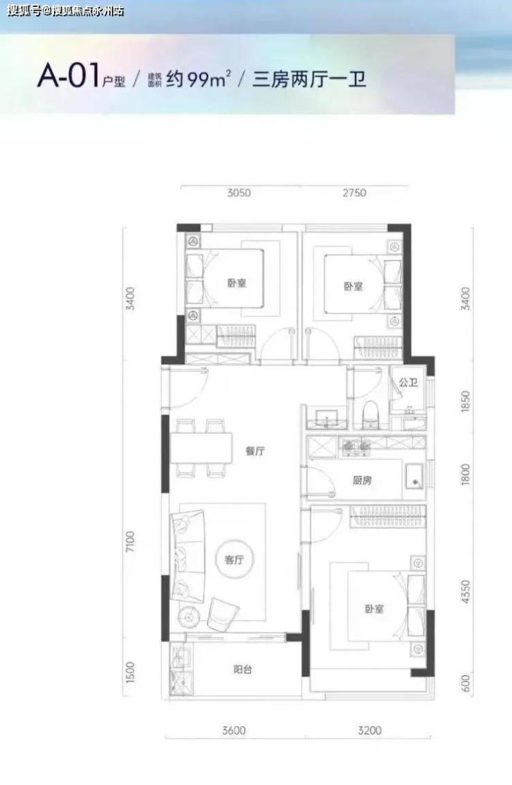
户型鉴赏
红树湾主推户型为79-143㎡单,共397套房源,其中小户型1-2房主要分布在H座、J座,从户型分布上来看,主力户型为102-119㎡的3房户型,135-143㎡的4房户型和60㎡的1房户型较少。梯户比方面,多为2梯2户、2梯3户,H座多为小户型则是2梯6户。
项目户型面积段跨度大、选择空间大,刚需和改善型购房者都可以关注。不过部分户型不是很方正,可能会影响使用率。
3房2厅1卫
约93-99㎡
3房2厅2卫
约103-104-105-112-111-114-115-119㎡
中信城开红树湾开发商售楼处电话:400-992-0669(中介勿扰)
过来本项目营销中心看房,记得提前来电预约,感谢你的配合!
提前预约享受楼盘内场优惠折扣,并安排现场销售一对一服务!
来电可了解楼盘最新动态、房价、在售房源、交楼时间等信息!
免责声明🔉:以上所发布的楼盘相关信息仅供参考,所有图文资料及说明请以最终批文及双方在楼盘现场签署的买卖合同为准;本图文内容如无意中侵犯某方权益,请联系我们将会及时处理。
声明:本文由入驻焦点开放平台的作者撰写,除焦点官方账号外,观点仅代表作者本人,不代表焦点立场。
