金光华凤凰九里售楼处_金光华凤凰九里_金光华凤凰九里楼盘最新详情_户型_配套_价格
扫描到手机,新闻随时看
扫一扫,用手机看文章
更加方便分享给朋友
(深圳龙岗)金光华凤凰九里售楼处电话:400-992-0669【售楼中心】
平湖金光华凤凰九里营销中心电话:400-992-0669【营销中心】
提前预约售楼处看房,可享受线上预约折扣,一对一专属置业顾问服务。
楼盘详情介绍(楼盘项目怎么样?多少钱一平?什么时候交楼?有什么户型?周边有什么学校?物业费多少?),想了解更详细楼盘资料和最新折扣价格,请拨打官方售楼处电话400-992-0669,销售会为您详细介绍。
金光华凤凰九里,位于龙岗区平湖街道,由深圳大承企业管理有限公司开发建设,为平湖凤凰工业园旧改其中两地块,两个地块加起来将提供1992套房源,其中保障性住房400户,可售商品住宅1592户。
项目位于龙岗区平湖街道凤凰大道与鹅岭路交汇处西侧,北侧紧挨凤凰大道,西侧是正在动工的信城缙学府,东南侧是鹅公岭社区公园,东北侧靠近东莞凤岗。(深圳金光华凤凰九里售楼处电话:400-992-0669)
金光华凤凰九里,于2023年11月23日取证入市,推售面积68㎡的2房1卫,83-85㎡的3房2卫,106㎡的4房2卫户型,备案均价4.21万/㎡,备案单价3.72-4.9万/㎡,总价263-522万/套, 折后单价3.1万/㎡,总价210万起,计划2026年3月带精装交付,金光华凤凰九里_Vip Tel:400-992-0669 中介勿扰
项目共分7个地块开发,总占地面积约11万㎡,其中开发建设用地面积约8.18万㎡,总建筑面积约48.95万㎡,容积率6.0,共由20栋超高层住宅+1栋办公楼组成,总房源量超4700套。
如需了解更多详情,欢迎咨询金光华凤凰九里售楼处电话400-992-0669,过来我们营销中心看房提前来电预约价格还能更优惠。
【金光华凤凰九里售楼中心400免费咨询/预约电话:400-992-0669,中介勿扰】
温馨提示:过来营销中心参观样板间请记得提前拨打售楼处400热线预约,感谢您的配合!
67㎡的2房2厅1卫,设计的是竖厅格局,S墙设计预留冰箱位,U型厨房,卫生间三段式分离设计,东南朝向。
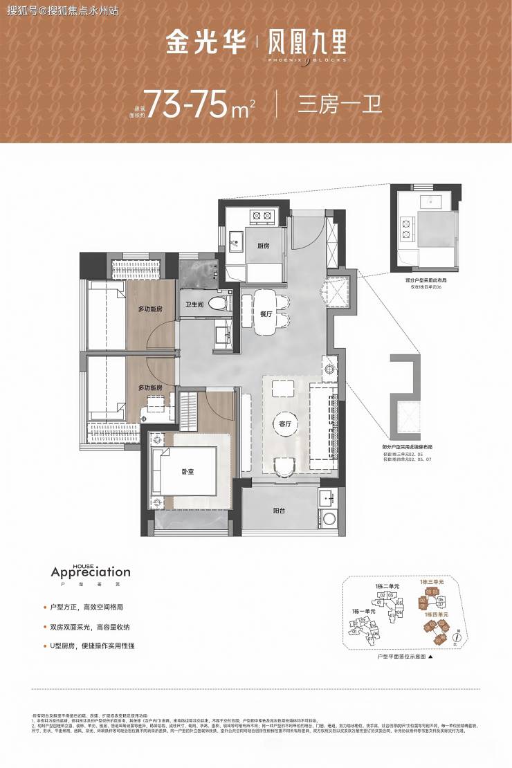
73-75㎡的3房2厅1卫,设计的是竖厅格局,S墙设计预留冰箱位,双次卧双面采光,U型厨房,卫生间三段式分离设计,有西南朝向及东南朝向。
83-85㎡的3房2厅2卫,设计的是竖厅格局,S墙设计预留冰箱位,四开间朝南,主卧双窗户南北对流,U型厨房,有西南朝向及东南朝向。
84-85㎡的3房2厅2卫,设计的是竖厅南北通透格局,主卧双飘窗设计,U型厨房,客厅阳台主朝西北、东北向。
106㎡的4房2厅2卫,设计的是竖厅格局,S墙设计预留冰箱位,四开间朝南,U型厨房,客卫三段式分离设计,西南朝向。
其中01地块:用地性质为二类居住用地+商业用地,总占地面积约2.17万㎡,容积率6.5,其中住宅面积95980㎡(包含出售型安居商品房29877㎡),商业办公及旅馆业建筑4.1万㎡,配建1所12班幼儿园。
其中02地块:用地性质为二类居住用地,总占地面积约1.41万㎡,容积率5.8,其中住宅面积77550㎡。
其中03地块:用地性质为二类居住用地,总占地面积约1.41万㎡,容积率6.3,其中住宅面积77520㎡。
其中04地块:用地性质为二类居住用地,总占地面积约1.74万㎡,容积率5.6,其中住宅面积95820㎡,配建1所9班幼儿园。
其中05地块:用地性质为二类居住用地,总占地面积约1.45万㎡,容积率5.5,其中住宅面积79940㎡。
其中06地块:建设1所九年制45班公办学校。
其中07地块:公园绿地,占地面积约0.77万㎡。

项目引入花园城市概念,定制规划社区慢行道系统,打造成为城市公园剧场,并以双慢行道、三处公园、三重休闲空间、五大花街景轴,让城市与自然联动,让业主近享社区约10万㎡超级绿量。
主力面积约67-106㎡ 2-4房,户型为通透格局、多开间朝南向,全屋多飘窗、多维收纳系统设计。
小区信息简介
项目规划了约500米的立体城市连廊系统,串联全龄教育、精致商业、品质人居、活力运动、公园休闲等功能板块。
社区环境:小区重点规划约6000㎡有氧体育活动场地,通过双层立体化集中布置,以天桥串联起运动社区的各个场地与专属社区,给予更多大城美好体验。
游泳馆、篮球场、mini足球场、儿童游乐场地、健身活动场地等活力功能区;
花园会客厅、主题书吧等社区无界泛会所,满足业主游泳、球赛、健身、童乐及兴趣社交等乐活需求。
金光华凤凰九里引入花园城市概念,定制规划社区慢行道系统,打造成为城市公园剧场,并以双慢行道、三处公园、三重休闲空间、五大花街景轴,将整个大城无缝衔接起来。
业主可近享社区约10万㎡超级绿量,在生态、运动、社交上,收获全新的居住体验。(深圳金光华凤凰九里售楼处电话:400-992-0669)
项目规划有凤凰九里公园和集市公园,其中凤凰九里公园涵盖约10万㎡自然山体公园与山脚约4900㎡人文公园,设置约1公里登山道、各年龄段儿童乐园、休闲健身广场、篮球场、羽毛球场等,满足全龄段休闲娱乐需求。
集市公园更具艺术气息,其功能包含可路演的星空舞台、可露营野炊的艺术休憩草坡等,以后在自家门口就能享受到野趣山园的美好时光。
此外还有无界社交泛会所,包含儿童活动、健康活动、休闲洽谈、休闲棋牌等多功能,让业主们在此欢聚,碰撞思想,以轻松的姿态实现同频社交。
项目配套信息
交通方面,当前最近的10号地铁线“双拥街站”距离约3公里,骑行时间约11分钟;周边还有正在规划建设中的17号地铁线“鹅公岭站”,以及18号地铁线“良安田站”,深惠城际“平湖枢纽”,深大城际“白泥坑枢纽”。
商业方面,项目内还规划了约1.8万㎡的Minimall商业,采用开放式街区设计,将打造成为深圳版的The Commons。
项目临近建面约30万㎡的万达广场,接近于西部最火的壹方城的体量,周边还有平湖天虹、华盛奥特莱斯、凤凰城购物中心等时尚购物天地,吃喝玩乐一应俱全。
教育资源方面,项目西侧规划九年一贯制公立学校,内设图书馆、体育馆、文体专业教室等教育设施,同时项目内配建一所12班+一所9班幼儿园。项目周边还有平湖实验学校、龙岗区实验高级中学,优享近距离的一站式高质量教育。(具体学位划分以教育局公布信息为准)
文化中心:项目还近邻平湖北部新城文化中心(规划中),总建面约3万㎡,含图书馆、文化馆、体验中心,未来孩子能日常浸染在浓厚的人文氛围中,精神世界更丰富。
医疗配套方面,深圳大学附属华南医院、深圳市龙岗区第五人民医院、暨南大学附属深圳华侨医院、深圳市第三人民医院等;
休闲生态方面,项目周边环绕约88万㎡凤凰山国家矿山公园、约300万㎡平湖生态园、凤凰山高尔夫球场、雁湖公园、雁田水库等自然生态,亦有鹅公岭社区公园近在咫尺,给予便捷的盎然绿意生活体验。
28载金光华 以大城经验升级理想城市
秉承“焕新美好城市,专筑品质生活”理念,致力“成为粤港澳大湾区高品质城市综合运营商”。目前,集团已打造多个标杆作品,筹备开发大型项目总数达20余个,规划建设面积超1000万㎡。
从深圳第一家无缝连接地铁的大型国际购物中心——金光华广场,到圳央墅区溪山君樾、龙岸君粼,28载金光华以大城经验升级理想城市。
尊崇专业物管 承载大城美好生活
光华物业,金光华集团旗下子公司,24载专业物管经验沉淀,以前瞻视角为项目量身打造“king+”生活服务体系,赋予美好大城生活体验。
金光华凤凰九里售楼处预约咨询电话:400-992-0669(售楼中心24小时电话)
龙岗金光华凤凰九里开发商售楼处电话:400-992-0669(售楼中心)
平湖金光华凤凰九里售楼处电话:400-992-0669(售楼中心)
金光华凤凰九里售楼处电话:400-992-0669(营销中心)
深圳【金光华凤凰九里】—「开发商售楼处」—「欢迎您!」
来电可了解楼盘最新动态、房价、在售房源、交楼时间等信息!让你买的放心,住的舒心!
注意:本项目不收任何费用,售楼中心〢欢迎来电咨询〢安全通话隐藏真实号码
声明:本文由入驻焦点开放平台的作者撰写,除焦点官方账号外,观点仅代表作者本人,不代表焦点立场。
