一文读懂深圳南山丹华公馆值不值得买?深入剖析丹华公馆优缺点?
扫描到手机,新闻随时看
扫一扫,用手机看文章
更加方便分享给朋友
丹华公馆开发商售楼处电话:400-992-0669(中介勿扰)
预约看房,现场销售置业顾问一对一对接,享受额外优惠!
温馨提示:过来看房需提前来电预约销售,感谢您的配合!
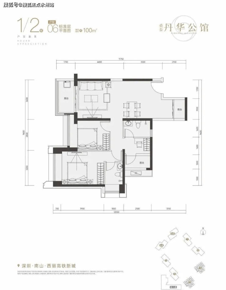
丹华公馆项目推售面积为58-101㎡1-4房住宅,其中58㎡户型,层高3.9米(可做复式四房,现场打造了1-4房的样板间),总价约380万,单价6.55万/㎡起;101㎡三房,层高2.95米,总价670万,单价6.63万/㎡起!无需名额,直接购买!首付118万起,买深中创新学府住宅!





项目特点是小户型低总价上车南山,留仙洞这个区域目前也较少商品房住宅,不过需要注意的是项目为R3用地性质,但是学位积分与R2没有区别。
1、该地块的用途为R3(三类住宅用地),房本上会写土地性质为“宿舍”,不过它跟住宅是完全一样的,70年产权、有限购、可贷款30年、带学区...
2、项目的学区就是旁边的深中南山创新学校(九年制)

丹华公馆基础信息
【总占地】约40346.08㎡
【总建面】约319013.64㎡
【绿化率】30%
【产品套数】1795套
【产品面积】约58-101㎡
【层高】58㎡层高3.9米,101㎡层高2.95米
【产权年限】70年(2017年12月22日至2087年12月21日)
【开发商电话】4008113080
【物业费】5.9元
【发展商】深圳市桑泰房地产开发有限公司
【物业公司】深圳市厚德物业服务有限公司
【售楼处电话】:400-992-0669
户型鉴赏






项目概述:
丹华公馆由桑泰集团开发,占地面积约4.5万㎡,规划总建筑面积约29万㎡,规划为8栋住宅和1栋幼儿园。住宅层高46层,容积率5.51,户数3019户,车位2000个,预计2025年5月31日交房。
项目与玖裕茗院紧邻,不过玖裕茗院仅有3栋楼,丹华公馆则是纯正的大型社区,居住氛围更加浓厚,配套也相对会齐全。

项目周边有两条地铁,5号线的留仙洞站(距离较远,步行距离1.8公里)和13号线(建设中,预计2023年年底开通)石鼓站(距离约900米,步行10分钟左右),到年末开通后,轨道交通出行较为方便。
根据规划,西丽站设有13个站台25条线路,比深圳北站多出2个站台5条线路,将超越深圳北站成为深圳第一大高铁站,将引入赣深客专、深茂铁路、深汕铁路、深珠城际 4条高铁 , 深惠城际、深莞增城际、2条珠三角城际铁路和轨道13、15、27、29号线 4条城市轨道。
【交通配套】
建成后将成为深圳市重要铁路主客运站、综合交通枢纽和中心节点,届时将形成交通枢纽站,多高铁、城际、轨道交通汇集,加强了周边地区的价值属性。

【商业】
丹华公馆距离云城万科里购物中心约800米,云城万科里位于百万综合体万科云城内,建筑面积约8万㎡,日常基本生活需求可以得到满足。此外,项目1.5公里范围内还有悦方广场,3公里内有天虹商场和中洲购物中心。
【教育】
按最新学区划定范围,丹华公馆位于深中南山创新学校的招生范围内,距离非常近。南山创新学校2022南山中考最高590分,各科A+均在65%以上。是妥妥的名校。


此外,项目还自带一所幼儿园,对面的中兴公寓里还有两所幼儿园,分别为创新曼京幼儿园和留仙嘉园幼儿园,均为民办幼儿园,教育资源还是不错的。
【生态】
丹华公馆一路之隔便是西丽生态公园,举步可达相当于自带了一大片花园。除此之外片区内还有西丽水库、塘朗山公园等生态公园景区,以及深圳野生动物园和西丽高尔夫乡村俱乐部等人文景观资源。

深圳丹华公馆开发商售楼处电话:400-992-0669(中介勿扰)
过来本项目营销中心看房,记得提前来电预约,感谢你的配合!
提前预约享受楼盘内场优惠折扣,并安排现场销售一对一服务!
来电可了解楼盘最新动态、房价、在售房源、交楼时间等信息!
免责声明🔉:以上所发布的楼盘相关信息仅供参考,所有图文资料及说明请以最终批文及双方在楼盘现场签署的买卖合同为准;本图文内容如无意中侵犯某方权益,请联系我们将会及时处理。
声明:本文由入驻焦点开放平台的作者撰写,除焦点官方账号外,观点仅代表作者本人,不代表焦点立场。
