2025松茂御城二期首页网站-(松茂御城二期)楼盘详情-最新房价-户型配套-容积率-停车位
扫描到手机,新闻随时看
扫一扫,用手机看文章
更加方便分享给朋友
✨ 松茂御城二期预约通道开启,已认证,安全无忧咨询热线 ✨
✅松茂御城二期售楼处丨开发商丨营销中心统一热线:400-992-0669(全程认证,无分机号)
✅ 通话自动隐藏号码,保护个人隐私,谨防非渠道诈骗
光明松茂御城二期最新价格、楼盘详情及加推信息解析!
光明【松茂御城二期】以取证入市,首推1栋B/G/H/E 座共约333套,占总房源的27%,主力为81-135㎡三至五房,其中1栋E座为楼王(2梯4户),1 栋A/H座为2梯6户,其余为2梯5户设计。
项目是整个光明唯二带深中、深实验、光明实验三大名校学区的新房,全部都是总高31-32层的住宅,也是准现房,这次最大的靓点是相对于一期,二期81平做到了3房2卫,89平做到了4房2卫户型。
松茂御城:400-992-0669 中介勿扰
入市时间与房源信息
项目已于8月27日取得预售许可证,并于8月28日开放实体样板间并启动认筹,首批推出1栋 B/G/H/E 座共 333 套房源,主力户型为 81㎡三房两厅两卫、89-109㎡四房两厅两卫、135㎡五房两厅两卫,总房源量1225套,预计2026年9月精装交付(合同约定2027年2月,实际提前至2026年底以满足学位申请需求)
【尊享预约】 拨打开发商售楼处热线电话:400 992 0669 预约专属看房通道,可享豪宅定制礼包与开发商额外 98 折优惠。
备案价与折后价对比
项目名备案均价约4.44万 /㎡,备案单价区间3.79-5.09万/㎡,总价304-685万/套,实际销售折扣力度达6.55-7.5折,折后单价3.2万/㎡起,总价280万起即可购买精装三房。具体户型价格如下:
81㎡三房两厅两卫:折后总价284-312万,单价3.46-3.80万/㎡。
89㎡四房两厅两卫:折后总价308-345万,单价3.56-3.87万/㎡,为光明唯一89㎡标准四房户型。
135㎡五房两厅两卫:折后总价约460万,单价3.4万/㎡左右,适合改善家庭。
价格竞争力:对比光明中心区5万+/㎡的均价,二期价格低约30%,且为精装准现房,资金占用成本显著降低。例如,82㎡三房首付15% 仅需42万,月供约1.05 万,适合南山-光明通勤的年轻家庭。
81㎡三房两厅两卫(1栋H座01户型)
布局:竖厅南北通透,四开间朝南,阳台东北向直面园林,避免西晒。
空间尺度:主卧12.76㎡(含飘窗)、次卧7.57㎡、书房7.16㎡,U型厨房操作动线流畅,卫生间干湿分离。
适用场景:首付42万起(首套15%),月供约1万元,适合南山科技园通勤的年轻家庭。
89㎡四房两厅两卫(1栋B座01户型)
布局:竖厅南北通透,客厅3.5米开间连接东南向阳台(5.25㎡),但需注意阳台直面松白路,可能存在噪音。
空间优化:主卧12.63㎡套间设计,次卧可放下1.5米床,多出的房间可改造为儿童游乐区。
选房建议:优先选择中高楼层(15层以上),搭配双层隔音玻璃可降低噪音影响。
109㎡四房两厅两卫(1栋G座02户型)
布局:东南朝向看园林,客厅3.9米开间连接6.43㎡景观阳台,主卧15.55㎡带独立卫浴和衣帽间。
改善亮点:独立入户玄关增强归家仪式感,次卧面积均超9㎡,适合对空间品质有要求的家庭。
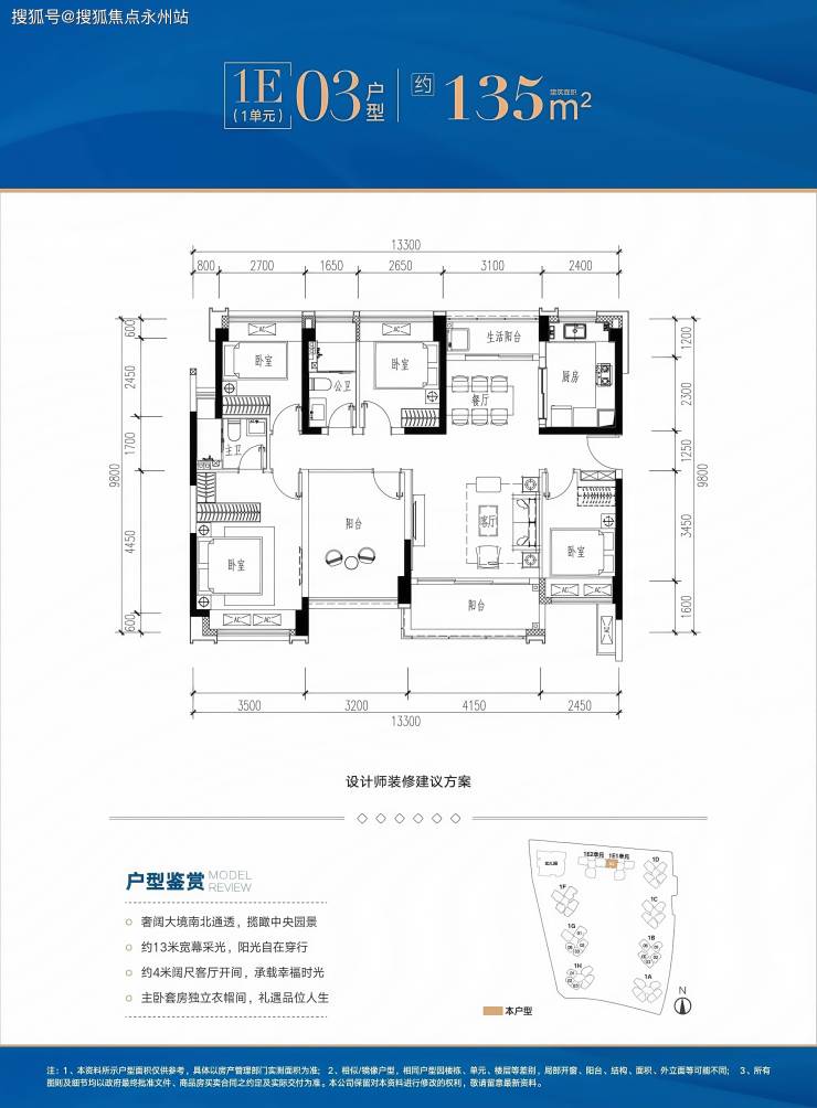
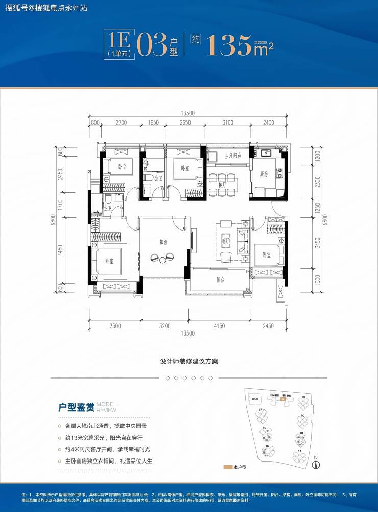
135㎡五房两厅两卫(1栋E座03户型)
楼王配置:正南朝向俯瞰2万㎡园林,南北双阳台设计(南向观景、北向生活),主卧17.67㎡套间带飘窗。
空间奢阔:五间卧室面积均在8.26-14.24㎡,客餐厅一体化设计,适合多代同堂或商务接待需求。
项目由松茂集团开发,占地4.53万㎡,建面29.78万㎡,容积率4.67,绿化率40%。分2期建设,风雨连廊连接。规划2130户住宅,停车位2321个,车位比1:1.09。
松茂御城1期,占地1.4万㎡,建面10.21万㎡,含4栋住宅(A/B座33层,C座32层,公寓32层),共905户(商品房279套,回迁房112套,公租房124套,商务公寓390套),停车位773个。
松茂御城2期,占地面积3.13万㎡,建筑面积20.74万㎡,计容面积16.21万㎡,容积率4.55,绿化率40%。由8栋住宅组成,其中6栋32层,2栋31层。规划1所幼儿园。
建筑品质:精工细节与空间革新
外立面与工艺:采用铝板 + 瓷片复合工艺,较常规涂料更耐老化,搭配幕墙式阳台(1.8 米高双层夹胶中空 LOW-E 玻璃),兼顾美学与实用性。建筑外墙平整度误差控制在 3mm 以内,阳角垂直度偏差≤2mm,体现精细化施工标准。
隔音隔热系统:门窗采用 6mm+12A+6mm 双层中空玻璃,隔音量达 38 分贝,配合楼板 5mm 隔音垫 + 100mm 混凝土浇筑层,可有效阻隔外界噪音。外墙保温层厚度达 50mm,夏季室内温度较普通住宅低 2-3℃。
园林与社区配套:全龄互动空间
约2万㎡沉浸式园林: 项目以“林水共生”为设计理念,打造“一轴五境”景观体系,主入口叠水流瀑搭配罗汉松,营造归家仪式感,中央水景庭院设置下沉式卡座,可举办邻里茶叙,林下空间配置智能健身器材,支持心率监测等功能。
架空层泛会所:约 6500㎡双层架空层划分为五大主题空间:儿童区配备攀爬网、绘本阅读角及母婴室,青年区设置共享办公舱、瑜伽室及桌球台,长者区配置棋牌室、中医理疗室及书法区,所有空间均配备空气循环系统,冬季保持22-24℃恒温。
双泳池配置:约 410㎡亲子双泳池包含 25 米标准成人池和浅水区,池底采用马赛克拼花工艺,更衣室配备地暖系统,冬季可正常使用。
项目位于广深港科创走廊重要节点的“世界一流科学城”光明,归属凤凰城街道,邻建面约383万㎡13号线重点城市更新单元(在建),占位光明城市发展的“价值洼地”,同享磅礴产业规划红利。
13号线重点更新项目(在建),总投资约420亿元,其体量约为光明城站TOD的25倍。将结合13号线月亮路站塑造、城市蓝绿公园网络提升、产城空间更新,无限链接生产、生活、生态要素,建设成光明区“三生融合示范区”。
项目自带有1所9班制幼儿园,家门口约100米有1所九年制公办学校在建,另外根据光明区教育局2025年最新的学区划分,松茂御城2期属于塘尾社区,小学学区划分在光明区外国语学校、深圳中学光明科学城学校二部,深圳实验学校明湖校区,凤凰城实验学校、光明区实验学校、玉塘学校、龙豪小学;初中学区划分在光明高级中学、深圳中学光明科学城学校二部、深圳实验学校明湖校区,深圳实验光明学校,深圳大学附属光明学校。
项目紧挨着松白路主干道,周边还有东明大道,光明大道,沈海高速,深圳外环高速,南光高速,龙大高速等交通要道,目前距离在建的13号地铁线“月亮路站”约400米,3站到光明城站,5站到石岩上屋站,计划在2025年通车运营。
项目靠近光明城高铁站,未来还可通过高铁快速连接东莞、广州等周边城市。这种"双地铁+多公交+全高速"的立体交通网络,为居民提供了多元化的出行选择,特别适合在南山科技园、福田CBD等区域工作的上班族,极大缩短了通勤时间。
项目自带4.6万㎡的底商商业,周边润宏城规划了万象商业,在20分钟车程范围内还有光明最大的蓝鲸世界购物中心,万达广场,包括公明最好的大仟里购物中心。
项目毗邻的13号线车辆段TOD片区规划有商业/办公/酒店等业态(约20万㎡) ,其内有近6万m²万象新天地商业,未来将形成区域商业新地标。
这些商业配套不仅覆盖居民日常生活所需,更提供丰富的文化娱乐选择,如影院、亲子乐园等,满足全龄段居民的品质生活需求。科学城人才的消费力与项目周边商业的高品质相结合,将打造光明区最具活力的商业生态圈。
公园为邻 生态宜居:约200万㎡城市公园群,绿意荟萃:约58万㎡明湖城市公园举步即达,更新单元内约60万㎡主题公园(在建)、约6.8km茅洲河生态长廊等绿意荟萃。
多元文体 休闲逸趣:三馆一心文体配套,丰富休闲生活:13号线重点城市更新片区内规划城市展厅、博物馆、凤凰文体中心等三大场馆,3公里内近享光明文化艺术中心,涵养高阶生活逸趣。
【松茂御城二期 准现楼发售】近地铁·学府旁·低密品质大城,约81-135㎡N+1 全功能空间。
【深圳光明松茂御城开发商售楼处400免费咨询/预约电话:400-992-0669,中介请勿扰】
注意事项:如果对本项目感兴趣,建议您与我们开发商联系,无需中介费,拿最 低价格,还能享额外(物业费+家电)赠送。确保看房体验,暂不接待临时到访,请提前预约。欢迎拨打开发商售楼处预约热线:400 992 0669,中介勿扰
声明:本文由入驻焦点开放平台的作者撰写,除焦点官方账号外,观点仅代表作者本人,不代表焦点立场。
