一文读懂深圳前海颐湾府值不值得买?深入剖析前海颐湾府优缺点?
扫描到手机,新闻随时看
扫一扫,用手机看文章
更加方便分享给朋友
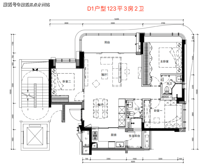
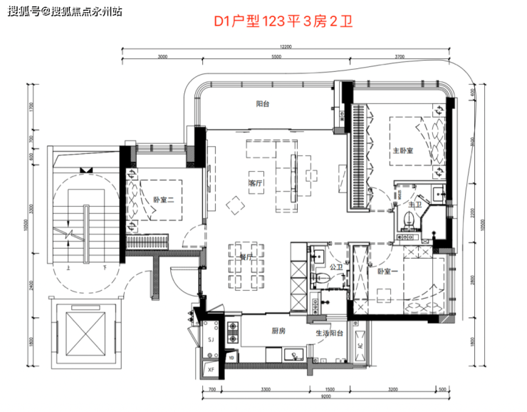
前海颐湾府二期项目(颐城栖湾里)、三四期项目(万科臻湾悦)已开放临时展厅,共推售990套房源,其中颐城栖湾里推售352套房源,户型面积117-262㎡3-5房;万科臻湾悦推售638套房源,户型面积112-165㎡。
Vip Line:400-992-0669
颐湾府分为四期开发,一期项目(颐湾府)由深国际与深业共同开发,在2019年11月开盘,二期由深国际和开发,名为颐城栖湾里,由6栋低密度小高层建筑主体组成,352套房源,户型面积117-262㎡3-5房;三四期由万科主导开发,名为万科臻湾悦,638套房源,户型面积112-165㎡。
届时,前海将有4条地铁经过,开通鲤鱼门、前海湾、前湾、桂湾、妈湾、前湾公园、铁路公园、梦海、怡海等9座地铁站。通过地铁,将前海与城市融为一体。
前海拥有国际化的教育资源,目前规划了多所国际学校,包括哈罗公学、礼德学院、荟同学校 。而荟同学校的校区,就在颐湾府项目旁边,荟同学校是首家“全球K-12学校。
另外,前海还规划了多所高标准的九年一贯制公立学校 ,其中在颐湾府项目旁边也有规划。
注意的是,颐湾府是深国际和深业两个国企的合作产品,两大实力企业,强强联合,产品力更具有保障。
颐城栖湾里户型图:




前海颐湾府开发商售楼处电话:400-992-0669(中介勿扰)
过来本项目营销中心看房,记得提前来电预约,感谢你的配合!
提前预约享受楼盘内场优惠折扣,并安排现场销售一对一服务!
来电可了解楼盘最新动态、房价、在售房源、交楼时间等信息!
免责声明🔉:以上所发布的楼盘相关信息仅供参考,所有图文资料及说明请以最终批文及双方在楼盘现场签署的买卖合同为准;本图文内容如无意中侵犯某方权益,请联系我们将会及时处理。
声明:本文由入驻焦点开放平台的作者撰写,除焦点官方账号外,观点仅代表作者本人,不代表焦点立场。
