深圳新盘@中通半山半海(售楼处电话)首页网站|中通半山半海2025欢迎您@中通半山半海售楼中心电话/地址/备案价/楼盘详情
扫描到手机,新闻随时看
扫一扫,用手机看文章
更加方便分享给朋友
盐田【中通半山半海】开发商售楼处24小时电话:400 992 0669(开发商直销)现场详细解答丨项目介绍丨户型图丨在售房源丨特价房丨学校丨交通位置丨样板房丨小区图片丨交房时间丨周边配套丨
盐田「中通▪半山半海」售楼处24小时电话:400-992-0669(开发商直销)现场详细解答丨项目介绍丨户型图丨在售房源丨特价房丨学校丨交通位置丨样板房丨小区图片丨交房时间丨周边配套丨
半山半海,位居深圳的龙脉——梧桐山半山之上。除坐拥山海稀缺资源,奢享万顷森林带来的负氧离子,清心净肺;还可远眺无垠蓝海,漫步滨海栈道,体会“有容乃大”的心境。半山半海,兼享山海资源与隐逸生活的山海别墅,打造国际滨海级山海居住示范墅区。自古以来,人类所向往的不过是山的伟岸,海的浩瀚。半山半海,坐拥梧桐半山,俯瞰大鹏湾,于山海之间,体验人生最高远的意境。
与此同时,半山半海依照“山居、台地、森林氧吧”的理念,打造近2万㎡的稀缺台地园林,营造华丽贵气与生态自然交融的山地住宅景观,通过高差处理,做到“家家有景观,户户无遮挡”。力求让业主最大程度享受到最高品质的园林山居生活!(深圳盐田中通▪半山半海售楼处电话:400-992-0669)
半山半海位于华南地区首个“国家生态区”——盐田区,地处梧桐山半山上,南瞰盐田港和沙头角海,东望东部华侨城,是集山海景于一体的生态住区。
住在这里,既能体验深圳繁华都市的现代生活,又能享受到深圳罕见少有的山海自然资源。
半山半海中的“半山”所说的是深圳第一高峰梧桐山,是国家级风景名胜区。这里山海相依,大自然美景尽在眼前。
登上梧桐山,您可以俯瞰深圳市区的美丽景色。
在林荫道散步,您可以感受到大自然的美好,看到野生动物的活动痕迹。山上有好几个观景台,景色优美,可以让您置身其中,摆脱城市的喧嚣和浮躁。
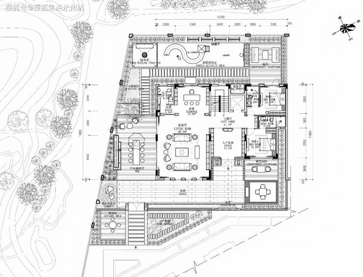
项目共有19栋建筑,包括1栋高层、1栋联排别墅、9栋双拼别墅、8栋独栋别墅。项目以独栋和双拼别墅产品为主,背山面海,采用完全人车分流原则,2:1的车户比,打造低密度大社区。
物业类别:普通住宅,独栋,联排,双拼 项目特色:海景地产、山景地产
建筑类别:板塔结合 高层 装修状况:毛坯
产权年限:普通住宅:70年、独栋:70年 联排:70年 双拼:70年
开发 商:深圳市中通投资发展有限公司
占地面积:20104.55平方米 建筑面积:47101.04平方米
容积率:1.20 绿化率:35% 停车位:地下车位有200个
楼栋总数:19栋 总户数:113户 咨询电话:4009920669
物业公司:深圳市抱朴物业服务有限公司 物业费:9.80元/㎡·月
物业费描述:别墅物业费9.8元/平米/月;高层物业费为3.8/平方米/月,
楼层状况:1#22层,别墅地上三层(9#、14-19#地下二层,2#、5-6#、8#、10-11#地下三层,4#、7#、12-13#地下四层,3#地下二至三层)。
如需了解更多详情,建议实地考察通过我们售楼处热线(400-992-0669)预约看房,实地体验样板房及周边配套进展,避免依赖中介信息
项目以独栋和双拼别墅产品为主,背山面海,采用完全人车分流原则,部分别墅赠送4层地下室为深圳市场罕有,更有2:1的奢华车户比,打造真正的低密度大社区。
项目地形从南向北逐渐走高,最大高差达40米,其依照“山居、台地、森林氧吧”的理念,打造近2万㎡的稀缺台地园林,营造华丽贵气与生态自然交融的山地住宅景观,通过高差处理,做到“家家有景观,户户无遮挡”。
半山半海位于盐田港同富裕路,总建筑面积47101.04平方米。半山半海目前仅剩6套建筑面积366-416㎡的独栋别墅和联排别墅,高拓展,户户带花园,现楼发售!
户型设计独特:采用双入户大堂设计,每户都拥有良好的采光和通风,园林设计结合台地别墅,提供广阔的私人空间和奢华的居住环境。
如需了解更多详情,建议实地考察通过我们售楼处热线(400-992-0669)预约看房,实地体验样板房及周边配套进展,避免依赖中介信息
别墅是尖端人士彰显不凡地位的宿处,更是精神需求的实质载体,同时象征着社会精英的尊贵身份与丰厚实力。在深圳,众多城市层峰完成了从物质需求到精神追求的转变,最终选择半山半海,实现人与自然和谐共生的“塔尖人群”精神体验。
半山半海位居深圳的龙脉——梧桐山半山之上,三面环山,乃绝佳私密之地,将打造成梧桐山系顶峰私密豪宅,可远眺大鹏湾,正如案名所言——一半为山,一半为海,坐拥山海稀缺资源,奢享万顷森林带来的负氧离子,清心净肺,还可远眺无垠蓝海,漫步沙滩栈道,体会“有容乃大”的心境。
项目所拥有的生态山海景观正是这个繁华都市的稀缺资源,身居如此绝佳的山居盘,仿佛置身禅意之中。依托自身自然环境资源和山体特征,项目的生态和人文环境并重,强调人与自然的亲近,注重高质量生态与居住环境的紧密结合。
深圳别墅跨入3.0时代,尤其以深圳东部片区为代表。深圳东部盐田片区,正在成为比肩香港半山、比利华山等全球顶级半山富人区的豪门居住地,拥有2个私家停机机坪、2大游艇会、2大高尔夫球场、8大星级酒店、亚洲最大的旅游景点、数十公里的沙滩海岸线、滨海栈道、梅沙贵族学院等全球最贵重的城市与生态资源。
项目地处盐田中心区,20条公交线直达深圳火车站、宝安机场、世界之窗等;地铁:轨道交通8号线,与本项目约10分钟步行距离。
周边名校林立,梅沙贵族学院,庚子首义中山纪念学校、乐群小学、盐港小学、盐田小学、鹏基小学,深圳外语学校高中部、盐田中学、盐港中学。
地理位置优越:项目位于盐田中心区,紧邻盐田港,交通便捷,有20条公交线路直达深圳火车站、宝安机场等地。此外,地铁8号线的建成将进一步提升其交通便利性。
教育资源丰富:周边有多所名校,如梅沙贵族学院、庚子首义中山纪念学校等,为居民提供良好的教育环境。
自然景观优越:项目背靠梧桐山,面对大鹏湾,拥有得天独厚的山海景观。同时,部分别墅还赠送有4层地下室,提供私人休闲空间。
物业管理良好:项目由深圳市抱朴物业服务有限公司负责,提供9.8元/平方米的物业管理费。
如需了解更多详情,欢迎咨询中通半山半海售楼处电话400-992-0669,过来我们营销中心看房提前来电预约价格还能更优惠。
盐田中通▪半山半海售楼处400免费咨询/预约电话:400-992-0669,中介勿扰
温馨提醒:欢迎致电开发商售楼中心,我们将竭诚为您解答疑问。为确保您的咨询安全,通话时号码将自动隐藏。请提前与销售团队预约,以确保您能顺利进入销售现场,避免不必要的等待
声明:本文由入驻焦点开放平台的作者撰写,除焦点官方账号外,观点仅代表作者本人,不代表焦点立场。
