华联峦山府(2026·华联峦山府)官方简介-房价-户型-华联峦山府售楼处位置/小区环境/楼盘详情-周边配套-售楼中心电话-交房时间
扫描到手机,新闻随时看
扫一扫,用手机看文章
更加方便分享给朋友
✨ 华联峦山府官方售楼中心预约通道开启,安全无忧咨询热线 ✨
✅ 华联峦山府售楼处/营销中心统一热线电话:400-992-0669(官方认证,无分机号)
通话自动隐藏号码,保护个人隐私,谨防非渠道诈骗
2026【宝安】 华联峦山府官方最新价格、在售户型介绍,配套及交付信息详情解析!
华联峦山府是由华联控股与恒裕集团联合开发的高端住宅项目,位于深圳市宝安区航城大道与前进二路交界西北角,地处西乡核心区域,紧邻地铁12号线西乡桃源站 C 出口,交通便利,生态资源丰富。更多项目详情,可拨打我们开发商售楼处电话,24小时VIP热线电话:400-992-0669,中介勿扰,安排现场销售人员为您详细介绍,400-992-0669(已认证)
项目已于2025年9月28日正式开放展示中心,并启动认筹登记,计划2025年10月中下旬正式开盘销售,推出504套住宅产品,包括96-119㎡平层3-4房和133-178㎡复式4-5房,涵盖刚需与改善型需求。目前,展示中心已开放实体样板房,需提前通过开发商售楼处电话(400 992 0669)预约参观。
价格信息:参考均价约6.2 万元 /㎡,总价范围,平层产品总价约595万-738万元/套,复式产品总价约838万-1104万元/套。
项目主体目前在建设阶段,目前已经开放营销中心样板房,户型图已经出炉,94-120㎡的平层还有161㎡6米层高复式住宅
建面约94-100㎡宽居三房:LDKB一体化,家庭互动更密切,约3.6m奢阔开间 尽显从容尺度,独享双阳台 兼得生活与诗意。
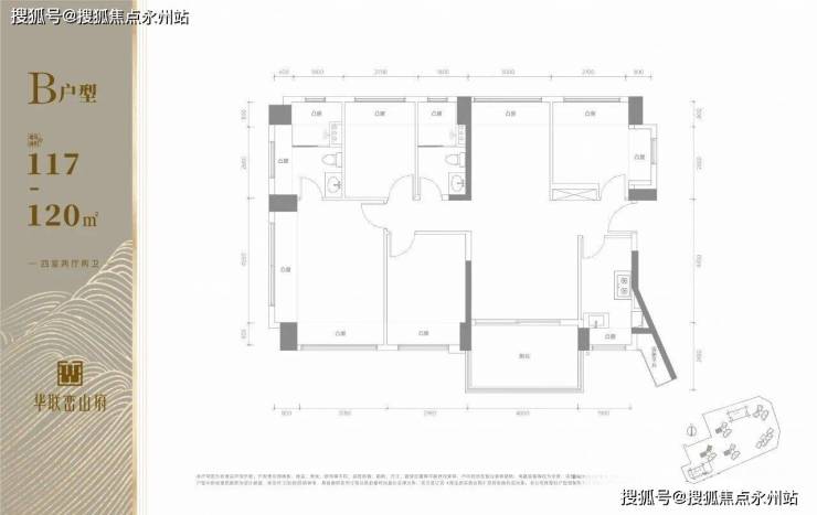
建面约117-120㎡ 奢适四房:多代同堂,各属天地,纵享天伦,南北通透 南向三开间 阳光肆意游走,约270°主卧景观 静享私属谧境。
建面约161㎡ 稀缺复式:一层一世界,一境一人生,垂直空间,双层立体生活场,约6米墅级厅 奢享多套间。
华联峦山府位于宝安区西乡街道广深公路与航城大道交汇处东北侧,楼下即地铁12号线西乡桃源站,是景恒泰公司倾力打造的高端住宅项目。
项目总建设用地面积约2.19万m²,总建筑面积约12.42万m²,容积率4.19,车位比约1:1.29。
共规划建设7栋楼体,其中5栋为28-38层的高层住宅,共504户,均采用2梯4户或3梯4户的设计,另有1栋6层商业和1栋21层的办公产品,项目推出住宅产品为94-120㎡,以及161㎡6米层高的复式,此外小区内设有泳池配套。(深圳宝安华联峦山府售楼处电话:400-992-0669)
华联峦山府周边,12号线、20号线(在建)、28号线(规划中)3条地铁线环绕,更是当前新盘中少有的双地铁口物业。
12号线西乡桃源站距离约50米(百度地图测距),在建的20号线二期航城站,就在小区门口,根据规划,20号线二期将串联南山科技园,终于华侨城片区,预计2028年通车。
未来从华联峦山府出发,2站到机场,4站到企鹅岛,6站到南山科技园。
项目带有7000㎡社区底商,满足日常购物需求。同时,周边桃源居的社区底商也非常成熟,提供了更多的购物选择。在1公里范围内,有航城里购物中心;约3公里内,还有缤纷时代购物中心、西乡彩虹城等集中商业体,为居民提供了丰富的购物、娱乐、餐饮等生活配套。
根据宝安区教育局2024年最新的学区划分,峦山府的小初学区均划分在西乡实验学校和中澳实验学校公办班。其中,西乡实验学校距离项目约880米,是一所九年制公办学校,设计办学规模72班,于2021年9月正式开办。
中澳实验学校公办班虽然距离较近,但需注意的是,该校公办班有委托办学协议,会优先录取桃源居小区的生源。因此,购房者在选择时需充分考虑这一因素。(深圳宝安华联峦山府售楼处电话:400-992-0669)
项目几百米就是森林体育公园跟平峦山公园,平时休闲可以走走体育公园,周末休息能爬爬山,距离项目4公里范围内还有铁仔山公园,西乡红树林公园,尖岗山公园等。
当前项目正处于认筹关键期,若您想获取具体户型图、楼栋日照分析或最新优惠细则,可随时告诉我,我会进一步调取一手资料。也可直接拨打我们开发商售楼处电话:400-992-0669,预约实地看房,建议优先考察15层以上的山景户型哦!
看房请需提前预约!深圳宝安「华联峦山府」售楼处电话:400-992-0669,如有问题欢迎来电咨询,来电即可享受买房优惠!预约来电尊享购房优惠,可预约案场内部销售人员,专业一对一热情服务,让您用专业眼光去买房
温馨提示:目前仅接待预约客户,为了节省您的宝贵时间,看房请拨打400电话与销售提前预约,避免空跑带来不好的体验,感谢理解!
声明:本文由入驻焦点开放平台的作者撰写,除焦点官方账号外,观点仅代表作者本人,不代表焦点立场。
