金地明峰府(深圳)金地明峰府_深圳光明金地明峰府欢迎您丨楼盘详情丨位置
扫描到手机,新闻随时看
扫一扫,用手机看文章
更加方便分享给朋友
深圳光明|金地明峰府开发商售楼处电话:400-992-0669(中介勿扰)
来电可了解楼盘最新动态、房价、在售房源、交楼时间等信息!让你买的放心,住的舒心!
效果图、面积段已出,建面约81-116㎡ 3-4房户型,目前已出地面,毛坯限价4.22万/㎡。
▷项目简介
去年9月28日,在深圳第二次集中宅地出让中,金地以19.67亿+20000㎡人才房配建拿下光明马田A631-0115宗地,该宗地普通商品住房销售均价不得高于4.22万/㎡。
金地明峰府位于光明区马田街道地铁6号线薯田埔站旁,南临松柏路。
金地明峰府项目位于广深港澳科创走廊之上,享受空港新城及世界一流科学城双核辐射。项目占位深圳北部中心光明区公明组团中心,打造未来光明副中心。
金地明峰府为金地峯范系产品,致敬永攀时代浪潮的都市精英。以世界TOD商业综合体代表为蓝本,打造地铁、公园、商业、居住一体互联的mini TOD生活。以峯范系精奢立面,无界架空层,全龄乐享园林,四重归家体系,以及G-wise健康生活体系,打造81-116㎡ 3-4房户型,更有1.9卫及L型阳台等创新产品,拥7000㎡社区商业、3000㎡九班制幼儿园、高线时光园林、G-wise健康社区,让空间服务于生活。
项目地块分A、B、C 3个区域,楼栋一字排开 朝向为东南、西南、西北。
1栋1单元:33层,1栋2单元:32层,1栋三单元:31层;2栋一单元:33层,2栋二单元:32层,3栋:33层
户型方面等户型图出来再做解析。
金地明峰府工地大门
主体已出地面
园林同步施工中
项目招牌形象展示
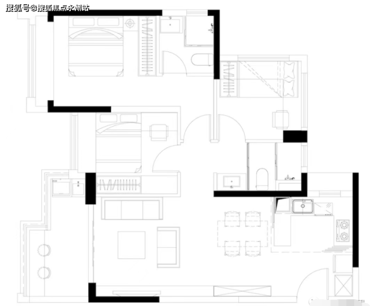
光明金地明峰府户型图欣赏:
产品户型图约82-116㎡精装美宅!
【82㎡户型图】

【93㎡户型图】


【116㎡户型图】

建面约81㎡3房2厅1.9卫、92㎡ 3房2厅2卫、116㎡4房2厅2卫,并将采用金地新研发的G-wise绿色健康体系、五芯精装家和创新专利户型三大产品,打造绿色健康的居住场景,届时带装修交付。
其中,户型创新设计上,将通过多方位的场景预设,充分考虑三代居的交互和私密的居家场景。
整体来看,金地明峰府此次全套户型格局方正,通风采光性能良好,大进深半包围阳台提供良好多空能空间。
周边航拍
▷周边配套
距离紧邻薯田埔地铁站B出口,松柏路马路对面即使薯田埔利益统筹项目,周边约一公里范围的小区有华润公园九里、宏发嘉域,隔壁有薯田埔花园人才房、福庄花园以及一个薯田埔内衣基地保障房项目。
项目后期会有临街底商,距离最近的商业有嘉域荟,有海底捞、金逸影院、屈臣氏、钱大妈、健身房等,往公明老城区有中粮悦街,大仟里、天虹、百盛佳、国业百货、公明综合市场等商圈。
南临松柏路,出门即是6号线薯田埔地铁站、地铁可换乘11号线,13号线。驾车约1.5公里可到南光高速下村出口,可串联外环高速、沈海高速,驾车到南山约40分钟,往松岗方向可接107国道。
周边有裕湖公园、龟山公园、麒麟山公园、红花山公园、尖岗湖公园、左岸科技公园、红木小镇等。
金地明峰府 限价4.22万+精装约4.5万,最小面积81平,预估首付100即可上车地铁口住宅3房,对刚需十分友好,目前城市面貌一般,周边有多个人才房项目,入住后还是有一定的居住氛围。
光明金地明峰府开发商售楼处电话:400-992-0669(中介勿扰)
来电可了解楼盘最新动态、房价、在售房源、交楼时间等信息!让你买的放心,住的舒心!
温馨提示:看房请务必提前预约,避免临时无人接待, 感谢您的配合!
免责声明:
1、以上关于本楼盘宣传资料仅作为客户邀约邀请,不作为要约或者承诺,对本楼盘相关配套、地铁、学校(建设)规划或者户型介绍,旨在提供相关信息,不意味着本公司对此作出承诺,相关内容不排除因政府相关规划、规定及开发商未能控制原因而发生变化,最终以政府相关部门审批文件为准。
2、以上所发布的关于光明金地明峰府户型图与样板间实拍图所示平面仅供参考,具体因楼栋、楼层的差别,局部结构、面积等存在不同,不构成要约内容。户型图与样板间内部实拍图所示家具和电器配置仅供参考,不作为交付标准,最终以买卖合同为准。
3、关于双方权利义务以双方签订的相关合同为准。
4、相关公共配套设施及规划条件以政府审批的文件为准。
5、以上部分图文内容可能因来自网络,如有侵权请联系我们,将配合并及时处理。对使用本网站信息和服务所引起的后果,本网站不作任何承诺。
声明:本文由入驻焦点开放平台的作者撰写,除焦点官方账号外,观点仅代表作者本人,不代表焦点立场。
