深圳鸿荣源壹城中心(壹城中心)楼盘详情-房价-户型-鸿荣源壹城中心欢迎您
扫描到手机,新闻随时看
扫一扫,用手机看文章
更加方便分享给朋友
深圳龙华-龙华人民路-工业路-梅龙路-东环一路-建设路围合而成—鸿荣源壹城中心
鸿荣源壹城中心开发商售楼处咨询|预约热线:TEL:400-992-0669 中介勿扰!!!
温馨提示:来电可了解楼盘最新动态、房价、在售房源、交楼时间等信息!让你买的放心,住的舒心!

深圳龙华壹城中心十区已取证,在官网已公布信息,单价6.3万/㎡起,总价541万起,面积85-94㎡,共1056套,精装交付。

展示中心沙盘
集美学之大成,10区沿袭豪宅建筑美学基因,升级约3m高整板打造的铝板立面,让建筑历久弥新。
▷高奢门庭 三重显赫

门庭效果图
深圳鸿荣源壹城中心(壹城中心)楼盘详情-房价-户型-鸿荣源壹城中心欢迎您
匠筑高约7m、宽约20m的显赫门庭,尊享入户的威仪与归家至高礼序。
▷美学园林 运动主场

园林效果图
多元园林景观,树种全冠移植,中心阳光草坪等,邂逅亲子的惬意时光。逾5900㎡运动共享空间,定义活力体验,尽情享受运动活力带来的无限乐趣。
▷全优户型 理想人居

户型效果图
全新打造约85-94㎡精装住宅,为业主呈现理想的品质人居,记录舒居生活每一刻。
中轴超体 · 区域价值高地

壹成中心作为区域首发的超体项目,以约1/2平方公里的恢弘体量,领衔区域蝶变。
其中约60万㎡壹方商业巨MALL率先启幕,独占龙华国际商圈鳌头,现A/B/E/C区龙华壹方城均已开业,云集品牌超600家,已成为深圳最大体量城市集群型商业,未来D区也将开业,五大商业主题将全面兑现!活力新城,繁华无限。
4地铁线汇聚 · 帷幄便捷交通

未来,壹成中心将实现4号线、25/22/27号线(规划中)多地铁线汇聚,出行全面优化,便捷加速。
多元配套·尽享品质生活

周边优质配套环绕,临近龙华四馆(展览馆、演艺馆、深圳第二图书馆、美术馆)、深圳书城龙华城和简上体育综合馆。
多元化的文化、艺术、休闲、娱乐配套,满足居者全方位生活需求。
十区效果图

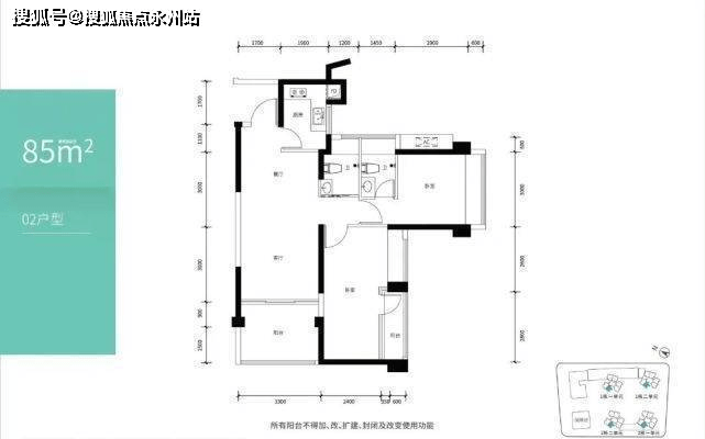
85-94㎡ 户型展示

鸿荣源·壹城中心户型图






壹城中心十区价格还是有很大优势的,均价7.1万带装修,低于之前的壹城中心璞誉府。对比目前在售的其他楼盘,壹城中心除了有一定性价比外,最重要的就是壹城中心超高的知名度和楼盘品质,鸿荣源的口碑一直非常好。壹城中心二手成交量和网络搜索量,一直在深圳前列。壹城中心每一区开盘都取得非常好的成绩,算是深圳网红盘鼻祖,创造诸多销售记录:
2016深圳住宅成交面积、量、金额三冠王。
2017深圳住宅成交面积、套数双冠王!
2018深圳住宅成交面积、套数双冠王!
2019深圳住宅成交量、金额前三甲!
2020深圳第三季度住宅成交量冠军!
2021深圳1-7月住宅销售金额TOP10!
一系列的销售成绩,是得到了市场高度认可的证明。
大城最后一期,要抓紧了,错过了只能买壹城二手了。
深圳龙华【鸿荣源壹城中心】—售楼处—欢迎您!!
【鸿荣源壹城中心开发商售楼处咨询|预约热线:400-992-0669(中介请勿扰)】
来电可了解楼盘最新动态、房价、在售房源、交楼时间等信息!
温馨提示:看房请务必提前预约,避免临时无人接待,感谢您的配合!
免责声明🔉:我们致力于保护作者版权,转载或引用仅为传播楼盘更多信息,本文部分图片可能来源于网络,无法核实其真实出处,如涉及侵权请联系我们并及时配合处理;本宣传资料对周边环境、政府规划、商业配套、教育配套、投资前景等介绍仅作为项目宣传推广使用,不在任何意义上构成的承诺与要约,具体以政府部门审定的规划设计文件及商品房买卖合同的约定为准
声明:本文由入驻焦点开放平台的作者撰写,除焦点官方账号外,观点仅代表作者本人,不代表焦点立场。
