荔源雅苑_荔源雅苑【官网】(深圳新房热销榜TOP.1)荔源雅苑官方信息-楼盘百科-评测!
扫描到手机,新闻随时看
扫一扫,用手机看文章
更加方便分享给朋友
✨ 荔源雅苑官方售楼中心预约通道开启,安全无忧咨询热线 ✨
✅荔源雅苑售楼处/营销中心统一热线电话:400-992-0669(官方认证,无分机号)
通话自动隐藏号码,保护个人隐私,谨防非渠道诈骗
南山荔源雅苑官方最新价格、户型信息,配套及交付信息,楼盘详情介绍!
300万在深圳能买哪里?
沙井鸿荣源珈誉府65平两房306万起,碧海京地海樾府55平两房366万起,龙华红山去年售罄的安宏基天曜府57平两房400万起
300万想买南山可以吗?
当然是可以的,最近南山推出一个准现楼楼盘(荔源雅苑),今年年底就交楼入住了,纯铝板外墙精装交付,50平两房只要304万起
那么问题来了:300万你会选南山还是沙井、碧海、龙华呢?先不急给答案,看完以下再下结论
荔源雅苑,位于南山南头同乐片区,不熟悉南山的可能对这个地方比较陌生,这个位置存在感确实不强,常住南山的会略有耳闻
但是科技园、留仙洞、前海大家一定都听过,下面说一组数据,大家对荔源雅苑的位置肯能就会有一些概念了
距离留仙洞约2.5km,科技园约3km,前海桂湾约4km,深超总6km,开车都是20分钟之内的车程 _Vip Tel:400-992-0669 中介勿扰

6km内辐射南山约120万高端就业人口
科技园集聚了腾讯、中兴等众多世界500强大厂,高端就业人口约60万
留仙洞总部基地,还在建设中,大疆、优必选、深信服、乐普医疗、传音通信等众多名企云集,预计就业人口约15万人,后海总部基地、深超总规划就业人口约46万人
高新科技园(东向约3km):国家创新型城市的核心区域,就业人口约60万人。
留仙洞总部基地(北向约2.5km):打造国际化战略新兴产业CBD,规划约60万高端就业人口,10万高素质居住人群。
后海金融总部基地、深圳湾超级总部基地(东南向约6km):中国总部企业最为密集区域之一,规划就业人口约为54万人。
前海深港合作区(西南向约4km):定位国家战略性门户枢纽,未来将打造成世界级城市新中心,规划就业人口约65万人,居住人口15万人。
项目于2024年6月28日取证入市,截至目前已经去化近70%,给出巨额优惠,在开盘当天购买在9折基础上再享额外98折优惠(据说额外98仅限开盘当天),最终折扣约88折!折后单价5.9万起。最低总价304万起,首付60万上车南山50㎡两房!总价590万买南山三房两卫,而且项目还是准现房状态,今年买今年住,还是带精装修交付
项目主要以小户型为主,其中约50㎡户型169套,是南山唯一将售50㎡现楼新房住宅,
项目还有约89㎡户型54套,约117㎡户型28套,共251套可售房源。
家门口一站式优质教育,小学&初中:教科院同乐实验学校(直线距离约100m,项目目前已经封顶外立面做好是准现房状态了!今年买今年住还是带精装修,拎包入住那种,项目占地面积:约6249.71㎡,建筑面积:约21999㎡,容积率:3.52,总规划322套,商品房251套,地下2层,停车位240个,其中充电桩111个,车位占比1:0.75。
欢迎咨询荔源雅苑开发商售楼处咨询/预约电话:400-992-0669(中介勿扰),过来我们营销中心看房提前来电预约,而且最终的价格还能享受更多优惠。
「建面约50-89-117㎡准现楼」容积率约3.52,南山稀缺低密住区,准现楼呈现,实景兑现。建面约50-52㎡南山稀缺小户型,89㎡南向园景户型,臻稀117㎡南北通透品质户型。
约50㎡(两个功能空间):折后单价约6.2-6.8万/㎡;折后总价约304-350万/套;
约89㎡(3个功能空间):折后单价约6.6-7.1万/㎡,折后总价约590-639万/套;
约117㎡(4个功能空间):折后单价约6.5-7.2万/㎡,折后总价约744-840万/套!

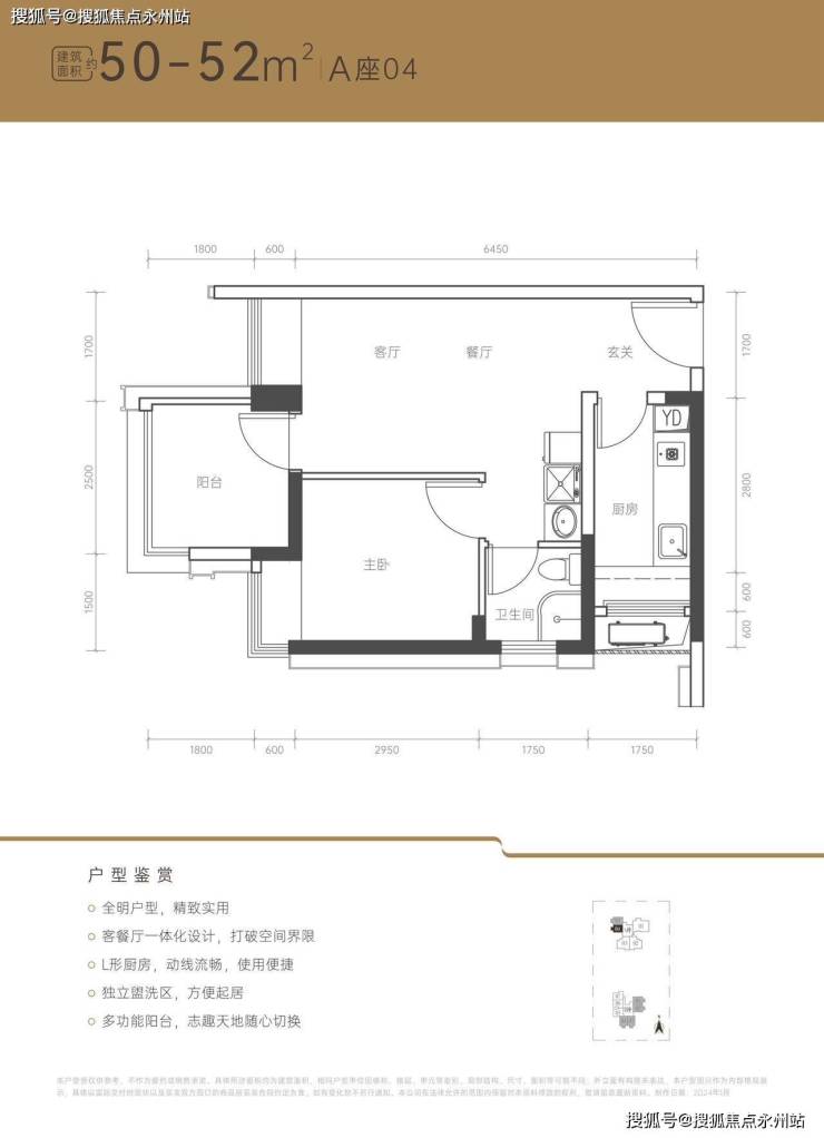
【建面约50-52㎡上车小户】:做得是竖厅格局,空间十分紧凑,无过道零空间浪费,L型厨房带一个生活阳台,餐客厅一体化设计,客厅开间约3米,全明户型,客厅带飘窗,卫生间做的三段分离式的,更加合理利用空间,阳台可以根据需要改造成一个小房间(样板间有展示)
这个面积段主要分布在A座的04/05户型和B座的01/02/03/04户型;A座的04/05户型朝西都是工业用地,视野开阔无遮挡;B座的01/02户型朝东,B座的03/04户型正南朝向。
【建面约89㎡正南户型】:这个也是竖厅格局,动静分区;LDKB一体化设计,厨房同样带一个生活阳台,客厅开间做到了3.35米(除去墙体面积),三开间正南朝向,采光视野都不错。
这个面积段主要分布在A座的02/03户型,阳台朝正南,可以看小区花园。
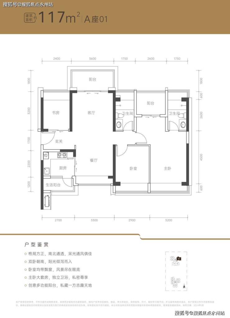
【建面约117㎡楼王户型】:这个面积段做的是南北通透竖厅格局;L型厨房带一个生活阳台,餐客厅阳台一体化设计,客厅开间约3.45米(除去墙体面积);三开间朝南,卧室均带飘窗,主卧阳台也可以改造成一个卧室。
这个面积段主要分布在A座的01户型,仅一条腿,位于端头位且独门独户,阳台朝北,主卧朝南可以看小区花园。
项目配套信息简介
交通配套:荔源雅苑距离12号线同乐南站(直线约800m),4站到宝中和科技园,5站到前海和后海;15号线(建设中)同乐关站(直线约1.5km),2站到西丽高铁站,贯穿前海、后海、南山、宝安等重要片区,环经济发展核心区域。
另有13号线(建设中)等多轨交汇,高效出行。
周边还有南坪快速,南山大道,北环大道,京港澳高速等交通要道,出行便捷。

教育配套:据2023年南山区教育局公布的学区划分,荔源雅苑小中学区都是划分在南山区教育科学研究院同乐实验学校,该校于2004年创建,2020年4月更名为深圳市南山区教育科学研究院同乐实验学校,是一所九年一贯制区属公办学校,现有48个教学班,2300多名师生。
项目距离科院同乐实验学校约100米,南山首个教科院系实验学校&九年一贯制学校,
教科院:深圳市教育局直属公益一类事业单位,曾打造南山第二外国语学校。
商业配套:项目直线距离约100米有1万㎡隆尚Minitown(目前招商中),周边目前有成熟的社区底商,可以满足日常需求,在2.3公里范围内有海雅缤纷城,约6公里有前海壹方城,约7公里有深圳万象天地等大型商业综合体等等,坐享超50万㎡南山、宝中成熟中心高端商圈。

生态配套:楼下规划公园绿地(约2.5万㎡)、铁路文化公园(直线约300m)、新安公园、中山公园,城市绿氧触手可及。
位于深圳南山区南头同乐片区中山园路与铁二路交汇处项目最终定名「荔源雅苑」推售户型为50㎡2房2厅1卫、89㎡3房2厅2卫、117㎡4房2厅2卫。89㎡南向看园景,117㎡四房南北通透。
如需了解更多本项目信息,请拨打售楼处电话,现场销售会为您详细介绍楼盘。
荔源雅苑_开发商售楼处_Vip Tel:400-992-0669 (中介勿扰)
(更多项目动态| 欢迎来电咨询 | 请提前预约登记看房 | 1:1销售专业讲解)置业顾问一对一对接,来电尊享受额外优惠
*特别提示:本宣传资料所涉宣传内容,仅作为项目宣传推广使用,不在任何意义上构成开发商的承诺与要约,具体以政府部门审定的规划设计文件及商品房买卖合同的约定为准。本公司有权对宣传内容进行修改、调整,敬请留意最新宣传资料。
声明:本文由入驻焦点开放平台的作者撰写,除焦点官方账号外,观点仅代表作者本人,不代表焦点立场。
