越秀瑞樾府(深圳)越秀瑞樾府_房价/户型图/样板间/规划图/交房/项目配套
扫描到手机,新闻随时看
扫一扫,用手机看文章
更加方便分享给朋友
最新动态:期待已久的深圳宝中越秀瑞樾府正式获批预售证,期待已经的宝中网红热盘终于即将开盘。价格表如下:
【深圳越秀瑞樾府售楼处电话: 400-992-0669,中介请勿扰】
温馨提示:本楼盘售楼部现场参观样板间采用预约制,过来之前请记得拨打开发商400电话进行预约,谢谢配合!
越秀瑞樾府项目介绍
宝中A003-0434宗地是去年第二轮土拍中最热的地块,有10家房企参加摇号,最终由广州东创房地产开发有限公司(越秀)以19.14亿元竞得,配建15100㎡的保障性租赁住房面积,项目位于宝中片区,临近深业新岸线。
从上半年越秀·潮樾府项目拿地到开展再到开样板再到拿证,一推在而推售爆火市场,继而再到越秀瑞樾府的面世,和越秀和樾府也在今年同期进行提前交楼,只能佩服越秀速度真快,稳健。看得出广州龙头房企在深圳发展的决心很大!
越秀40年来栉风沐雨,砥砺奋进,深度布局中国最具活力的经济带,形成了以粤港澳大湾区为核心,以华东、华中、北方、西南四大区域为重要支撑的“1+4”全国化战略布局,进驻全国30个一线和强二线城市,开发大型住宅项目200多个,服务超100万业主,拥有包括广州国际金融中心在内的40多个大型商业物业。
(项目效果图)

越秀·瑞樾府位于深圳宝中片区,项目紧邻宝安区政府,位处集行政、商业、商务、文体休闲等资源于一体的市政中芯圈。

【项目基本信息】
越秀瑞樾府(深圳)越秀瑞樾府_房价/户型图/样板间/规划图/交房/项目配套
占地面积:约9852.89㎡
计容建面:约5.442万㎡
容积率:5.42
主力建面:109-144㎡
可售住宅户数:305席
开发商电话:4009920669
车位:总660个
产品类型:住宅
产权年限:70年产权
越秀·瑞樾府的核心优势:是深圳近几年宝安中心推出的稀缺宅地,占据宝安中心的优质资源。
(项目效果图)
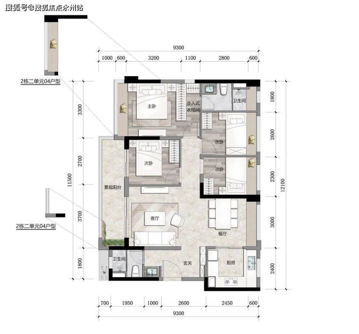
越秀瑞樾府平面图及带尺寸户型图
户型图欣赏
建面约109㎡A户型4房2厅2卫:南北通透,空气对流,时刻鲜氧相伴,约26㎡朗阔客餐厅,约6.4米景观阳台,视野开阔,主卧套房,独立衣帽间设计。
建面约109㎡B户型4房2厅2卫:四面宽朝南,超宽采光面,交互厨房,约24㎡宽敞客餐厅,约6米面宽景观阳台,多功能设计空间,可灵动百变做到每个空间利用到极致。
建面约144㎡4➕1房2厅2卫:带大玄关,独立飘窗,四通透空间,南北双阳台,约34㎡IMAX餐客厅,排场够大气,约20㎡主卧套房,带衣帽间,私享尊享生活。
这种144平的户型,总价在1300万左右,总共只有59套,宝中一直以来大户型都比较稀缺,二手房价格往往都比较高,此次144户型,使用率超高,客厅开间达到惊人的5.7米,更加受到买家热捧。
项目整体:项目所在片区为宝中片区,整体面貌不错,整体居住氛围较好,周边有多个成熟小区,如幸福海岸、深业新岸线等,周边配套成熟齐全,交通方便,涵盖了地铁、商业、学校、文娱等配套。
此次越秀土拍土正好在于这个稀缺的土地上—宝中核心区位,且是高使用率户型,109方正大四房及144㎡正真通透双阳台4+1房,土拍限价仅8.86万,就可以享受周边的高质量配套,可以说是目前新盘市场中非常值得入手的顶流项目。
交通优势:
项目最近地铁为1号线宝体站,地图显示,步行距离约五六百米左右,可一站前往宝安中心站换乘5号线、11号线,两站可达宝安国际机场。
驾车出行上约200米直达宝安主干道新湖路,湾区重要快速主干道,距高速入口约2公里;海滨大道(直连南山滨海大道、福田滨河大道,建设中)、妈湾跨海通道(连接大铲湾-妈湾,预计 2023年底贯通)。
教育资源:

周边房价:
项目周边有深业新岸线、福中福幸福海岸、第五大道高发西岸花园,真实成交价格均在10万+!
片区未来:
屹立前海一线辐射,超级都市心崛起
宝安区,是粤港澳大湾区核心中的核心区域,而宝中片区就是宝安区的龙头,是宝安区委、区政府所在地,其地理位置优越,处于深港经济圈的核心区域,是穗深港发展轴黄金走廊的重要节点,是联系粤港的桥梁和辐射内地的重要窗口,具有得天独厚的区位优势。作为深圳最早开发的区域之一,早期是政治、金融、文化中心;如今随着宝安的巨大发展,宝中片区重新定位以商业服务、公共服务、居住生活为主,打造一个宜居的区域,生活配套逐步成熟。
据了解,宝中集聚区规划总建设量为446万平方米,将重点发展新一代信息技术产业,集工业、办公楼、公寓、商业、酒店及居住配套等为一体,战略性新兴产业集聚区打造成环境优美、配套齐全、高端企业聚集的新兴产业示范园区,极大地推动片区人才的流入和经济的发展。
越秀瑞樾府优点:
1、区域整体面貌较好,项目周边配套完善,享受宝中区域成熟的片区资源。
2、宝中少有入市新盘,近几年宝中供应稀少,住宅地大部分在捂着不卖,难得的新盘。
3、产品方面,109㎡户型做到了正正真真的大四房设计,144㎡做到了真正通透客厅餐厅双阳台4+1房,总体看空间格局得房率做的很到位,户型格局及朝向均不错。
4、海韵中小学学区内,宝安排名前三的顶尖学区。
5、在价格方面,由于限价盘的原因,与周边幸福海岸二手房9.7万左右的成交价,存在一定的倒挂情况,而且考虑到楼龄、户型等差距,将性价比更为突出。
【越秀瑞樾府开发商售楼处电话:400-992-0669 (中介请勿扰)】
✅ 过来参观样板间,记得提前拨打售楼处电话在线预约,感谢配合!
郑重提醒:本楼盘售楼处电话从未设置任何所谓的“分机号”,拨打之前请认真甄别,保护好个人隐私,谨防上当!
免责声明🔉:
以上所发布的关于深圳宝中越秀楼盘资料和相关信息仅供参考,所有图文资料及说明请以最终批文及双方在我们楼盘营销中心现场签署的买卖合同为准;本篇图文内容如无意中侵犯某方权益,请联系我们将会及时处理。
声明:本文由入驻焦点开放平台的作者撰写,除焦点官方账号外,观点仅代表作者本人,不代表焦点立场。
