桑泰缙樾府(2025年桑泰缙樾府)首页网站-桑泰缙樾府楼盘测评详情-户型配套
扫描到手机,新闻随时看
扫一扫,用手机看文章
更加方便分享给朋友
南山【桑泰缙樾府】售楼处24小时电话:400 992 0669(开发商直销)现场详细解答丨项目介绍丨户型图丨在售房源丨特价房丨学校丨交通位置丨样板房丨小区图片丨交房时间丨周边配套丨
『缙樾府』项目是由【深圳市塘泰投资发展有限公司】和【深圳市南山荔源实业股份有限公司】共同合作开发。工商信息显示,深圳塘泰投资的母公司是桑泰集团,南山荔源实业是南山村村委企业,是比较常见的我有地,你有开发资质和经验的经典组合。
桑泰是深圳本土房企,创立于2000年,是一家集房地产开发、物业管理、城市更新、实业经营、产业园经营等产业于一体的综合性民营企业集团,目前在深圳已开发项目总建筑面积累计超200万㎡,还储备有超100万㎡待开发土地,预计建成总建筑体量超500万㎡。

『桑泰·缙樾府』位于南山南头街道同乐北片区,中山园路与铁二路交汇处东北侧,距离12号线同乐南站A出口步行约850米,与南山教育科学院研究院同乐学校相邻,旁边同期在建的还有荔源雅苑、乐源雅居、珑熙公馆、吉创中心等项目。
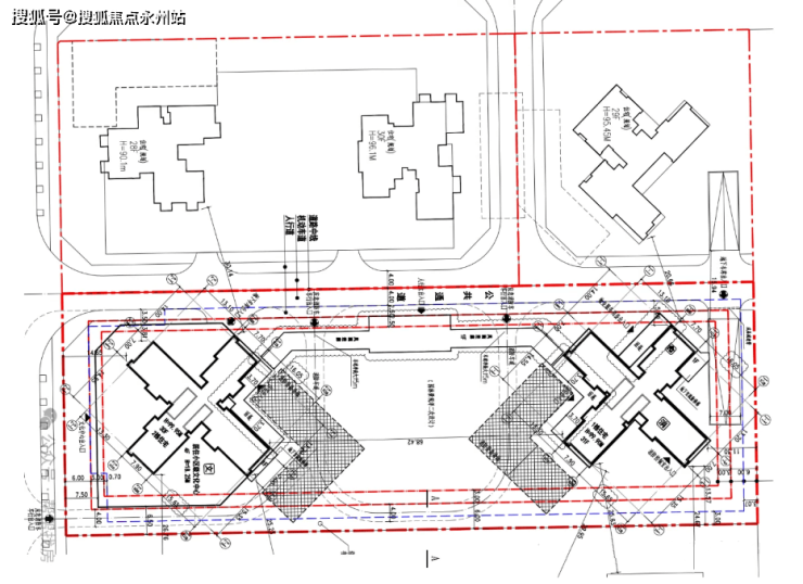
项目前身为“荔源实业股份中山园路征地返还用地”,与旁边的荔源雅苑、乐源雅居师出同门,占地面积约0.9万㎡,规划总建筑面积约4.78万㎡,规定容积率3.62,绿化覆盖率约30%,涵盖住宅、社区级文化活动中心业态,小区基础生活配套设施等业态。桑泰缙樾府__售楼处_Vip Tel:400-992-0669 中介勿扰
『缙樾府』地块似矩形,南北向布局,计容积率建面约3.28万㎡,含住宅约2.68万㎡,居住区级文化活动中心约5000㎡,另有其它基础生活配套设施若干,规划由2座30-31高的住宅楼组成,是一个体量的纯粹居住属性小区。
项目正在建设中,建筑主体已经封顶,施工许可证显示“缙樾府施工总承包工程”竣工时间是2025年05月31日,而合同约定的交房时间为2025年12月30日前,大概率会带装修交付。
项目由两座30-31层(约100米)高的住宅楼组成,标准层高都是3米,也都是都是3T4户梯户比,共220户,配300辆车位。
产品包括:建面约114㎡四房两厅两卫,约115㎡四房两厅两卫,约118㎡四房两厅两卫,约133㎡五房两厅两卫。售楼处_Vip Tel:400-992-0669 中介勿扰

项目的产品力是非常强,不仅是户型格局好,实用性、通透性、得房率、赠送面积、各功能间尺度等卖点也比较突出,加上自身小区又是纯居、纯大户、纯商品住宅属性,如果不是项目体量小了一点,作为改善盘,以它的条件是在市场上会非常有竞争力!
所有户型的所有功能间都有飘窗或阳台,且每个户型都报建了3个阳台,根据曝光的尺寸测算,它的产品得房率能达到81%左右,加上赠送面积使用率基本都能达到90%左右,属高拓型产品。
客厅阳台朝向以东南或西南为主,只有04户114㎡户型阳台是朝东北的,但由于它的产品都是双大面宽采光且整个餐客厅完全通透,所以即便是东北向,室内通风采光也不会有啥问题。
十字形建筑优点确实是挺多,但缺点也很明显,比如对视问题就比较突出,相邻的两条腿之间或多或少都存在对视可能,尤其是02户和03户,客厅阳台距离太近,对视问题比较突出!
如需了解更多详情,欢迎咨询桑泰缙樾府开发商售楼处咨询/预约电话:400-992-0669(中介勿扰),过来我们营销中心看房提前来电预约,而且最终的价格还能享受更多优惠。
桑泰缙樾府生活配套介绍
商业:项目周边以社区型商业为主,满足基本生活购物需求问题不大,但要享受优质商业需要前往新安中心或南山中心区,距离倒也不是特别远,就是对交通工具依赖性大,欠缺便利性!
地铁:距离地铁12号线“同乐南”站步行约850米,在此站乘车2站即可在灵芝站换乘地铁5号线。另外,地铁五期在建的15号线也会途经同乐北片区并在此设有“同乐关”站。
学校:根据南山区现行的学区划分,项目中小学对口正是相邻的“南山教育科学研究院同乐实验学校”,加上相邻地块规划待建的幼儿园和九年学校,未来可实现小孩全龄段的目送式教育。
医院:项目1.5公里范围内分布有宝安人民医院和南山中医院,两所三甲级综合公立医院,生活中如遇身体不适可就近就医。
休闲:项目北侧有一块占地约2.5万㎡公园用地,1.5公里范围分布有同乐体育公园、新安公园、中山公园、洪浪公园等多个公园,能够满足片区居民多场景、多样化休闲娱乐需求。
文体:同乐北片区目前有同乐体育公园和南联体育中心,虽然算不上市政级场馆,但日常体育活动就近能满足。同时距离宝安青少年活动中心、宝安1990文化中心也不算太远,借助短途交通工具约10分钟可达。
如需了解更多本项目信息,请拨打售楼处电话,现场销售会为您详细介绍楼盘。
桑泰缙樾府_开发商售楼处_Vip Tel:400-992-0669 (中介勿扰)
(更多项目动态| 欢迎来电咨询 | 请提前预约登记看房 | 1:1销售专业讲解)置业顾问一对一对接,来电尊享受额外优惠
*特别提示:本宣传资料所涉宣传内容,仅作为项目宣传推广使用,不在任何意义上构成开发商的承诺与要约,具体以政府部门审定的规划设计文件及商品房买卖合同的约定为准。本公司有权对宣传内容进行修改、调整,敬请留意最新宣传资料。
声明:本文由入驻焦点开放平台的作者撰写,除焦点官方账号外,观点仅代表作者本人,不代表焦点立场。
