龙岗( 融湖盛景花园 ) 楼盘详情_融湖盛景花园房价_户型_交通_小区环境
扫描到手机,新闻随时看
扫一扫,用手机看文章
更加方便分享给朋友

【项目信息】:
开发商:深圳市鼎宏投资发展有限公司
物业:深圳市岗宏城商物业管理有限公司
批地时间:2021年11月
交房时间:2025年10月底
占地面积:约5万㎡
建筑面积:约27万㎡
在售栋楼:1栋(1-5单元)
交楼标准:精装修
梯户:2梯6户
总层高:31层
物业费:4.2元/㎡
总户数:1803户(在售825套)
车位数:1600个
车位比:1:0.88
在售户型
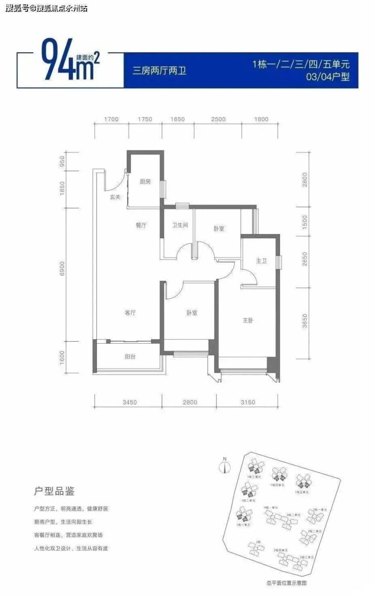
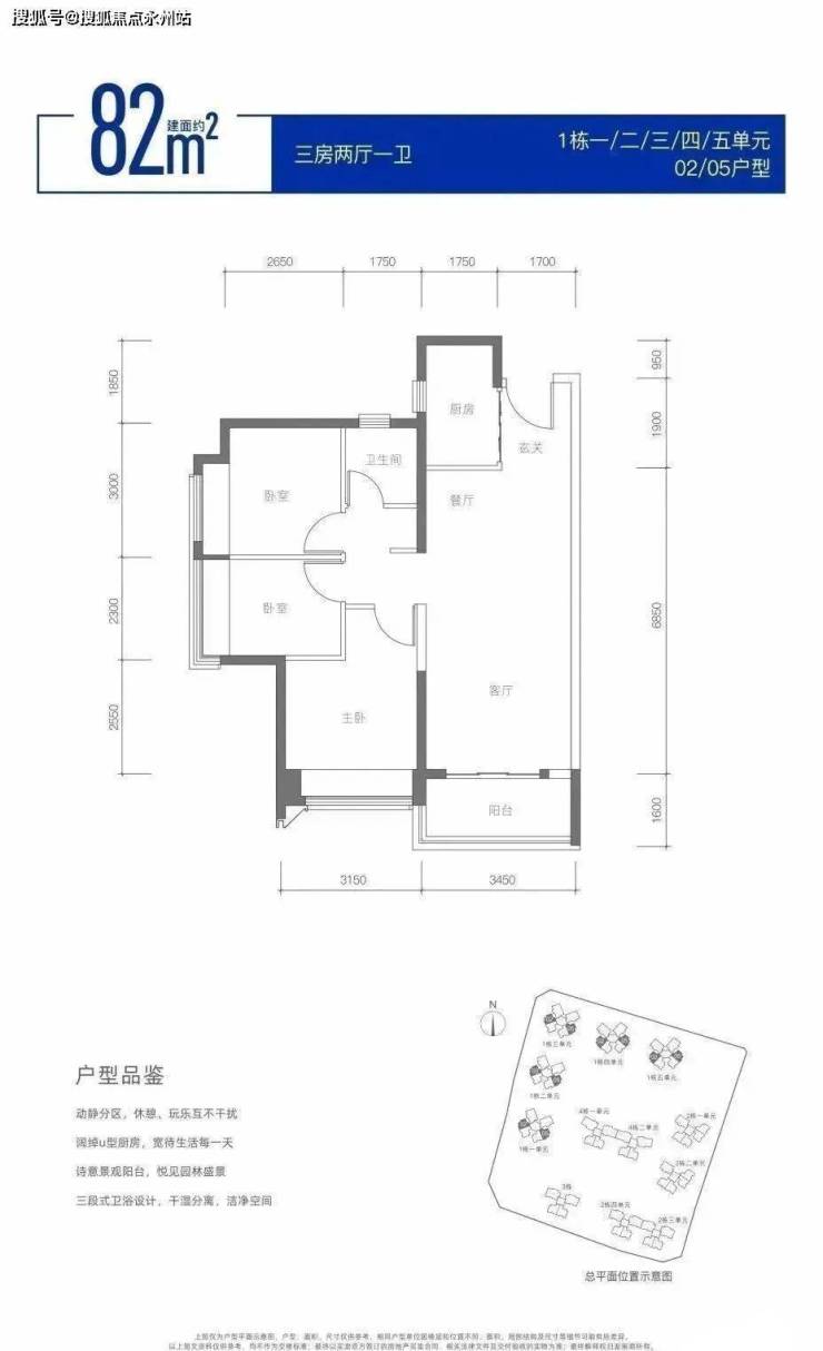
82㎡ 3房2厅1卫 340-400万
94㎡ 3房2厅2卫 380-440万
111㎡ 4房2厅2卫 480-550万

融湖中心城·五期
融湖盛景花园位于阳光路与辅岐路交汇处,项目总占地面积约23万㎡,总建面约100万㎡,项目分为五期开发。开发整个项目的运作已经有10余年的时间,一期的融湖世纪花园和二期的融湖时代花园前几年已入市,本次推出的融湖居为三期地块,三期已于2020年6月12日开放示范单位,四期(规划4万平集中商业体)还处于建设阶段,五期收官之作住宅开发中,本次五期共计1801套房源,本次拿证首推825套左右。
首先来看看融湖盛景花园的户型图,本期共有三个户型,82㎡3房、94㎡3房2卫、111㎡4房2卫。延续融湖中心城一贯的风格,户型主要以刚改户型为主。
周边二手房价格
项目周边有融湖中心城一期二期指导价格均为4.3万,前段时间融湖居仅剩的少量现房备案价约45000元/㎡。二手房价格大概为5万左右,新房与二手价并不会有太大的倒挂,但是项目自住是不错的选择,毕竟是配套齐全的居家大盘。
项目点评
融湖中心城五期,是目前平湖片区即将入市配套最好最全的新盘,项目占据地铁,高铁,学校,商业配套,项目容积率低,住家舒适,也是平湖中心区地带。
平湖由于整体片区环境和在深圳其他片区对比总体上对比位置一般,也不是置业热点片区,新盘供应一直比较少。近几年平湖的基础配套设施发展的比较快,不过整体的城市面貌仍需通过旧改来提升。

融湖盛景花园开发商售楼处电话:400-992-0669(中介勿扰)
过来营销中心看房,记得提前来电预约,感谢你的配合!
提前预约享受楼盘内场优惠折扣,并安排现场销售一对一服务!
来电可了解楼盘最新动态、房价、在售房源、交楼时间等信息!
免责声明🔉:以上所发布的楼盘相关信息仅供参考,所有图文资料及说明请以最终批文及双方在楼盘现场签署的买卖合同为准;本图文内容如无意中侵犯某方权益,请联系我们将会及时处理。
声明:本文由入驻焦点开放平台的作者撰写,除焦点官方账号外,观点仅代表作者本人,不代表焦点立场。
