宝安宏发悦云花园售楼处(欢迎您)深圳宏发悦云花园|首页网站@售楼处楼盘详情
扫描到手机,新闻随时看
扫一扫,用手机看文章
更加方便分享给朋友
宝安【宏发悦云花园】宏发悦云花园开发商售楼处电话:400-992-0669(中介勿扰)
来电可了解楼盘最新动态、房价、在售房源、交楼时间等信息!让你买的放心,住的舒心!
宏发悦云花园开发商售楼处直销_欢迎来电预约享受内部折扣_恭迎品鉴
◆提前来电-预约登记尊享售楼处销售专业讲解〢一对一热情服务〢◆
温馨提示:开发商售楼中心〢预约可享内部优惠〢匠心钜制-恭迎品鉴〢
项目核心价值点
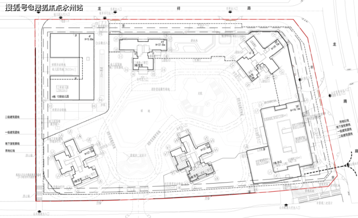
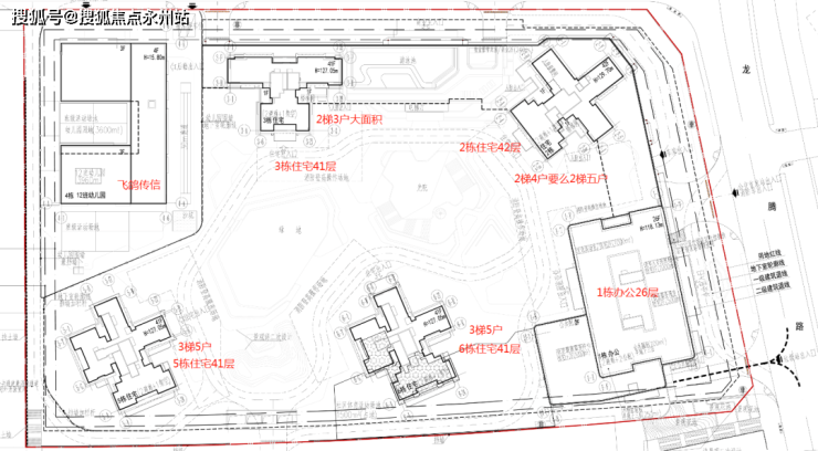
宏发·悦云花园前身为宏发云熙谷二期,后更名为宏发悦云花园,项目位于宝安区石岩大道与石清大道交汇处的东侧,南侧临近沈海高速,在建的13号线罗租站位于项目西侧的道路尽头。较多数据还未公布,陆续更新中.....项目规划住宅共约803户,容积率4.8,车位1478个,一共6栋,1栋是办公,4栋是幼儿园,2、3、5、6栋是住宅,其中2栋最高42层,3、5、6栋都是41层。
宏发悦云花园可售房源803套,主力户型为89-114平3-4房,已开盘,直接认购。
项目介绍
宏发悦云花园位于石岩大道、石清大道、龙腾路、龙详路的围合范围。北面为项目一期(云熙谷);东面一街之隔是石岩文化艺术中心;南下是有名的旅游景区阳台山公园。宏发悦云花园 前身为宏发云熙谷二期。目前建设进度约15层左右,基本上达到了可入市标准,预计均价在5.5-5.7万左右。

宝安区石岩大道与石清大道交汇处的东侧,南侧临近沈海高速,在建的13号线罗租站位于项目西侧的道路尽头。

根据资料显示,悦云花园建设用地面积26060.72平,总建筑面积193949平,计容建面124194平,其中住宅建筑面积73811平,商业建筑面积3624平,办公建筑面积29538平,机动车位1478个,容积率4.8,绿化率30%。

项目总房源803户,户型套内建筑面积<90平有727户,占总量比例90.54%,项目由4栋超高层住宅、1栋12班幼儿园、1栋办公楼组成,其中2栋、3栋、5栋、6栋为住宅楼栋,4栋为12班幼儿园,1栋为办公楼栋,涵盖了办公、商业、物业服务用房等小区配套设施。
规划平面图
开发商实力

〖宏发集团〗
宏发集团秉持“以产促城,以城兴产”的核心理念,历经多年沉淀,现已发展成为多元化、综合型“产城运营服务商”,形成产业运营、商业运营、居住运营、物业物发、酒店运营五大业务驱动的运营生态圈,助力城市的经济繁荣、可持续发展
〖宏发物管〗
秉承宏发“诚信、务实、创新、共赢”的核心价值观,物业坚持“用心服务每一天”的服务理念,从礼仪的细节,到安全的守护,将每个业主的生活日常需bai求一一考虑在内。
区域价值
片区规划:根据十四五规划,宝安区将重点推进宝安中心区、空铁门户区、会展海洋城、石岩科创城、燕罗智造生态城建设,项目所属片区为石岩街道,在此期间:石岩将布局“三带两区一中心”,把科创城“规划图”变成“实景图”。
一是“一中心”,指的是石岩新中心,通过增强城市能极“动力源”,助力宝安现代化、国际化步伐。
石岩新中心,四条轨道交汇于此,我们将以轨道石岩站-上屋站为轴线,规划半径约1公里、面积约4.7平方公里的新中心区。目前,区域内有6个项目列入城市更新单元。我们将对标宝安中心区,对轨道站点周边500米范围内的地上地下空间,探索连片开发利用。十四五期间,将新增65万平方米居住空间、3万平方米地下商业空间,打造TOD示范城区。
二是“两区”,指的是石岩南国家高新区和石岩东先进智造区,通过产业发展“双引擎”,助力宝安打造更有含金量的智创高地。石岩南国家高新区。规划面积6.12平方公里,我们将布局“双轴•双中心•五片区”,谋划九大特色产业园,开展一轴七廊七园景观提升,打造科技转换示范、产城融合标杆。十四五期间,将新增产业空间240万平方米,规上工业总产值可达1300亿。
石岩东先进智造区。规划面积5平方公里,主要在水田-石龙片区,这里聚集有31家亿元以上企业,将重点针对“卡脖子”技术,发展集成电路、新能源、新材料三大支柱产业,形成以欣旺达、第三代半导体为龙头的两大千亿级产业集群,培育以惠科、裕同、昊阳天宇为代表的百亿级增长极。十四五期间,将新增产业空间55万平方米,规上工业总产值可达1100亿。
三是“三带”,指的是山河湖城市景观带、石观路城市商务发展带、松白路科技创新引领带,通过“三轴传动”,助力宝安建设更有辐射力的核心引擎。
山河湖城市景观带。我们按照“打通、联结、激活”设计原则,不断提升山河湖景观品质,推动阳台山新增2个登山广场,贯通40公里生态联络道;做好19.55公里应人石河、牛牯斗水库—石岩河碧道建设,打造全省“万里碧道”样板街道,让山河湖更有灵气、更具神韵。
石观路城市商务发展带。西接松白路、东至石龙大道,规划总长4.04公里,沿线14个城市更新项目,待开发土地0.91平方公里,重点推动水田旧村等7个项目开工建设,推动成兴工业区等7个城市更新项目列入计划,将新增商住综合体150万平方米,打造城市中央会客厅。
松白路科技创新引领带。南连西丽湖国际科教城、北接光明科学城,规划总长10.2公里,是深圳西部创新发展轴的战略支点。我们将加快实施松白路市政化改造,重点推动沿线13个产业类城市更新项目、9个旧工业区升级改造项目开工建设,打造深圳创新产业发展的重要承载区和支撑配套区。
周边配套
交通配套
项目紧邻地铁13号线罗租站(一期预计2023年通车),3站进南山,6站科技园,9站直达后海,连通深圳湾。
地铁13号线示意图
地铁6号线(已通车)官田站,5站达深圳北,12站达科学馆,快速通达龙华、福田中心
地铁29、33、25号线(规划中)。
陆路:“三纵两横”路网——龙大、南光、广深三大高速纵横南北,机荷高速、南坪快速贯穿东西,毗邻石岩大道、石清大道、松白路;
南光高速:由北向南延伸,经南光高速向南可直达宝安中心、前海、南山中心区;
机荷高速:呈东西走向,目前正改造为上下双层八车道,通车后可直通机场;
石清大道:由西向东,串联宝安、龙华、龙岗,未来出行将更加便利。
商业配套
宏发大世界(岁宝百货)、星城购物中心、汇邦中心、佳华商场
教育配套
项目自带一所幼儿园
石岩公学(12年一贯制学校)
西侧规划一块教育用地
医疗配套
宝安区石岩人民医院
人文配套
文化艺术中心、体育馆
生态配套
坐拥 “一山两水一绿道”(阳台山、石岩湖水库、铁岗水库、石岩绿道),年均气温比中心城区低1-3℃,PM2.5远低于中心城区;
阳台山森林公园:拥有深圳八景之一“羊台叠翠”,公园总面积约28.52平方公里;
石岩湿地公园:总面积约 92 万㎡,拥有深圳最长环湖绿道——石岩绿道,总长度达30.5公里。
羊台山实景图
约79㎡


3房2厅1卫
分布:3栋03/05;5/6栋06/07
约89㎡
3房2厅2卫
分布:2栋03/05/06;5/6栋01/02/03/05



约115㎡
4房2厅2卫
分布:2栋01/02
约128㎡
4房2厅2卫
分布:3栋01/02
实景拍摄
效果图鉴赏
铝板+玻璃外立面 匠心生活美学
约9米层高尊崇主入口 彰显荣耀归家
约6米层高入户大堂,采用现代简约设计,通过优越的建材选造,展现大尺度空间感,成就尊荣归家仪仗。
“轻曼之城 城市山景”主题园林
因地制宜,塑造多层次景观规划,打造城市山景立体园林景观;
众多青草植被、园艺小品点缀,完美覆盖春夏秋冬,达到四季换景的效果。
下沉式“美学光院” 全龄社区配套
园林结合“光院“主题,设置下沉式空间,进一步拓展活动空间,打造超大儿童活动专区,满足0-12岁全龄段需求;
同时将景观性与功能性融合,打造社区双跑道、泳池、架空层泛会所等全气候场地。
宝安【宏发悦云花园】宏发悦云花园开发商售楼处电话:400-992-0669(中介勿扰)
来电可了解楼盘最新动态、房价、在售房源、交楼时间等信息!让你买的放心,住的舒心!
宏发悦云花园开发商售楼处直销_欢迎来电预约享受内部折扣_恭迎品鉴
◆提前来电-预约登记尊享售楼处销售专业讲解〢一对一热情服务〢◆
温馨提示:开发商售楼中心〢预约可享内部优惠〢匠心钜制-恭迎品鉴〢
项目没有所谓的“分机号”注意保护个人隐私!谨防上当!看房请务必提前预约,避免临时无人接待,感谢您的配合!
免责声明:
1、以上关于本楼盘宣传资料仅作为客户邀约邀请,不作为要约或者承诺,对本楼盘相关配套、地铁、学校(建设)规划或者户型介绍,旨在提供相关信息,不意味着本公司对此作出承诺,相关内容不排除因政府相关规划、规定及开发商未能控制原因而发生变化,最终以政府相关部门审批文件为准。
2、以上所发布的关于石岩宏发悦云花园户型图与样板间实拍图所示平面仅供参考,具体因楼栋、楼层的差别,局部结构、面积等存在不同,不构成要约内容。户型图与样板间内部实拍图所示家具和电器配置仅供参考,不作为交付标准,最终以买卖合同为准。
3、关于双方权利义务以双方签订的相关合同为准。
4、相关公共配套设施及规划条件以政府审批的文件为准。
5、以上部分图文内容可能因来自网络,如有侵权请联系我们,将配合并及时处理。对使用本网站信息和服务所引起的后果,本网站不作任何承诺。
声明:本文由入驻焦点开放平台的作者撰写,除焦点官方账号外,观点仅代表作者本人,不代表焦点立场。
