鸿荣源胤璞(鸿荣源胤璞售楼处)首页网站|鸿荣源胤璞欢迎您_价格_户型_地址
扫描到手机,新闻随时看
扫一扫,用手机看文章
更加方便分享给朋友
鸿荣源中心·胤璞【鸿荣源胤璞】 前海首排一线永久海景
稀缺资源,高奢品质,身份象征 在售:85-130-160-360㎡1-4房
南山前海【鸿荣源中心·胤璞】鸿荣源胤璞开发商售楼处电话:400-992-0669(中介勿扰)
项目没有所谓的“分机号”注意保护个人隐私!谨防上当!看房请务必提前预约,避免临时无人接待,感谢您的配合!
项目基础信息
占地面积:约5万㎡
建设用地面积:约3.8万㎡
总建筑面积:超34万㎡(2栋甲级办公楼、1栋五星级酒店,2栋服务式公寓)
梯户比:T1栋27层3T2户 T2栋41层2梯4户
层高:3.3-3.5米
商务公寓:约5.3万㎡
商务办公:约17.2万㎡
酒店:约5万㎡
商业:约6.4万㎡
公寓、商业建筑设计公司:LEAD8
写字楼、酒店建筑设计公司:美国GP
公寓建筑面积:约5.26万㎡
总套数:约300套
产品面积:86-130-166-366㎡(1房-2房-3房-4房)
产权年限:40年(2013年-2053年)
开发商:鸿荣源集团
物业公司:鸿荣源物业
交楼标准:精装(大师定制)
交楼时间:2021年10月底
物业管理费:12.8元/㎡·月
单价:15-30万/㎡
地铁:项目与前海交通枢纽地下联通;5号线(桂湾站);1/5/11号线(前海湾)
项目地址
前海鸿荣源中心·胤璞位于前海之心,湾景天际线标志性建筑,前海滨海大道与临海大道交界处,距离地铁5号线桂湾站约200米左右。
北面与周大福金融大厦相邻,后者将入驻周大福内地总部、汇丰集团华南区总部等港资元素;
东面与卓越前海金融中心、华润前海金融中心等项目一路之隔,将来的前海万象系列购物中心便坐落于此;
东面临近前海湾,且与规划中的剧院、公园相邻,公建部分的建筑相对低矮,搭配形成错落有序的天际线;
项目所在的桂湾片区为前海的核心区域,规划重点发展金融、信息、贸易、会计等生产性服务业,吸引企业总部集聚,同时发展生活性服务业,打造集中展示前海整体城市形象的核心商务区。
桂湾片区目前已规划、在建和建成的项目相对较多,土地属性也比较丰富多元。 除了已基本建成的华润、卓越、恒裕、前海时代一二期住宅项目外,还规划有剧院、国际会议中心、前海湾综合交通枢纽等。
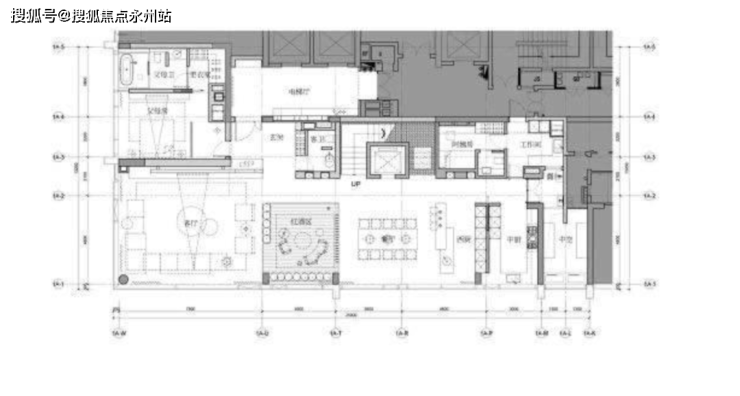
项目平面图
T2栋(41层2梯4户,人脸识别到层)
86㎡ 1套房+1书房,客厅、卧室全朝东南,看花园和城市夜景;
130㎡ 两房两厅两卫,客厅和两间卧室都朝东南向,4.5米客厅开间,7.5米大阳台,看桂湾河、部分海景和城市景观;
135㎡,两房两厅两卫,户型亮点:双龙抱珠,厅出阳台;两卧室和客厅相同景观,都可享受一线海景、18万演绎公园景观;
166㎡平层,三房、两厅、三卫,户型亮点:7.8米超大开间,大横厅转角270℃无敌一线海景及18万演绎公园景观,可以说除了卫生间全是海景、公园景观及摩天轮景观


T1栋楼王(27层3梯2户,人脸识别,专梯入户)
366㎡平层,4房3厅4卫4阳台+工人套房+洗衣间,户型亮点:主佣电梯分离入户,10米开间超大横厅设计,71万㎡双公园环抱、270度一线无敌海景、多变的城市景观以及大小南山复合景观汇聚一身,除了电梯,全是景观
项目图片

会所

样板房




立体枢纽 自由切换
前海作为大湾区核心交通枢纽中心,将构建“9+2+1”陆海空立体交通构架,加快前海与香港等湾区城市互联互通,加速链接全球核心城市,四通八达的先进交通规划,助您愉悦出行。
大湾区的交通中心在前海 7+5轨道,超200万平米的亚洲最大交通枢纽 前海综合交通枢纽位于前海桂湾片区,占地约20万平米,建筑面积超200万平方米,总投资约288亿,目前是在建的亚洲最大的交通枢纽。前海综合交通枢纽定位为对外交通中心、通勤中心,是穗莞深城际线、港深西部快线、深圳地铁、常规公交线路、出租车及社会车辆等多种交通接驳方式于一体的综合性交通枢纽。
前海综合交通枢纽由享誉世界的德国建筑师事务所GMP负责规划,包括地上和地下两部分
地上部分的开发早已不仅限于交通,而是围绕着交通所带来的各种城市功能的聚集。除了出租车和公交系统,前海综合交通枢纽的地上部分还有九栋超高层建筑,包括3家酒店和办公、公寓等业态。另外还规划有大型商业配套,办公居住、休闲娱乐,一站尽享。
地下部分则是一个多维度复合交通体系,规划共有6层,融合了地铁、城轨、高铁
地下5、6层
为满足未来前海片区需要,地下5层、6层将建成一个拥有5300个停车位的停车场,预期是深圳最大的停车场。
地下4层
地下4层是两条城际轨道线:港深西部快轨和“穗莞深”城际轨道线。
港深西部快轨建成后,从前海出发15分钟可达香港(快轨支路直通中环),25分钟内港深机场互通,同时还预留了出入境口岸及机场值机服务设施。未来前海综合交通枢纽将是广深港3大珠三角超级都市的连接中心,形成世界级经济发展轴。
地下3层
3条城市轨道线:深圳1、5、11号线,三条地铁线交汇的前海湾站目前已开通。15分钟内即可抵达福田高铁站、宝安国际机场T3航站楼。
正在建设中的9号线西延线预计年底开通,便捷通往南山科技园、红树湾,正在建设的20号线,与11号线、穗莞深城际线换乘,未来将通往机场、新的国际会展中心。
未来前海轨道网密度达到每平方公里3.5公里,将成全球地铁密度最高城区之一。
地下1、2层
地下一层和二层是商业区。
此外,前海综合交通枢纽还规划有光明快线、坪山快线、深惠城轨、深珠公铁通道、双Y连接线。
未来,前海将通过高铁、城轨、隧道、桥、联通大湾区各大主要城市!
一个世界级的交通枢纽正在兑现!
国际化城市新中心
粤港澳大湾区规划纲要发布后,前海规划升级为:国际化城市新中心!
《粤港澳大湾区发展规划纲要》第十章:
《规划纲要》第十章单列一节介绍前海,并提出“建设国际化城市新中心”。
3.12《深圳特区报》A7版报道:
这里面有两个关键点,一个是国际化。
深圳和香港、北京、上海比最大的不足在哪里呢,很多人会说,深圳在历史文脉、教育资源、医疗资源上还有非常大的差距。其实,深圳跟香港、北京、上海比,还有一个巨大差距,就是国际化的水平。
走在香港、北京,上海的核心城区,你随时随地都能碰到外国人。但是在深圳,你可能只能在蛇口的少数酒吧等这样的区域,才能看到几个外国人。
根据规划定位,未来,前海就是深圳国际化水平最高的一个中心区。
未来前海将成为深圳国际化程度最高的城市新中心。
未来前海的样子,看看拥有中央公园、博物馆、艺术馆等丰富配套的曼哈顿
前海将按照“公园中建城市、城市中建公园”的理念,规划“一湾、两山、五区、四岛”结构,建设国际化城市新中心。
“一湾、两山、五区、四岛”
一湾:生态前海湾
两山:大南山、小南山
五区:桂湾区、前湾区、妈湾区、蛇口片区、宝安中心区
四岛:国际科技创意岛、深港服务贸易岛、国际交流会议岛、深港航运物流岛
丰富配套
24小时不落幕的人文高地,伯克利未来音乐中心、前海国际金融中心、前海演艺中心、前海综合交通枢纽、欢乐港湾等世界级城市客厅配套咫尺尽享 。
首排永久无敌景观
18万㎡演艺公园、45万㎡桂湾公园双公园环绕,绝美前海湾尽收眼底
独有的公园街区式商业,多功能复合店铺的空间设计,为商务与休闲提供多元服务,让工作与生活达到健康平衡。
桂湾公园,位于前海鸿荣源中心·胤璞项目南侧, 毗邻前海桂湾金融先导区,东至月亮湾大道,西至滨海岸线,北临海滨大道及桂庙路,南至前海大道及桂湾河南街, 占据前海的“心脏”位置,可通过地铁9号线梦海站D出口直达。
整个公园自东向西呈带状分布,一条碧绿的河流贯穿全园,全长约 2.2 公里,绿地率约 73%。公园南北两岸由城市界面到桂庙渠水廊道划为三层系统:公园陆地绿地系统、淡水湿地系统、红树林生态湿地系统。沿水域的两侧河滩由大量绿植包围,并设有人行通道,外岸由写字楼群及高端住宅、公寓楼宇等包围,是一个 "一槽、两滩、两岸" 的高颜值景观公园,也是前海唯一永久性水廊道公园。
圈层-谈笑皆为鸿儒
城市顶级圈层标杆,世界精英齐聚于此,世界500强领袖居住首选
【对话城市未来】集2栋总部级超甲级写字楼、1栋奢华五星级酒店、顶级商业-壹方汇、2栋天际海景公寓于一体
品牌 实力保质信心
品牌开发商做背书,倾注了豪宅专家鸿荣源集团30年豪宅打造经验,代表深圳顶豪第一序列的作品;品质-寰球大师之作Kelly Hoppen、SCDA、邱德光、美国GP、LEAD8、美国SWA、美国TOPO、SED新西林等多个国际顶级大师团队的智慧在此集结
金牌物业
物业-因尊贵而崇尚金牌物管、私家会所,鸿荣源旗下最高规格“鸿玺”专属顶级定制式物业服务
【细节-匠心造就极致】9m通高的半室外阔绰落客区,12.5m挑高、面积约1200㎡的奢华大堂,宽幅达4mIMAX巨幕观景玻璃

鸿荣源集团创建于1991年,从宝安区发家,有地产“宝安王”之称。如今,成为以房地产开发、商业运营、产业发展、金融科技四大版块为核心,多元化经营的大型综合性企业集团。
在房地产开发领域,坚守深圳大本营,累积开发项目面积超过1000万㎡,有大家耳熟能详的宝中标杆之一的熙龙湾、龙华超级综合体的壹成中心花园、香蜜湖豪宅地标的熙园、龙中人居典范的公园大地等,品控优良,积淀了较好的口碑。
南山【鸿荣源中心·胤璞】鸿荣源胤璞开发商售楼处电话:400-992-0669(中介勿扰)
来电可了解楼盘最新动态、房价、在售房源、交楼时间等信息!让你买的放心,住的舒心!
鸿荣源胤璞开发商售楼处直销_欢迎来电预约享受内部折扣_恭迎品鉴
◆提前来电-预约登记尊享售楼处销售专业讲解〢一对一热情服务〢◆
鸿荣源胤璞开发商售楼中心〢预约可享内部优惠〢匠心钜制-恭迎品鉴〢
温馨提示:项目没有所谓的“分机号”注意保护个人隐私!谨防上当!看房请务必提前预约,避免临时无人接待,感谢您的配合!
免责声明🔉:以上所发布的楼盘相关信息仅供参考,所有图文资料及说明请以最终批文及双方在楼盘现场签署的买卖合同为准;本图文内容如无意中侵犯某方权益,请联系我们将会及时处理
声明:本文由入驻焦点开放平台的作者撰写,除焦点官方账号外,观点仅代表作者本人,不代表焦点立场。
