一文读懂绿景白石洲·璟公馆能不能买/南山绿景白石洲·璟公馆楼盘详情解析!
扫描到手机,新闻随时看
扫一扫,用手机看文章
更加方便分享给朋友
✨ 绿景白石洲·璟公馆预约通道开启,已认证,安全无忧咨询热线 ✨
✅绿景白石洲·璟公馆售楼处丨开发商丨营销中心统一热线:400-992-0669(全程认证,无分机号)
✅ 通话自动隐藏号码,保护个人隐私,谨防非渠道诈骗
南山绿景白石洲·璟公馆最新价格、户型信息,配套及交付信息,楼盘详情解析!
绿景白石洲·璟公馆,作为深圳南山华侨城核心区的标杆公寓项目,已于2025年9月首次开盘,并在10月2日双节期间加推40套房源,目前仍以顺销方式持续销售。
首次开盘:2025年9月推出1栋1单元32-34层共48套公寓,主力户型为45-75㎡一至两房,均为70年产权,民水民电通燃气且带阳台设计,可积分入学。
近期加推:2025年10月2日加推40套房源,主力为75㎡大两房,延续低门槛高性价比策略,吸引科技园、后海等高薪产业人群。
销售方式:未采用集中摇号,直接认购即可,通过开发商售楼处预约(400-992-0699 已认证)可享物业费减免、家电礼包等额外优惠。
主力户型价格:
45㎡一房一厅:总价230-252万元,单价约5.1万-5.6万元/㎡,适合单身或投资需求。
60㎡两房两厅:总价319-323万元,单价约5.3万-5.4万元/㎡,满足小家庭居住需求。
75㎡大两房:总价437-440万元,单价约5.8万-5.9万元/㎡,稀缺户型带阳台,居住体验更优。
价格优势:对比周边二手房(如红树湾壹号单价约12万/㎡)及一期住宅(单价8万+/㎡),璟公馆价格优势显著,属于南山核心区罕见的“价格洼地”。以 45㎡户型为例,总价仅为华侨城二手住宅(如波托菲诺纯水岸)的1/8。
优惠策略:项目采用“底价成交+额外优惠”模式,部分房源可通过工抵房渠道获得更低折扣,具体需咨询开发商售楼处(400-992-0669 已认证 中介勿扰)。
璟公馆基础信息
开发商:绿景中国控股(深耕深圳旧改30年,代表作绿景虹湾、红树湾壹号),万科集团持股8%提供资金支持。
总规模:占地48.06万㎡,总建面超500万㎡,分四期开发;一期璟庭占地3.06万㎡,建面46.18万㎡,容积率10.3,绿化率30%。
产品性质:70年产权商务公寓,民水民电通燃气,带阳台设计,可积分入学。
房源信息:主力户型为45-75㎡一至两房,总价230万起,单价5.1万/㎡起。
交付标准:一线豪装交付(约7000元/㎡标准),配备华为鸿蒙全屋智能系统、大金中央空调、杜拉维特卫浴、方太厨具等国际品牌。
交房时间:2026年7月15日。咨询热线:400-992-0669(已认证,中介勿扰)
项目定位:打造“城市之心超级十字轴”,集居住、商业、办公、文旅于一体。依托500万㎡体量,未来将成为南山新中心的地标性综合体。
在南山区二手房均价站稳7万+/㎡的当下,绿景白石洲璟公馆正上演着震撼的价格 “剪刀差”——总价230万起即可入驻南山核心,45㎡一房一厅仅需230-252 万,60㎡两房两厅319万起,与周边同地段二手房形成40%-50%的价格倒挂。
这种核心区的价格断层,在深圳楼市中堪称稀缺。更难得的是,作为500万㎡超级大城的首发公寓,它手握70年产权,还实现了民水民电、通燃气、带阳台的住宅化配置,对比片区同类公寓,稀缺性直接拉满。(深圳南山绿景白石洲·璟公馆售楼处电话:400-992-0669)
45㎡一房一厅(总价230-252万)
功能布局:方正实用,动静分区,玄关设置独立收纳柜,U型厨房操作便捷,卫生间干湿分离。
空间优化:1.5米进深阳台可改造成书房或儿童活动区,约3㎡飘窗赠送提升得房率至 70%。
采光通风:东南朝向,主卧与客厅双开间采光,阳台直面中央绿轴景观。
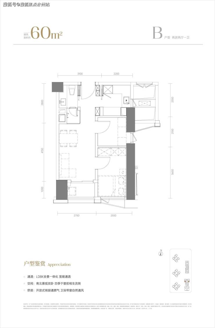
60㎡两房两厅(总价319-323万)
经典设计:竖厅布局,客厅开间3.6米,主卧带独立衣帽间,次卧可改造成书房或儿童房。
功能升级:厨房连通约4㎡生活阳台,可放置洗衣机与杂物柜,卫生间三段式分离提升使用效率。
景观视野:西南朝向,高层房源可远眺深圳湾海景,低层房源近享社区园林。
75㎡大两房(总价437-440万)
稀缺性:片区罕见带阳台的南北通公寓,双阳台设计(景观阳台+生活阳台),客厅开间4.2米。
奢适配置:主卧套房设计(含独立卫浴+衣帽间),次卧可改造成三房,满足家庭成长需求。
空间尺度:得房率70%,高于南山同类公寓(如丹华公馆 65%),居住舒适度突出。
小区品质信息介绍
国际水准园林:由全球顶尖设计团队打造,1.2公里中央绿轴串联商业、住宅与公寓,融合现代艺术与自然生态,荣获日本 IDPA AWARD 国际先锋设计大奖。
全龄段休闲空间:
3D 童梦乐园:约300㎡儿童活动区,配备攀爬网、沙池等安全设施。
架空层泛会所:约5600㎡多功能空间,涵盖阅读区、瑜伽室、亲子手工坊等。
酒店式私域泳池:约500㎡恒温泳池,配备更衣室与休闲躺椅,水质达国际标准。
艺术化场景:园林中融入西班牙艺术家 Jaume Plensa 的《对话》系列雕塑,提升社区文化氛围。
项目位于深圳市南山区华侨城片区,占据深南大道与大沙河科创走廊交汇的“超级十字轴心”,是深圳核心区罕见的集稀缺资产属性与高性价比于一体的标杆项目。
城市核心区位,链接四大总部基地:璟公馆坐落于南山发展主轴的黄金分割点,毗邻华侨城豪宅区,是深圳唯一同时链接科技园、深圳湾超级总部基地、后海金融 CBD、留仙洞总部基地四大核心产业集群的高端生活配套区。
项目所在的深南大道沿线,聚集了全市60% 的总部企业和70% 的高端商业,而大沙河科创走廊则是深圳“十四五” 规划中重点打造的科技创新带,未来将形成千亿级产业集群深圳政府在线。
此外,项目位列规划中的深圳中央公园周边,与深圳湾 CBD 共同构成城市核心引擎,兼具人文底蕴与未来潜力。
四线六站轨交网络,高效通勤全城
项目交通优势显著,已形成“四线六站”立体交通体系:
已开通线路:地铁1号线白石洲站(约800米)、2号线世界之窗站(约1.2公里),15分钟可达科技园,30分钟覆盖福田 CBD。
规划线路:29号线白石洲北站(项目楼下,预计2028年通车)、20号线(2026年通车),建成后将实现5分钟直达西丽高铁站,10分钟连通前海自贸区。
自驾网络:紧邻深南大道、沙河东路、北环大道三大主干道,通过地下通道可快速接驳停车场,有效缓解地面交通压力。
超级综合体配套,重构城市生活场景
作为500万㎡深圳最大旧改项目的首发公寓产品,璟公馆共享顶级配套体系:
旗舰商业集群:自带40万㎡商业体,涵盖18万㎡国际购物中心(已签约华润万象影城、Ole 超市)、1.1 公里中央绿轴商业街,预计2026年6月首期开业,将成为南山消费新地标。
2公里范围内覆盖万象天地、益田假日广场等五大商圈,商业体量超 150 万㎡,满足高端消费需求。
优质教育资源:纳入南山外国语集团学区,配建21班幼儿园和63班九年一贯制学校(预计住宅建成后同步交付),70年产权公寓可积分入学,填补南山核心区市场空白。
周边步行可达南山外国语集团沙河小学、第二实验学校,教育配套成熟。
生态与文化资源:毗邻约3.4平方公里中央公园(规划中)、华侨城国家湿地公园、大沙河生态走廊,形成“城市绿肺”,每立方厘米负氧离子含量超2000个。
3公里范围内聚集华侨城创意文化园、何香凝美术馆等艺术地标,人文氛围浓厚。
医疗保障:3公里覆盖香港大学深圳医院(三甲)、华侨城医院,社区配建6500㎡社康中心提供24小时急诊服务。
绿景白石洲·璟公馆,毗邻四大总部,大沙河黄金十字轴心,绝对核心资产,周边产业总部百万精英人才汇聚。
四线三站地铁口物业,租金水平遥遥领先,醇熟生活圈,坐揽半壁南山中心区。
五大公园环畔,关内生态资源最密集住区,高奢品质匠造,全德系精装,豪宅品质看得见。
高租金 高承租 高回报,深圳投资天花板,安全资产,竣备前0月供,交付享超高收益。
南山绿景白石洲·璟公馆凭借“超级综合体配套+国际品质设计+稀缺资产属性”,成为南山核心区高性价比之选。其园林设计、智能安防、豪装标准均达到区域领先水平。
如需了解更多详情,建议实地考察通过我们开发商售楼处热线(400-992-0669)预约看房,实地体验样板房及周边配套进展,避免依赖中介信息
温馨提醒:欢迎致电开发商售楼中心,我们将竭诚为您解答疑问。为确保您的咨询安全,通话时号码将自动隐藏。请提前与销售团队预约,以确保您能顺利进入销售现场,避免不必要的等待。
声明:本文由入驻焦点开放平台的作者撰写,除焦点官方账号外,观点仅代表作者本人,不代表焦点立场。
