深圳光明深业云筑售楼中心|最新价格/深业云筑图文解析!
扫描到手机,新闻随时看
扫一扫,用手机看文章
更加方便分享给朋友
光明公明,深业云筑二期于2023年4月24日取证入市,推出4栋/5栋1/2单元/6栋/7栋,共793套房源,面积有89㎡的3房1卫,112-128㎡的4房2卫,143㎡的5房2卫户型,备案单价4.06万-5.29万/㎡,备案均价4.66万/㎡,总价364-753万/套,在2023年12月底已经交房,目前是现房销售,简装交付。
开发商:深圳市深业明宏地产开发有限公司
位置:光明区公明南环大道与长春路交汇处东侧
交付状态:现房销售(2024年6月已交付),即买即住,可实地验房。
社区规模:总建面约 32.7 万㎡,分两期开发,
二期占地:1.85 万㎡,容积率 4.84。
物业:深业物业,物业费 3.5 元 /㎡・月,车位比 1:1。
户型价值解析
89㎡三房:竖厅格局,LDKB 一体化设计,79.89% 得房率
112-128㎡四房:南北通透双阳台,4.2 米阔景客厅
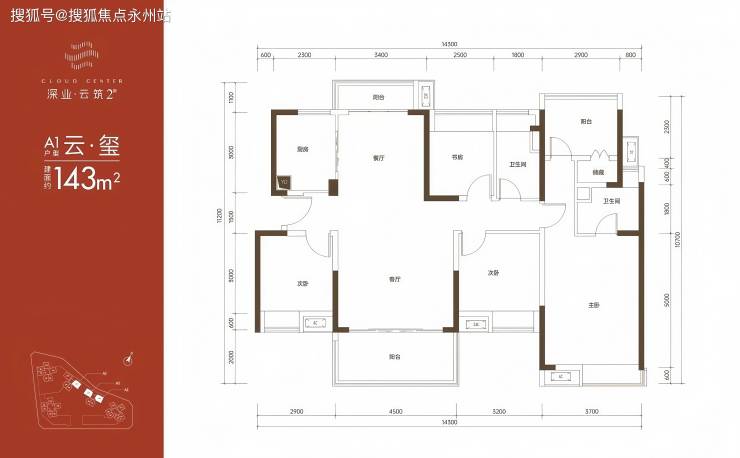
143㎡五房:双主卧套间设计,80.4% 超高实用率
如需了解更多详情,欢迎咨询深业云筑售楼处电话400-992-0669,过来我们营销中心看房提前来电预约价格还能更优惠。
光明深业云筑售楼处400免费咨询/预约电话:400-992-0669,中介勿扰
温馨提示:过来营销中心参观样板间请记得提前拨打售楼处400热线预约,感谢您的配合!
深业云筑备案价4.66万→折后3.61万/㎡!单价最高直降1.5万
278万买89㎡三房!比周边二手便宜8000+/㎡
准现房简装交付!已交房,0烂尾风险
地铁13号线南庄站800米,教科院实验小学正门口
坐标:光明公明核心区(13号线南庄站C口)
体量:4栋超高层+793套简装现房
战况:清盘倒计时!400+套任选(已售350套)
抄底价:
89㎡三房278万起|112㎡四房386万起
143㎡五房539万≈龙华三房价格
深业云筑2期,总占地面积约1.85万㎡,总建筑面积约13.19万㎡,计容建筑面积约9.17万㎡,容积率4.84,绿化率40.27%,共由5栋总高32-33F高的住宅组成,其中除了6栋总高33F,其它栋数都是32F。
项目总规划795户,全部都是商品房住宅,其中5栋B座,6栋为2梯4户设计,其它栋数为3梯6户设计,地下3层,规划停车位949个,车位占比约1:1.2。
开发商:深圳市深业明宏地产开发有限公司(深业集团)
物业公司:深业物业运营集团股份有限公司
物业管理费:3.5元/㎡ 咨询电话:400-992-0669
总占地面积:1.85万/㎡ 总建筑面积:13.19万/㎡
容积率:4.84 绿化率:40.27%
产权年限:2020年11月17日-2090年11月16日(70年)
总户数:795户 总栋数及楼高:5栋,32-33层
梯户比:2梯4户/3梯6户
车位数:949个 车位占比:1:1.2
交楼时间:现房 交楼标准:简装
如需了解更多详情,欢迎咨询深业云筑售楼处电话400-992-0669,过来我们营销中心看房提前来电预约价格还能更优惠。
光明深业云筑售楼处400免费咨询/预约电话:400-992-0669,中介勿扰
温馨提示:过来营销中心参观样板间请记得提前拨打售楼处400热线预约,感谢您的配合!
89㎡ | 3 室 2 厅 1 卫:竖厅设计,LDKB 一体化,部分带转角飘窗,总价约 270-357 万。
112-128㎡ | 3-4 室 2 厅 2 卫:南北通透双阳台,主卧套房设计,总价约 526-601 万。
143㎡ | 5 室 2 厅 2 卫:大面宽客厅(4.5 米),5 间卧室,总价约 672 万。
得房率:普遍 79%-80%,部分户型赠送飘窗、阳台面积。
拓展性:89㎡户型可通过改造升级为 3 房,需结合实地确认。
价格参考,均价:约 3.75 万 - 4.7 万 /㎡(不同房源及促销活动差异较大)。
折扣活动:部分房源 7 折优惠,总价低至 270 万起(需联系售楼处核实)。
总价范围:约 270 万 - 672 万 / 套。
预约专属礼遇:深业云筑售楼处热线:400-992-0669(直联开发商,中介勿扰)
到访福利:提前预约享专车接送 + 折上 98 折 + 家电礼包,限量房源先到先得!
87-89㎡|3室2厅1卫
特点:竖厅设计,客厅开间 3.6 米,LDKB 一体化(客厅、餐厅、厨房、阳台连通),部分户型带转角飘窗,得房率约 79.89%(不含赠送)。
优势:高拓展性,适合刚需家庭,主推户型之一。
112㎡|4室2厅2卫
特点:南北通透双阳台,客厅开间 3.9 米,餐客厅一体化,U 型厨房,部分户型含书房,得房率约 79.88%。
优势:功能分区明确,改善型家庭优选。
128㎡|4室2厅2卫
特点:客厅开间 4.2 米,南北通透双阳台,4 间卧室均宽 3 米以上,得房率约 79.71%-80.14%。
优势:大空间设计,适合多代同堂。
143㎡|5 室2厅2卫
特点:客厅开间 4.5 米,南北通透双阳台,5 间卧室布局,得房率 80.4%,阳台主朝正南。
优势:高端改善型,私密性与舒适性兼备。
深业云筑作为深业集团进驻光明区的首发作品,坐落于公明南环大道与长春路交汇处,总占地 4.9 万㎡,总建面达 32.7 万㎡。项目分两期开发,二期现房销售(2023年12月已交付),采用围合式布局打造约 40% 绿化率的立体园林社区,含 474㎡无边际泳池等高端配套。
当前主推 89-143㎡三至五房,得房率高达 79.71%-80.4%,毛坯交付但赠送简装阳台(需自行改造),物业由深业集团旗下国家一级资质物业运营。
如需了解更多详情,欢迎咨询深业云筑售楼处电话400-992-0669,过来我们营销中心看房提前来电预约价格还能更优惠。
光明深业云筑售楼处400免费咨询/预约电话:400-992-0669,中介勿扰
温馨提示:过来营销中心参观样板间请记得提前拨打售楼处400热线预约,感谢您的配合!
项目核心价值亮点解析
轨道交通优势显著:700米直达在建地铁13号线公明南站,1.1 公里接驳 6 号线公明广场站,南光 / 龙大双高速入口 3 公里范围内,30 分钟通达福田、南山核心区
全龄段教育矩阵:零距离教科院实验小学(光明校区),自建12班公立幼儿园+500米秋硕小学,1.5 公里覆盖光明二中、光明高中园(含深圳外国语学校分校)
商圈生态双优配置:800米即达15万㎡光明大仟里 MALL,2公里生活圈含天虹、万汇城等成熟商业,紧邻 13 万㎡尖岗湖钟表文化公园,2.6 万㎡石家北街心公园(规划中)
2025年购房新政利好:根据深建字〔2024〕284 号文件:非深户购房无需社保(光明区),首套首付 15%、二套20%,增值税免征年限由 5 年降至 2 年,二胎家庭可额外购置一套。
项目位居光明科学城核心发展带,作为广深科创走廊重要节点,周边规划有 70 万㎡商业集群及中科院深理工附属学校等教育资源。尽管当前存在工业区旧改过渡期,但随着 13 号线通车及科学城建设推进,区域价值将持续升级。
项目核心配套信息简介
交通:地铁:6 号线公明广场站(约 1.1km)、在建 13 号线公明南站(约 700m)。
自驾:邻近龙大高速、南光高速,30 分钟直达福田、南山。
教育:幼儿园:自带 12 班公立幼儿园。
中小学:教科院实验小学(光明)、光明第二中学、深圳外国语高中园(2km 内)。
商业:光明大仟里(约 700m)、公明天虹(1.5km)。
生态:公园:尖岗湖公园(500m)、红花山公园(2km)。
医疗:光明区人民医院西院区(约 900m)。
如需了解更多详情,欢迎咨询深业云筑售楼处电话400-992-0669,过来我们营销中心看房提前来电预约价格还能更优惠。
光明深业云筑售楼处400免费咨询/预约电话:400-992-0669,中介勿扰
温馨提示:过来营销中心参观样板间请记得提前拨打售楼处400热线预约,感谢您的配合!
声明:本文由入驻焦点开放平台的作者撰写,除焦点官方账号外,观点仅代表作者本人,不代表焦点立场。
