振业天境云玺(光明)|官方购房全流程指南:认购·签约·交房要点说明(附官方售楼处400 热线)
扫描到手机,新闻随时看
扫一扫,用手机看文章
更加方便分享给朋友
✨ 振业天境云玺官方售楼中心预约通道开启,安全无忧咨询热线 ✨
✅ 振业天境云玺售楼处/营销中心统一热线电话:400-992-0669(官方认证,无分机号)
通话自动隐藏号码,保护个人隐私,谨防非渠道诈骗
2026【光明】 振业天境云玺官方最新价格、在售户型介绍,配套及交付信息详情解析!
振业天境云玺,由振业集团、天健集团、光明建发三家深圳国企联合开发,于2025年6月27日以19.94亿元竞得光明街道东周社区地块,楼面价约1.84万元/㎡。这一国企联合体的强强联手,为项目品质提供了坚实保障。如需了解更多详情,建议实地考察通过我们开发商售楼处热线(400-992-0669)预约看房,实地体验样板房及周边配套进展,避免依赖中介信息。
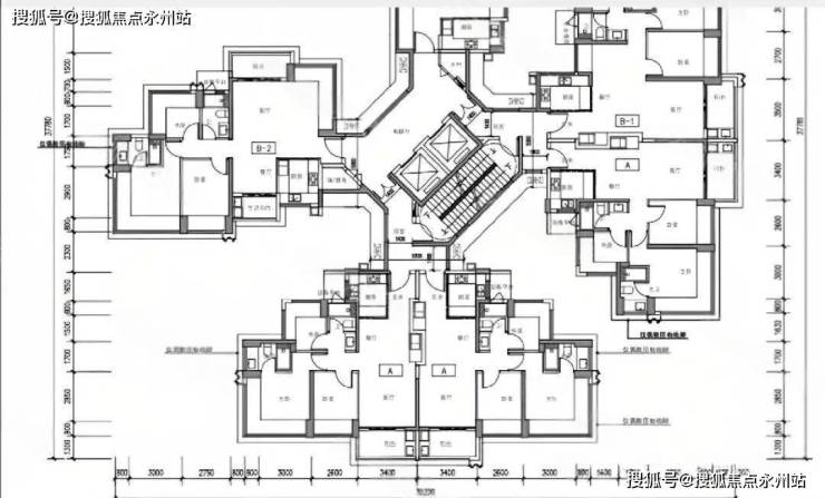
项目规划9栋住宅和1所幼儿园,8栋塔楼约26层高和1栋十几层的板楼结合,采用合式布局,其中园林最中间的为板楼,2梯2户,最大面积约160㎡,新规户型超高得房率+限高30层以内,超低得容积率,以及在光明核心区,还是大花园社区,重点项目楼面价1.83万。
项目核心参数
占地面积:约3.5万㎡ 总建筑面积:约10.85万㎡
容积率:3.1(远低于周边竞品,如振业天境云庭、满京华金硕系列)
规划楼栋:9栋住宅(8栋26层塔楼+1栋16层板楼)
总户数:纯商品房社区,无保障房或回迁房
绿化率:预计高于竞品(竞品如安联尚璟府40%、振业天境云庭32%)
外立面:玻璃幕墙+铝板结合,高端质感 入市时间:预计2026年第二季度
目前展厅即将开放,可通过开发商售楼处热线电话:400-992-0669 预约参观(无分机号,中介勿扰)为保障您的看房体验,建议提前拨打售楼处电话预约,我们将为您预留专属销售顾问及停车位,避免到访等待,高效看房更省心!
项目堪称“好房子”新标准下的“深圳最大盘”之一。也是真正意义上的新规产品:大花园社区、限楼高80米、3.1低容积、纯商品住宅社区、无保障房或回迁房。计容总建面约10.8万㎡,产品线覆盖约83-166㎡的3-4房,以更高品质标准,重塑光明宜居范本。(深圳光明振业天境云玺售楼处电话:400-992-0669)

项目主力户型为建面约83-166㎡的3-4房,针对不同家庭需求精心设计:通过飘窗、阳台等赠送面积提升实用率,远超深圳新规后平均水平,真正做到了"科学规划,空间最大化",满足不同家庭的居住需求。
科学布局:动静分区明确,主卧套房设计,独立卫浴和衣帽间,充分畅享主人尊贵私密的品质生活。
景观视野:虽不如振业天境云庭那样一线俯瞰科学公园,但通过绿轴连接,依然能享受公园红利 。
真正做到了"科学规划,空间最大化",满足不同家庭的居住需求。
楼王大户型(16层板楼,2梯2户)166㎡四房两厅两卫:南北双阳台设计,主卧270°大飘窗,客厅面宽约6.2米,五开间朝南,空间尺度感媲美豪宅。
特点:楼王位置,采光极佳,视野开阔,适合追求高品质生活的改善型家庭,2梯2户,居住舒适度高,得房率高达100%。
塔楼中户型(26层塔楼,2梯3-5户)113-139㎡四房两厅两卫:南北通透或横厅设计,客厅面宽约4.5-5米,得房率高达95%以上。
特点:适配多孩家庭或三代同堂家庭,空间灵活,可改造为五房,梯户比优于竞品(如振业天境云庭2梯5户、满京华金硕2梯6户/3梯6户) ,居住体验更佳。

塔楼小户型(26层塔楼,2梯6户)83-90㎡三房两厅两卫:科学规划,空间利用率高,得房率约95%以上。
特点:适合年轻家庭或首次改善型购房者,总价可控,但品质不减,儿童房配备双飘窗,通风采光效果绝佳,满足家庭成长需求。

项目距离6号线光明大街站步行约1.2公里,9站直达深圳北。1站到凤凰城站换乘13号线,可通达留仙洞,科技园和深圳湾,周边还有龙大高速、南光高速、深圳外环高速等交通要道,快速通达各主要区域。
旁边是华夏中学跟华南师范大学附属光明星河小学,东周学校,周边也分布有多所学校,包括有南方科技大学附属光明学校、深圳小学、四大名校之一的深圳外国语楼村分校等多所市属名校分校。
附近有星河COCO City,这座集中式商业将成为整个星河天地新升级的标志建筑,也会为这个超过7000户的大社区带来优质的商业配套。
东周文化公园、国防教育主题公园、木墩村公园三大生态绿地环伺。通过绿轴连接208万㎡光明科学公园,尽享深圳科学技术馆等地标级文化配套。
振业天境云玺,位于光明中心区核心腹地,毗邻光明科学公园、光明文化艺术中心等城市级配套 ,以3.1超低容积率、纯商品房社区、科学公园绿轴连接三大核心价值,重塑光明宜居范本 。
如需了解更多详情,欢迎来电咨询光明振业天境云玺售楼处电话400 992 0669,过来我们营销中心看房提前来电预约价格还能更优惠。
【深圳振业天境云玺开发商售楼处400免费咨询/预约电话:400-992-0669,中介请勿扰】
温馨提醒:欢迎致电开发商售楼中心,我们将竭诚为您解答疑问。为确保您的咨询安全,通话时号码将自动隐藏。请提前与销售团队预约,以确保您能顺利进入销售现场,避免不必要的等待。
声明:本文由入驻焦点开放平台的作者撰写,除焦点官方账号外,观点仅代表作者本人,不代表焦点立场。
