深圳紫园云墅(龙岗)首页网站丨紫园云墅楼盘详情_房价_户型_配套
扫描到手机,新闻随时看
扫一扫,用手机看文章
更加方便分享给朋友
一、项目基础信息
占地面积:约34500㎡
建筑面积:约157000㎡
容积率:1.36(二期)
在售套数:18套(叠墅)
在售户型:5号楼叠墅188㎡-235㎡、7号楼叠墅205-217㎡
层高:叠墅约3.6m
车位比:1:2(二期)
商业配套:cocopark、益田奥特莱斯、天安数码城shopping mall
管理费:叠墅9.0元/㎡·月
产权年限:70年
绿化率:30%
交楼标准:毛柸
交楼时间:现楼
开发商:深圳市中民投资发展有限公司
物业管理:深圳市晨晖物业管理有限公司
售楼处电话:400-992-0669
项目地址:深圳市龙岗区龙岗中心城龙平西路与黄阁路交汇处西侧
【多维交通】3号线、14号线、16号线三地铁汇聚,盐龙大道速通莲塘口岸罗湖口岸,享受高效过港特权。
【顶级商业】择址大运、龙中双中心天赐之地,并肩益田假日广场,天安数码城Shopping Mall,COCO Park等众多商业巨头,拉开龙岗中部综合服务带蓝图。
【大城市级公园】比邻大运中心,近享一场两馆城市级体育公园,周边龙潭公园、回龙埔公园、龙城公园等五大生态公园静候在此,尽享绿色自然资源。
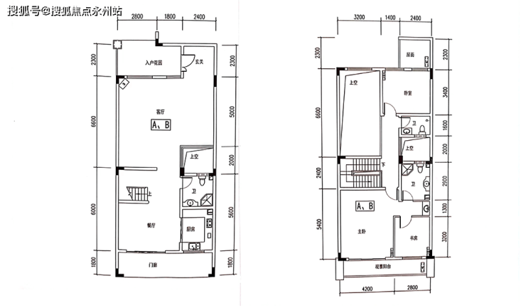
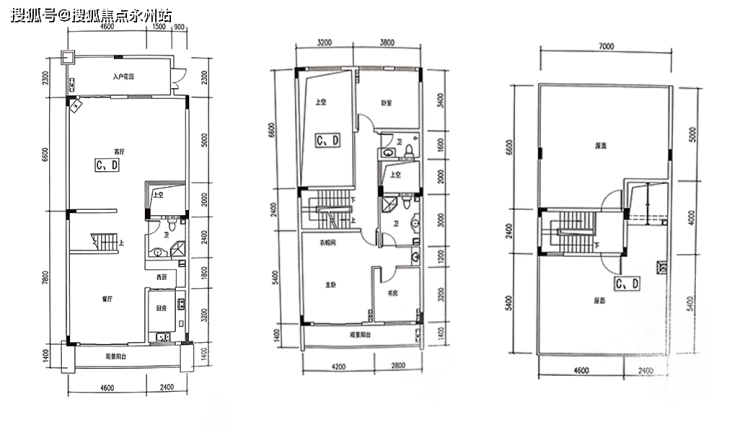
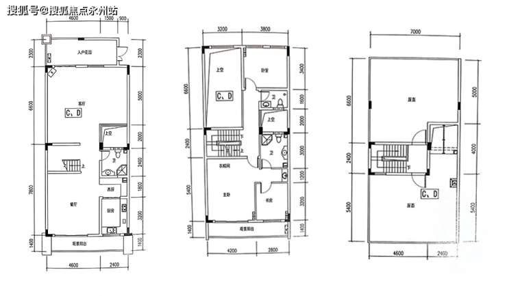
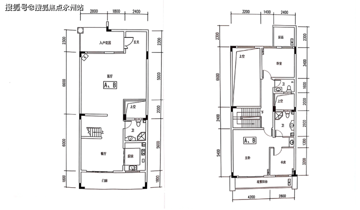
三、项目户型图
5号A/B户型
5号C/D户型
————————— —————————
7号A/B户型

7号C/D户型


深圳紫园云墅开发商售楼处电话:400-992-0669(中介勿扰)
过来本项目营销中心看房,记得提前来电预约,感谢你的配合!
提前预约享受楼盘内场优惠折扣,并安排现场销售一对一服务!
来电可了解楼盘最新动态、房价、在售房源、交楼时间等信息!
免责声明🔉:以上所发布的楼盘相关信息仅供参考,所有图文资料及说明请以最终批文及双方在楼盘现场签署的买卖合同为准;本图文内容如无意中侵犯某方权益,请联系我们将会及时处理。
声明:本文由入驻焦点开放平台的作者撰写,除焦点官方账号外,观点仅代表作者本人,不代表焦点立场。
