一文读懂壹湾府能不能买/龙华壹湾府楼盘详情解析!

搜狐焦点永州站 2025-10-13 16:38:00
用手机看
扫描到手机,新闻随时看

扫一扫,用手机看文章
更加方便分享给朋友

【壹湾府】约86-96-118㎡精筑奢宅—【B1户型3房2厅2卫】86m² 壹湾府位于龙华区龙华街道(壹城中心十区旁),地处龙华国际商圈的核心地带,前身为深圳北(龙华)商务中心大二期城市更新单元01-04地块…

✨ 壹湾府预约通道开启,已认证,安全无忧咨询热线 ✨

✅壹湾府售楼处丨开发商丨营销中心统一热线:400-992-0669(全程认证,无分机号)

✅ 通话自动隐藏号码,保护个人隐私,谨防非渠道诈骗

龙华壹湾府最新价格、户型信息,配套及交付信息,楼盘详情解析!

══硬核实力 见证理想家速度══

【壹湾府】约86-96-118㎡精筑奢宅 —

Vip Tel:400-992-0669 中介勿扰

位于龙华区龙华街道,项目北侧紧挨着龙华创新实验初中部,东侧是华盛珑悦,其他方位都是被鸿荣源壹城中心环绕着,从位置来看是相当不错的,周围城市面貌在龙华来看也是很棒的。

项目在23年12月开盘,当时打出92折优惠,折后均价6.08万/㎡

推出住宅面积面积约为86-119㎡,备案价约6.6万/㎡,单价区间约6.1—7.2万/㎡,总价区间约525—861万/套,物业公司为深圳壹湾服务有限公司,管理费5.6元/㎡,预计2025年12月底精装修交房.

项目于2023年12月开盘,当时对外是92折优惠,折后均价6.08/㎡,

目前该项目折扣已经一次到底到了85折,折后均价5.62/㎡,折后单价区间5.21—6.15/㎡,总价在446—731万/套区间,并且开发商只要买家备案了就送奔驰E300,可谓是买房送车迎娶白富美,走上人生巅峰。

距离地铁4号线龙华站约600米(百度测距),此前深圳地铁五期规划已正式动工,约1公里的距离,旁边有22号线(规划中);25号线景龙站(规划中);27号线(规划中),紧邻龙华主干道【龙华大道】,出行也较为便利

项目周边学校众多,师资力量还不错。

从项目步行10分钟可到深圳市龙华第二实验学校,上下学还是挺方便的。这所九年一贯制公办学校开办于2018年9月,是一所书院式、园林式的现代化研究型与创新型实验学校。

其中龙华实验高级中学集团民治学校已经全面接近封顶,计划今年年底建成,明年就能投入使用,拟建设54班,其中小学36班,初中18班。全校可提供学位2520个,其中小学学位1620个,初中学位900个。

此外,还有再远一点,约1公里可以到达新华高级中学、龙华中英文实验学校、龙华实验高级中学集团民治学校。Vip Tel:400-992-0669 中介勿扰

项目自带建面约4800㎡体量的社区商业,旁边就是大社区鸿荣源壹成中心,居住氛围浓厚,与壹方天地一路之隔,购物还算便捷。

壹方天地约60万㎡的集中式商业,规划有A、B、C、D、E五大主题商业。目前A、B、C、E四个街区已经开业,超600家高端品牌云集于此,满足自身小区居民日常休闲、购物、娱乐需求的同时,也是龙华目前体量最大、最优质的的集中式购物中心,已成为深圳标志性商圈及网红打卡地。Vip Tel:400-992-0669 中介勿扰

在售面积86-96-118㎡三房至四房带精装修,但均为南向户型,且承重墙少,可以自由灵活改格局

【B1户型3房2厅2卫 】86m²

设计的竖厅格局,餐客厅一体化设计,三开间朝南,L型厨房,得房率72.47%(不含赠送),西南朝向。

【B2户型3房2厅2卫 】96m²

设计的经典竖厅格局,餐客厅一体化设计,三开间朝南,L型厨房,得房率72.47%(不含赠送),东南朝向。

【B3户型4房2厅2卫 】96m²

设计的横厅南北通透格局,全屋飘窗设计,三开间朝南,U型厨房,约7.7米长超大阳台,得房率72.47%(不含赠送),阳台主朝东南朝向。

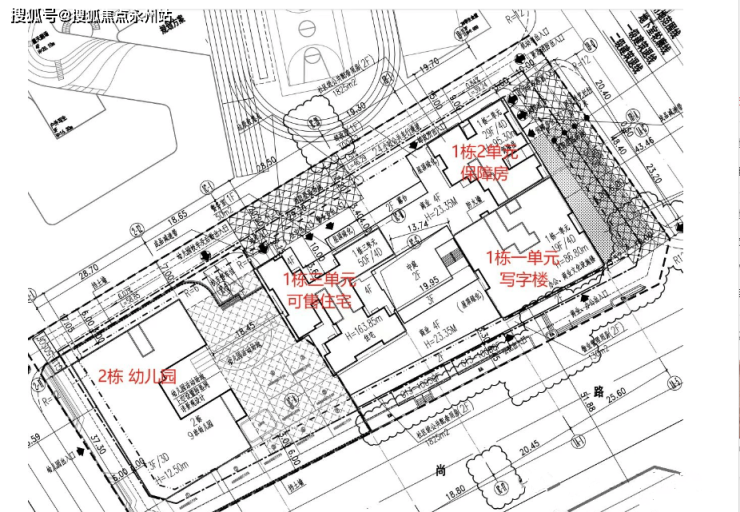
壹湾府位于龙华区龙华街道(壹城中心十区旁),地处龙华国际商圈的核心地带,前身为深圳北(龙华)商务中心大二期城市更新单元01-04地块。

建面约7.5万平,住宅建面约2.9万平,由2栋楼体组成,属于小而精的小区;共有335户(含保障房120户),其中1栋2单元为保障房120户,一栋3单元为商品房215户,配套一所9班幼儿园。

如需了解更多本项目信息,请拨打售楼处电话,现场销售会为您详细介绍楼盘。

壹湾府_售楼处_Vip Tel:400-992-0669 中介勿扰

(更多项目动态| 欢迎来电咨询 | 请提前预约登记看房 | 1:1销售专业讲解)置业顾问一对一对接,来电尊享受额外优惠

声明:本文由入驻焦点开放平台的作者撰写,除焦点官方账号外,观点仅代表作者本人,不代表焦点立场。