深圳华侨城北站壹号—龙华北站壹号楼盘详情,售楼处位置,在售户型及价格
扫描到手机,新闻随时看
扫一扫,用手机看文章
更加方便分享给朋友
项目坐拥深圳北高铁站的便利之外,更有地铁4、5、6号线(即将开通)在此交汇,6号线预计8月开通,站点信息逐步公布,未来将连接光明、宝安、龙华、罗湖、福田等地。环绕五横五纵路网,快速通达全国各地,转瞬之间,尽享现代化的城市生活。
深圳华侨城北站壹号开发商售楼处电话:400-992-0669(中介勿扰)
预约看房,现场销售置业顾问一对一对接,享受额外优惠!
温馨提示:过来看房需提前来电预约销售,感谢您的配合!
华侨城北站壹号鼎立深圳北站高铁超级枢纽,深圳北站是深圳规模最大、设备技术最先进、客流量最大的特大型综合交通枢纽。其中广深港高铁19分钟可至香港、29分钟至广州,一天可达17个城市,尽享半小时湾区生活圈。赣深高铁建设再获突破,羊台山燕尾式三岔隧道1号洞贯通;更有深茂铁路即将开通,未来将串联整个湾区。
华侨城北站壹号,建面约90-160㎡T1行政公寓:华侨城北站壹号,建面约150-370㎡T2总部办公
7-36层,7梯12户,90-110㎡的1-2房
37-41层,7梯8户,150-160㎡的3房
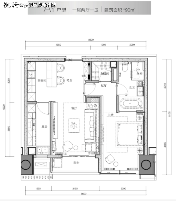
户型图如




项目每个户型不一样,精装修交付,详细联系小丽
【项目基础信息】
【开发商】深圳华侨城置业投资有限公司
【物 业】深圳市华侨城物业服务有限公司
【占地面积】约1.6万㎡
【建筑面积】约16万㎡
【容积率】10
【绿化率】30%
公寓基本信息:
【建筑面积】约4.2万㎡
【层 数】43层
【层 高】约3.2-3.6m
【梯 户 比】7-36楼7梯12户,37-41楼7梯8户
【面 积】约90-160㎡(1-3房奢阔公寓)
【交楼标准】国际一线精装
动静分区,干湿分离、科学动线规划,居住舒适
全房飘窗,通风采光极佳,空间奢阔
景观视野开阔
华侨城北站壹号汇聚缤纷商业,红山6979(年中即将开业)、九方购物中心、水榭春天商业街、玖龙荟中洲黄金台商业中心(规划中)等超50万㎡商圈环绕,吃喝玩乐购一站式集结,打造便捷的生活圈,不用出远门即可享尽城市万象繁华。
项目周边更是串联十大主题公园,玉龙公园、民丰公园、北站中心公园等。北站中心公园是民治街道目前最大的公园,规划空中走廊、云顶书吧等人文景观。
深圳华侨城北站壹号开发商售楼处电话:400-992-0669(中介勿扰)
过来营销中心看房,需要提前来电预约销售,感谢您的配合!
提前预约享受楼盘内场优惠折扣,并安排现场销售一对一服务!
来电可了解楼盘最新动态、房价、在售房源、交楼时间等信息!
免责声明🔉:以上所发布的楼盘相关信息仅供参考,所有图文资料及说明请以最终批文及双方在楼盘现场签署的买卖合同为准;本图文内容如无意中侵犯某方权益,请联系我们将会及时处理
声明:本文由入驻焦点开放平台的作者撰写,除焦点官方账号外,观点仅代表作者本人,不代表焦点立场。
