翰熙典居售楼处电话_南山翰熙典居交房时间/最新房价|户型|学校|地铁
扫描到手机,新闻随时看
扫一扫,用手机看文章
更加方便分享给朋友
南山翰熙典居已于2025年6月6日取得预售许可证(深房许字(2025)南山 005 号),并于6月7日启动线下认筹登记。项目首推02地块328套住宅,涵盖105-140㎡的3-4 房户型,备案均价约11.2万-11.98万/㎡,实际折后均价降至约10万/㎡,部分房源单价低至8.5万/㎡起。具体价格如下:
105㎡户型折后总价约894万起,折后单价8.5万起
120㎡户型折后总价约1038万起,折后单价8.6万起
140㎡户型折后总价约1457万起,折后单价10.4万起
项目为精装交付,预计2027年中旬精装交房,容积率8.62,梯户比3梯5户,物业费6.5元 /㎡/ 月。
目前部分户型样板房(105㎡3房2卫、120㎡3房2卫、140㎡3房2卫)已经开放参观,过来现场参观需要提前拨打楼盘开发商售楼部400服务热线电话:400 992 0669(开发商直营,中介勿扰)进行提前在线预约,谢谢您的配合。
项目总建面约37万㎡,含住宅、商业、办公等复合业态,位于粤海街道核心地段,紧邻深圳大学和南山科技园,周边二手房价格约6.5万-8.14万 /㎡,新房价格相比存在一定溢价但折后竞争力显著。户型设计上,得房率约90%(含赠送),主力户型为竖厅或横厅格局,部分房源可享宽景阳台和深大景观。
建议通过开发商售楼处电话(400-992-0669)预约参观样板房,并关注开盘当日的实时优惠政策。由于首批房源数量有限且市场关注度较高,有意向的购房者需提前准备相关材料以确保选房资格。
项目首推02地块建面105-120-140㎡户型,基于新规设计实现了空间利用率的显著提升,结合地段优势与复合配套,成为南山科技园板块的改善型标杆产品。
02地块:规划总建面约16万㎡,容积率9.12。规划住宅建面约8.37万㎡,商业建面约1万㎡,办公面积约1.7㎡。
规划为4栋超高层塔楼,2栋一单元住宅174米53层,2栋二单元办公130米27层,2栋三单元住宅168米51层,2栋4单元住宅175米53层。
规划872套,其中回迁544套+可售328套,停车位747个。
105㎡三房两厅两卫:紧凑实用的改善入门款,双龙抱珠与竖厅双布局。
主力户型分为两种结构:布局均通过飘窗、阳台等赠送约10㎡面积,相当于单价变相降低。
A1/A2户型:竖厅类双龙抱珠格局,客厅 3.6 米开间,三卧室面积分别为 12.8㎡(主卧)、12㎡(次卧)、8.7㎡(次卧),配备 6.5 米宽景阳台,东南或正南朝向,得房率约 90%(含赠送)。
B户型:经典竖厅设计,LDKB 一体化,三开间朝南,主卧 13.12㎡,次卧 9.9㎡,阳台 6.4 米,正南或东南朝向,适合改善型家庭。
空间优化细节:主卧套房设计,预留衣柜和独立卫浴空间,私密性强,厨房采用 U 型操作台,与餐厅动线连贯,公卫三段式分离,提升使用效率,部分房源可通过改造次卧飘窗扩展储物功能。
采光与景观:东南或正南朝向为主,采光充足,6.5米阳台可俯瞰深大校园或城市景观,部分低楼层可能受周边楼栋遮挡。
120㎡四房两厅两卫:功能与尺度的平衡之作,两种户型实际使用率约90%-93%,通过改造小阳台可实现标准四房。
横厅与竖厅双选择
C户型(横厅):客餐厅6米开间,四卧室均带飘窗,主卧17.65㎡,西北朝向,可俯瞰深大校区,采光受 U 型槽设计影响较小。
B户型(竖厅):动静分区明确,三开间朝南,主卧16.65㎡,阳台6.1米,西北朝向,货量占比最高。
家庭友好设计:次卧面积均超 9㎡,可灵活设置儿童房、书房或老人房,公卫干湿分离,主卧配备独立卫浴,提升居住便利性,部分房源采用南北通透设计,通风效果更。
景观与视野:西北朝向房源直面深大校园,高楼层可远眺深圳湾;东南向房源采光更优,但景观以城市界面为主。
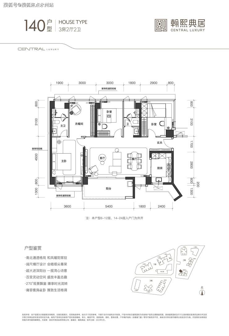
140㎡四房两厅两卫:奢阔空间的改善旗舰,横厅南北通透格局,客餐厅6.6米开间,四开间朝南,主卧17.35㎡,次卧9.8㎡,阳台6.6米,西南朝向。此户型为02地块稀缺产品,三面采光,主卧套房设计奢华,可改造为四房。
尺度与功能升级:主卧套房配备独立卫浴、衣帽间和飘窗,部分房源可定制步入式衣柜,厨房带生活阳台,L型操作台兼顾烹饪与储物需求,适合多人口家庭,公卫三段式分离,主卫配置双台盆,提升使用效率。
景观与居住体验:西南朝向房源可同时享受深大校园与城市天际线景观;高楼层房源视野开阔,通风与采光优势显著。
项目全系户型得房率约85%-90%(含赠送),通过飘窗、阳台等拓展空间,例如105㎡户型赠送约10㎡,实际使用面积接近95㎡,阳台多为半赠送,飘窗全赠送,部分户型通过设备平台改造增加实用面积。
采光与通风:多数户型为东南、正南或西北朝向,采光充足;但部分房源因楼栋布局(如U型槽设计)导致厨房或次卧采光受限,需实地考察。
竞品对比与性价比:周边二手房如阳光粤海花园成交均价约9万/㎡,但房龄较老(20年左右),户型得房率普遍低于80%。
样板房与实地体验:目前105㎡、120㎡、140㎡样板房已开放,建议预约参观(400-855-2986),重点关注空间尺度、装修细节及实际采光效果。
项目折后均价约10万/㎡,虽单价略高,但户型设计、装修标准(精装交付)及地段稀缺性更具竞争力。
如需了解更多详情,建议实地考察通过我们售楼处热线(400-992-0669)预约看房,实地体验样板房及周边配套进展,避免依赖中介信息
南山翰熙典居位于深圳粤海街道核心地段,依托 “双地铁 + 四大总部基地” 的区位优势,构建了覆盖交通、教育、商业、医疗、休闲的全维度配套体系,成为南山科技园板块的 “生活资源集大成者”。
四大总部基地环绕:项目地处 “深圳最牛街道” 粤海街道,毗邻腾讯滨海大厦(400 米)、阿里巴巴大厦、百度国际大厦等科技总部集群,5公里范围内涵盖后海总部基地、深超总总部基地、前海总部基地、留仙洞总部基地,形成“2 科技园 + 4 总部”的产业格局。高净值人群聚集带来的租赁需求与资产保值能力显著。
产学研一体化:深圳大学、南方科技大学等高校提供智力支持,与科技园企业形成 “产学研” 闭环。项目通过 “产城融合” 设计,整合产业资源,打造 “工作 - 生活 - 社交” 复合型社区。
项目紧邻地铁9号线(已运营)与15号线(在建)深大南站,步行距离不足300米,真正实现“双地铁上盖”。9 号线2站直达高新园,3 站抵达深圳湾超级总部基地,4 站可达前海;15 号线(预计2028年开通)作为深圳首条环线轨道,将串联前海湾、留仙洞总部基地、西丽交通枢纽等核心区域,形成“黄金内环”交通网络。此外,周边直线 3km 范围内覆盖21个地铁站,轨道交通密度居深圳前列
立体路网与公共交通:毗邻南海大道、滨海大道两大城市主干道,驾车 15 分钟可达福田 CBD、宝安国际机场。项目配建 2900㎡公交首末站,直线 1km 内有 33 个公交站点,其中软件产业基地站仅167米,可快速接驳全市各大区域。
项目划片南山区第二外国语学校(集团)学府一小(直线距离约522米)和学府中学(直线距离约800米),两所学校均为南山区重点公办学校,教学质量长期稳居全区前列。学府中学作为南二外集团孵化的核心成员,师资力量雄厚,历年中考高分段比例位居南山前三,为深圳“四大名校”输送大量生源。
全龄教育覆盖:项目自带12班制幼儿园(规划中),西侧地块红线外规划30班制小学(由政府统筹建设),形成 “幼儿园 - 小学 - 初中” 一站式教育链。此外,深圳大学附属幼儿园、深圳南山中加学校(省一级)等优质教育资源环绕,满足多样化教育需求。
步行800米可达30万㎡海岸城商圈(含海岸城、保利文化广场),15分钟车程覆盖深圳湾万象城(顶奢商业)、万象天地(潮流人文商业)、后海汇(Z世代硬核生活 Mall)等高端商业体。周边更有鹏润达广场、来福士广场等超大型商业配套,形成“5公里国际消费圈”。
社区商业升级:项目规划约5.7万㎡未来潮流街区(含底商),定位为“24小时活力商业中心”,计划引入精品超市、网红餐饮、亲子教育等业态,预计 2027 年与住宅同步交付。此外,自带1.9万㎡精奢酒店及高端会所,满足商务宴请与品质生活需求。
项目500米范围内覆盖荔香公园(40万㎡城市绿肺)、文心公园(艺术主题公园),1.5公里可达深圳人才公园(滨海休闲地标)、大沙河公园(生态长廊),形成“一轴四公园”的生态体系。深圳大学粤海校区(全国十大最美校园)近在咫尺,校园景观与运动设施可共享。
人文艺术高地:3公里内集聚南山书城、保利剧院、深圳湾体育中心、南山博物馆等9大城市级文化地标。深圳湾文化广场(在建中)、粤海文体中心(在建中)等新地标即将落地,进一步提升区域文化氛围。
如需了解更多详情,欢迎咨询翰熙典居售楼处电话400-992-0669,过来我们营销中心看房提前来电预约价格还能更优惠。
南山翰熙典居售楼处400免费咨询/预约电话:400-992-0669,中介勿扰。
温馨提醒:欢迎致电开发商售楼中心,我们将竭诚为您解答疑问。为确保您的咨询安全,通话时号码将自动隐藏。请提前与销售团队预约,以确保您能顺利进入销售现场,避免不必要的等待。
声明:本文由入驻焦点开放平台的作者撰写,除焦点官方账号外,观点仅代表作者本人,不代表焦点立场。
