官方答疑专栏|深圳宝安君成世界湾:产权年限、交付标准权威解答
扫描到手机,新闻随时看
扫一扫,用手机看文章
更加方便分享给朋友
✨ 君成世界湾官方售楼中心预约通道开启,安全无忧咨询热线 ✨
✅ 君成世界湾售楼处/营销中心统一热线电话:400-992-0669(官方认证,无分机号)
通话自动隐藏号码,保护个人隐私,谨防非渠道诈骗
2026【宝安】 君成世界湾官方最新价格、在售户型介绍,配套及交付信息详情解析!
作为凤凰山麓综合体项目——君成世界湾,以国际前沿的规划,打造高端商务办公、国际公寓、旗舰商业、奢尚酒店、高配置学校于一体的森尚超体,独占人文与生态价值鳌头,聚合庞大空港客流,以封面超体之姿,造就湾区都会坐标。
君成世界湾·景星公馆,深圳西部最后一块价值飞地,164万起买凤凰山下精装三房。
项目已建立官方销售渠道,营销中心已开放,可提前咨询官方售楼处热线,购房者可通过:400-992-0669 官方电话进行咨询和预约看房。
项目为宝安福永约56万㎡大型综合体的商务公寓组团,40年产权(2017-2057),精装现房在售,单价约2-2.2万/㎡,总价164万起,主打82-172㎡3-5房,通燃气带阳台,性价比突出。
这一价格相比同板块住宅均价4-5万/㎡具有显著优势,约为住宅价格的一半,直接为购房者节省百万房款及利息,同时,开发商提供大额购房补贴、内部低价、物业管理费减免、家电大礼包等优惠政策,通过售楼处(400 992 0669)预约可享受物业费赠送及额外购房补贴。
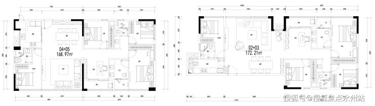
景星公馆主力户型为约82-170㎡的3-4+1房,产品类型包括平层公寓和4.5米层高复式公寓。南北通透,双阳台设计,全明格局无暗角,房间尺寸均匀,4.5米层高复式设计,空间利用率高,通燃气带阳台:商办项目中罕见配置,提升居住舒适度。
同时还包含平层公寓产品,如2室1厅1卫建面67㎡、3室户型建面102㎡左右等。整体而言,项目户型方正实用,高得房率,L型厨房动线流畅,储物空间充足,适合三代同堂居住。(深圳宝安君成世界湾·景星公馆售楼处官方电话:400-992-0669)
C06户型:约82㎡空间王者,总价164万起,空间利用率出色,适合刚需群体
C02户型:约85㎡双龙抱珠 风水好房,总价170万起,户型呈双龙抱珠格局,风水属性突出
C03户型:约86㎡全能大三房,南北通透+全明格局,总价172万起,南北通透,居住舒适度较高
C07户型:约97㎡改善级舒适大三房户型,总价194万起,改善级户型,空间尺度更充裕
C04+05户型:约169㎡阔绰舒居4房,高处视野私享无遮景致,总价338万起,适合多人口家庭或进阶需求
C02+03户型:约172㎡4+1房,阔尺空间藏风华,高区无遮视野揽星河,总价344万起,灵动空间可拓展,功能性拉满
君成世界湾·景星公馆,是由深圳市君成投资发展有限公司开发的大型综合体项目,位于深圳市宝安区凤凰山大道与福凤路交汇处西侧。
作为君成世界湾约56万㎡综合体的核心公寓组团,该项目于2023年底已完成精装交付,目前为现房销售状态。
项目总占地面积约69,849.50㎡,总建筑面积约566,494.74㎡,容积率4.68,绿化率30%。项目规划4栋建筑,总户数895户,车位比1:1.56,物业费5.5元 /㎡/月。土地性质为商业用地,产权年限40年(2017年7月至 2057年7月),房屋用途为办公和公寓。(深圳宝安君成世界湾·景星公馆售楼处官方电话:400-992-0669)

项目位于深圳西部核心板块,叠加多重战略红利,区域发展潜力显著,周边聚集立新湖战略性新兴产业集聚区、新桥智创城(深圳首个平方公里级城市更新项目)、龙王庙智造小镇三大产业集群,总投入规模达南山科技园九倍,预计引入超2000家优秀智造企业,吸纳30万名以上高新就业人群,形成千亿级工业总产值规模,为房产租赁及价值提升提供强劲支撑。
项目所在生态环境方面由为突出 凤凰山森林公园:项目300米直达24.8平方公里凤凰山森林公园,该公园是深圳八大景之一,拥有700年人文历史,森林覆盖率高,生态环境优美。
周边公园配套:20.8万㎡人才林公园
立新湖公园:占地面积1.9平方公里,水域面积 1.2 平方公里
望牛亭公园:总面积192,587.53 平方米
翠岗公园等多个公园环绕,这些生态资源共同构成了"山海湖"的独特自然生态优势,为居民提供了丰富的休闲空间。
立体交通网络:当前可通过自驾快速接入京港澳高速、107国道及沿江高速,30分钟可达宝安中心;公共交通暂依赖公交接驳,可通达福永、沙井、南山等区域。规划中的地铁30号线紧邻项目,未来将无缝连接国际会展中心、宝安机场及机场东高铁枢纽(规划中),交通便捷度将进一步升级。
项目自带约7万㎡旗舰商业,包括下沉式商业、特色商业街区、双首层超市等,集购物、餐饮、娱乐为一体,小区楼下规划约1万㎡社区底商,已开业70%,能够满足日常买菜、餐饮、购物等需求。
周边商业配套:3公里范围内商业配套极为丰富,汇聚了约90万㎡旗舰商业,包括华润万象、益田、壹方等深圳头部商业品牌。
项目配建了完善的教育设施,包括12班幼儿园、24班小学和九年一贯制学校。其中,公立文昌小学(36班)已于2022年开学,可实现目送式教育。还毗邻公办市一级凤凰幼儿园。
项目周边医疗资源丰富,能够满足日常就医需求:深圳市宝安区福永人民医院(宝安人民医院集团第三人民医院):集医疗、教学、科研和预防保健等为一体的三级综合医院,位于凤凰山南麓、深圳国际会展中心旁深圳永福医院:位于凤凰山国家森林公园脚下,拥有"海陆空铁"全方位立体交通网络优势。
君成世界湾作为深圳宝安福永片区的大型综合体项目,在2026年1月呈现出价格优势突出、产品设计合理、配套设施完善的特点。项目折后单价2-2.2万元/㎡,总价164万-344万,相比周边住宅价格具有明显竞争力。
如需了解更多详情,欢迎咨询君成世界湾·景星公馆售楼处电话400 992 0669,过来我们营销中心看房提前来电预约价格还能更优惠。
【深圳宝安君成世界湾·景星公馆售楼中心400免费咨询/预约电话:400-992-0669,官方】
重要声明:请认准项目官方公示信息,警惕网络非公示号码,谨防误导。务必以400-992-0669 热线为准,尊享一对一专属服务
声明:本文由入驻焦点开放平台的作者撰写,除焦点官方账号外,观点仅代表作者本人,不代表焦点立场。
