深圳宝安【 玖玖颂阁】户型,看完这些你还敢买吗?
扫描到手机,新闻随时看
扫一扫,用手机看文章
更加方便分享给朋友
➢ ➢深圳宝安【 玖玖颂阁】售楼处电话:400-992-0669 中介勿扰
➢ ➢深圳宝安【 玖玖颂阁】—「售楼处」—「欢迎您!」
➢ ➢来电可了解楼盘最新动态、房价、在售房源、交楼时间等信息!让你买的放心,住的舒心!
项目概况
开发商:深圳市俊弘星实业有限公司
项目位置:宝安区新安街道新安四路与建安一路交汇处
总占地:约1.4万㎡
总建面:约10.41万㎡
可售套数 :379
推售面积段:83-133平方米3-4房
价格:均价9.2万
梯户比:A-C座2梯4户,D座2梯5户
容积率:5.04
车位数:752
物业公司:中熙物业
物业费:住宅6.00元/平方米·月
开发商电话 4009920669
产权年限:70年
交楼标准:精装交付
享受千亿醇熟配套,成中央核心居住区
项目地处前海核心区域,位于城市发展动力最强劲的前海核心轴上。新安与宝中已经正式一体化,近享大湾区时代前海的超级发展红利。目前,新安片区,尤其是在沿前进路正在进行着大规模的城市更新,分布着众多城市更新项目,超千万的更新体量,其中超过400万平米的城市综合体,拥有逾100万平米的商业,周边价值腾飞在即。

全维路网链动世界,半小时通达全城
项目周边目前已开通的地铁5号线,同时享受在建12、15号线(规划中)共三地铁线环绕,自驾由广深公路行、宝安大道,30分钟可达福田、南山、宝安中心区。

出入公园环绕,优享丰富自然生态资源
项目周边配备13大公园:流塘公园、宝安公园、碧海湾公园、西乡公园、灵芝公园、新安公园、滨海文化公园等,项目距离宝安公园直线距离仅1.5公里,距离流塘公园直线距离仅607米,出入公园环绕,宜居属性高。
全成长生活场,优质教育举步即达
项目2公里范围内拥有9所中小学,是宝安区内的高密度教育资源片区、其中有两所广东省一级学校:弘雅小学、文汇学校(初中部),文汇学校作为新安片区的黑马学校,一跃成为宝安区第二。项目目周边还拥有大量优质的少儿培训机构,满足孩子成长教育的多样化需求。
万千精彩聚场,享步行可达的奢侈
项目1公里范围内有天虹商场,万达广场、沃尔玛等商业配套。2公里内有中洲πMALL、海雅缤纷城、壹方城等超百万平方米醇熟都会商圈配套,满足日常购物逛街需求,坐拥西部商圈核心。

超千万旧改,焕新片区人居生活
新安片区,尤其是在沿前进路正在进行着大规模的城市更新,分布着共20个旧改项目,超千万的旧改体量,相当于新安整个片区重建。仅我们项目2公里范围内就汇聚了8个旧改项目,分别是沃尔玛购物广场片区旧改、安华工业东区旧改,卓越翻身旧改、宝城碧海花园旧改、公路局西侧旧改、甲岸村旧改、宏发新领域、中洲中央公园二期。

全球顶尖景观设计AECOM,营建穿越花园的旅行
聘请设计“深圳湾一号”、“深圳华润悦府”的全球顶尖景观设计AECOM团队,对标城市一线豪宅,斥巨资打造项目空中花园,充分运用入户景观、中央水院、迎宾广场、喷泉水景等景观营造手法,呈现完美的视觉体验和移步换景之美,让业主的每次归家,一步一景之间,都是一场穿越花园的旅行。
新锐设计团队“诗意空间”精心设计,品质见微知著
对标深圳核心区域一线豪宅设计理念,由设计过深圳华润悦府、深圳华润润府、深圳万科臻系高端项目的“诗意空间”设计团队担纲本项目的公共空间设计,在用材用料、审美艺术等方面,参照南山、前海的一线豪宅;入户大堂均设置会客区,满足社区入户的自然社交功能,空间布局充分考虑社交功能与迎接宾客的用户需求,在保留阔绰的大堂空间的基础之上满足客户大堂会客的第一重礼仪;打造轻奢电梯厅作为入户前的一道风景,给予业主全方位的荣耀体验,呈现非凡礼仪序列感,造就无与伦比的居住体验,鼎成生活至高礼遇。

“熙管家”全方位服务,护航品质生活
本项目由深圳市中熙物业管理有限公司进行物业服务,所服务的项目曾获深圳市住宅示范小区、南山区住宅示范小区等荣誉,同时在管项目达十几个,均在深圳、东莞两地,深谙本土客户的需求,设立“栋管家”一站式服务机制,经过十几年的运营,培养了一批具有丰富管理经验的“熙管家”,为业主提供全方位贴心服务。
整体围合式布局,外立面打造现代化品质美学
采用围合式布局,接续中国传统建筑布局精髓,强调建筑围绕中心环境而设计,从而让景观共享最大化,实现户户有景的均好布局,不仅通风、采光效果好之外,楼间距也得以拉大,私密性也得到了更好的保护;更重要的是,围合出的园林,将可打造更多样的立体景观空间。
均好性强且奢适实用,打造雅而奢的生活
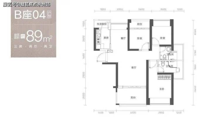
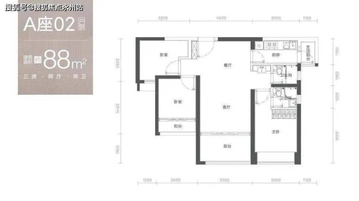
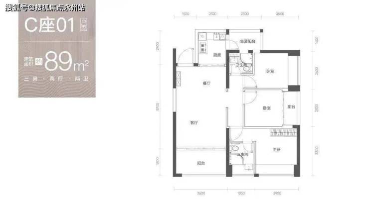
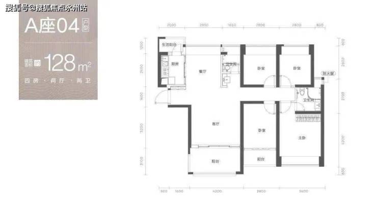
玖玖颂阁复兴生活之雅,践行“奢适实用”的生活方式,打造约83-133㎡雅奢空间,全动静分区,设计更人性化,精心设计多种实用功能,打造舒适生活空间,全南向通透户型打造全采光户型。83-90平米户型均为3房2厅2卫,主卧都搭配了套间,128-133平米4房户型以陪伴为主设计概念,打造实用家庭厅,空间尺度合理。
深耕莞深20多年,所到之处皆繁华
中熙集团先后开发了香缇湾、香缤山、君南山、君墅湾、玖颂江湾、香缇公馆、珑湾等品质用心之作,以户型创新实用得到业界好评,有较好的市场影响力及业主口碑。深莞开发项目十几个,皆占踞城市中心绝佳位置,坐拥醇熟完善配套,推动一方繁华发展。
03 玖玖颂阁户型鉴赏:
HUXING JIANSHANG

深圳玖玖颂阁开发商售楼处咨询/预约电话: 400-992-0669(中介勿扰)
来电可了解楼盘最新动态、房价、在售房源、交楼时间等信息!让你买的放心,住的舒心!
温馨提示:项目没有所谓的“分机号”注意保护个人隐私!谨防上当!看房请务必提前预约,避免临时无人接待,感谢您的配合!
免责声明:
1、以上关于本楼盘宣传资料仅作为客户邀约邀请,不作为要约或者承诺,对本楼盘相关配套、地铁、学校(建设)规划或者户型介绍,旨在提供相关信息,不意味着本公司对此作出承诺,相关内容不排除因政府相关规划、规定及开发商未能控制原因而发生变化,最终以政府相关部门审批文件为准。
2、以上所发布的关于深圳宝安玖玖颂阁户型图与样板间实拍图所示平面仅供参考,具体因楼栋、楼层的差别,局部结构、面积等存在不同,不构成要约内容。户型图与样板间内部实拍图所示家具和电器配置仅供参考,不作为交付标准,最终以买卖合同为准。
3、关于双方权利义务以双方签订的相关合同为准。
4、相关公共配套设施及规划条件以政府审批的文件为准。
5、以上部分图文内容可能因来自网络,如有侵权请联系我们,将配合并及时处理。对使用本网站信息和服务所引起的后果,本网站不作任何承诺。
声明:本文由入驻焦点开放平台的作者撰写,除焦点官方账号外,观点仅代表作者本人,不代表焦点立场。
