凤鸣水岸(凤鸣水岸)首页网站丨凤鸣水岸欢迎您_房价_户型_楼盘详情
扫描到手机,新闻随时看
扫一扫,用手机看文章
更加方便分享给朋友
如果看完以上关于我们宝安凤鸣水岸项目的介绍后,您还对如下问题想要深入了解的话:
问题如:最新推出的房源备案价格,小区在售的有多少栋楼,各个楼栋户型具体是什么朝向,每一层楼规划的是几梯几户,这一期卖的房小区里面有多少户,容积率多少,楼栋总共多少层,现在卖的户型具体交楼时间,这几种户型剩下的还有那些,小区门口离地铁近吗,该社区是怎么划分学校的,可以申请哪些小学和初中,交房后物业费怎么收?物业管理费每平米每月多少元,交房是精装修还是毛坯,停车位够吗?停车位有多少个?,小区周边未来有什么规划,楼盘展厅、营销中心在哪里?具体什么时候开盘?开盘多少钱一平米,周边配套,楼盘详情,值得买吗,潜力升值如何,升值空间大不大,营销中心地址怎么导航,坐地铁到哪个站下车过来楼盘比较近,周边近期有什么规划,周边商业配套怎么样,拿地批地时间,这几天楼盘现场最新优惠活动情况等。
建议您可以拨打我们楼盘内场400免费咨询电话与售楼处现场销售直接了解。
宝安【中化凤鸣水岸】凤鸣水岸开发商售楼处电话:400-992-0669(中介勿扰)
来电可了解楼盘最新动态、房价、在售房源、交楼时间等信息!让你买的放心,住的舒心!
宝安尖岗山·中化凤鸣水岸开发商售楼处直销_欢迎来电预约享受内部折扣_恭迎品鉴
◆提前来电-预约登记尊享售楼处销售专业讲解〢一对一热情服务〢◆
宝安尖岗山·中化凤鸣水岸本次推售372套住宅,面积段75平3房一卫,95平3房2卫,120平4房,
项目由世界500强央企中化集团注资,本次毛坯发售均价83200元/m2
2022年4月29号深圳土拍,万科+深圳安居集团以70亿拿下尖岗山A012-0112宗地,毛坯限价87494元/m2,目前已有4100元/一平的价差

关于中化集团
央企中化资本深度参与项目合作,为深圳凤鸣水岸项目提供资金支持,力保项目能够更高效、更高品质进行运营。
在去年底项目正式举办的“携手央企共创佳话”央企品牌暨产品发布会上,中化资本副总裁-张亚蔚女士出席并解读了此次合作,看重凤鸣水岸项目处于深圳前海核芯,坐享深圳市五大低密宜居区域之一的优质生态资源,更是深圳市产城融合的典型范例。
此次合作,不仅将有力支持地产行业深化改革、健康发展,更是用实际行动积极响应国家“保交楼、保民生、保稳定”政策号召,充分展现央企责任与担当。

中化资本是国务院国资委直管大型央企集团——世界500强中国中化。目前,中化资本已向项目委派法定代表人、董事,深度参与项目经营管理,依托其强大的央企资源及高质量的管理能力,为项目高效稳定运营保驾护航,充分体现的央企责任与担当,并为深圳的居民及高尖人才提供高品质居住环境,缓解居住空间,助推人才安居事业发展。
中国中化由国资委直管的国有重要骨干企业,业务范围覆盖生命科学、材料科学、石油化工、环境科学、橡胶轮胎、机械装备、城市运营、产业金融等八大领域,是全球规模最大的综合性化工企业。作为最早入围《财富》全球500强榜单的中国企业之一,迄今已29次上榜,并连续两年被《财富》评为“全球最受赞赏公司”。

图片来源:中化集团
凤鸣水岸花园

尖岗山位于宝安核心片区,也是深圳少有一开始就定位为高端豪宅区的地方,政府也坚定这一原则,从2015年开始,尖岗山聚集了招华曦城、中海九号公馆、新世界名镌等项目,这里的别墅总计超过千套,是深圳第一大别墅,因此,吸引了不少企业主和富豪在这里居住,形成深圳顶级的“富豪生活圈”。最关键的是,有利于事业成长。因为这里居住的人都是各方企业大佬,都有房子在这里作为信任的基础,有时洽谈商务合作,就是邻里间一次简单串门,就达成了合作。圈层的特殊性+生态低迷也让尖岗山成为被世界美国顶级奢侈品权威杂志《RobbReport》评选为世界十大豪宅区之一;

生活是房子最大的价值:城市中心独一无二的山水资源,注定了奢贵,不仅拥有了俯瞰世界的视野,还是一种自然、安静、健康的豪居生活。对于这样依山傍水的豪宅区而言,不可复制的山水资源,成就无可比拟的豪宅价值,注定了是精英享有的生活特权。半山之上的人居高地,既拥有登临仰望的开阔与畅达,又具有离尘俯瞰的居高意境:把城市财富流动脉络,大前海尽收眼底。
更为关键的是,坐拥623公顷山水资源,体量相当于5个莲花山和300个香蜜湖叠加,超76%森林覆盖率,绿林环抱,碧水为邻,是深圳繁华中难得的低密人居。每一口深呼吸,整个身心都会尘埃涤荡、生机焕发。

基础信息
项目地址:深圳·前海·尖岗山
导航地址(尖岗山大道与卧龙四路交汇处)
开发商:深圳市金桂商务信息有限公司
注册名:凤鸣水岸花园
占地面积:约 2.1 万㎡
建筑面积:约 6.7 万㎡
容积率:3.2
绿化率:40%
产品信息:建面约 75-95-120 ㎡ 3-4 房
梯户比:1 栋 2 栋 2 梯 6 户,3,4 栋 2 梯 7 户(人才房)
开发商售楼处:400-811-3080
总层高:1,2 栋 32 层,3,4 栋 30 层
产权年限:(70 年)(2021 年-2091 年)
规划户数:住宅 778 户,商业 14 套
车位:共 750 个,其中充电桩车位 225 个

凤鸣水岸花园户型图
75㎡三房两厅一卫
户型方正,3个卧室紧凑实用,阳台和厨房的空间较为富余舒适,满足刚需家庭的居住需求,也是尖岗山片区继万科都会四季70平3房户型之后,入主豪宅区的最低准入门槛。

120㎡四房两厅两卫
A户型则横厅布局增加了实用性,双厅出景观大阳台,可以享受到最极致的景观面,全明户型,通风采光俱佳,每个房间空间都很舒适,满足三代同堂的居住需求,主卧还带有衣帽间设计,具有更好的储存和收纳空间。

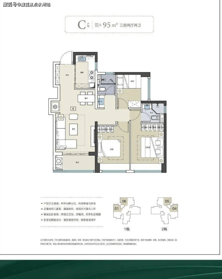
▲95㎡三房两厅两卫
该面积段一共有C和D两个户型,其中C户型为B户型的放大版,多出了一个卫生间,其他功能区相对更加宽敞;D户型在设计上更优,双厅更加通透,厨房和餐厅空间更加宽敞舒适,主卧更是双面采光,市场少有,堪称惊艳。

▲120㎡四房两厅两卫
户型则横厅布局增加了实用性,双厅出景观大阳台,可以享受到最极致的景观面,全明户型,通风采光俱佳,每个房间空间都很舒适,满足三代同堂的居住需求,主卧还带有衣帽间设计,具有更好的储存和收纳空间。

交通配套
【交通跃级,近享规划中地铁 9 号线】
毗邻地铁 5 号线【兴东站】,4 站直达宝安中心,6 站直达深圳北站,7 站直达前海湾,可
便捷换乘 1/11/13 号线,近享 9 号线(西延线二期规划中),可快速通达深圳各中心
主干道京港澳高速、107 国道、南光高速,直线距离约 10KM 内可达宝安国际机场、蛇口港码头、深圳湾口岸,便捷全球

同时据据宝安规划资源局负责人透露,未来尖岗山可能将开设一条深圳豪宅专线——9号线延长线(研究规划中),将联通尖岗山。目前已经着手研究将9号线延长,从前海引过来,经过尖岗山居住区。届时,与后海、深圳湾、福田中心区等这样20-30万+高价豪宅区共享城市配套资源;
商业配套
【精粹汇聚,瞬息直抵繁华生活场】
商业:曦城 VIVITOWN 山地风情商业街、中洲πMall、海雅缤纷城、壹方城、万象天地
文娱:宝安滨海文化公园、宝安体育场、青少年宫、演艺中心

教育配套
深圳“大学区”政策出台,片区生源多为引进人才及高净值人群后代,更加优质、纯粹,营造更好教育环境的同时,也为孩子组建一个高端、优质的社交圈层。
项目楼下就是南方科技大学附属宝安学校,去到学校的距离可以准确的用步来测量,
家门口的学校和幼儿园未来无需为接送小孩上下学所烦恼
了解学校师资力量请点击:今秋九月 与你初见丨南方科技大学附属中学宝安学校招生啦!

南方科技大学效果图今年9月份开学
双一流名校背书,超强背景
南科大附中宝安学校占地面积16301.30平方米,建筑面积31000㎡。办学规模为42个教学班,提供2100个优质学位 。学校拥有宝安区人民政府、宝安区教育局以及南方科技大学和南方科技大学附属中学等多重支持,办学实力与背景强大,注定出场即惊艳。
充分依托国家“双一流”高校南方科技大学和南方科技大学附属中学雄厚的教育资源与优质教育品牌,引入先进的教学理念,走科技创新教育之路。而南科大在今年的QS世界排名中更是超过中山大学飙升至广东第1。
未来名校 来势汹汹
2020年秋,南科大附中招收首批荣誉学生700名,当年中考录取分数线创下深圳市近年来新办高中学校最高录取分数线的纪录,创校当年即跻身深圳市公办高中前列。
2022年2022年7月26日,深圳市2022年中考录取分数线公布。南方科技大学附属中学录取分数线为AC类558分,位列深圳市第11名;D类554分,位列深圳市第10名。超过部分四大八大老牌名校,跻身深圳一线名校行列。

【墅级社区营造,典雅东方园林】
仅 300 余至臻席位,匠造典雅外立面、美学入户大堂,超宽楼间距无遮挡
社区三级台地布局,三重酒店式归家体验,每一步都是身份的彰显
独具东方意境的典藏级园林,植入新美学概念,山水营园,让社区“处处皆画”?
『270°阔景视野,品味时代奢藏』
270°环幕视野设计,近揽无遮挡雍翠山景
约 13.4 米南向面宽,约 6.8 米阔景阳台,以奢级尺度致敬塔尖向往?
『人性化定制空间,雕琢生活纯粹品质』
户型方正舒适,动静分区,悦享静谧与舒适
阔绰景观阳台、客餐厨一体化、卧室全飘窗,延展生活的无限想象。
宝安【凤鸣水岸花园】凤鸣水岸花园开发商售楼处电话:400-992-0669(中介勿扰)
来电可了解楼盘最新动态、房价、在售房源、交楼时间等信息!让你买的放心,住的舒心!
凤鸣水岸花园开发商售楼处直销_欢迎来电预约享受内部折扣_恭迎品鉴
◆提前来电-预约登记尊享售楼处销售专业讲解〢一对一热情服务〢◆
凤鸣水岸花园开发商售楼中心〢预约可享内部优惠〢匠心钜制-恭迎品鉴〢
温馨提示:项目没有所谓的“分机号”注意保护个人隐私!谨防上当!看房请务必提前预约,避免临时无人接待,感谢您的配合!
免责声明🔉:
以上所发布的关于深圳凤鸣水岸花园楼盘相关图文信息仅供您买房前参考,以上所有关于本楼盘的图文资料及说明请以最终官方批文及双方在楼盘营销中心现场签署的买卖最终合同为准;本图文内容如无意中侵犯到某方权益,请联系我们将会及时处理。
声明:本文由入驻焦点开放平台的作者撰写,除焦点官方账号外,观点仅代表作者本人,不代表焦点立场。
