一文读懂深圳南山深业世纪山谷能不能买?深入解析深业世纪山谷优缺点!
扫描到手机,新闻随时看
扫一扫,用手机看文章
更加方便分享给朋友
南山华侨城 | 《深业世纪山谷》住宅大平层终于来了!无敌高尔夫景观!240-380㎡顶豪入市!348套!豪无人性8梯三户!在2026年下半年带高品质精装交房。
「深业世纪山谷」位于南山区沙河街道沙河东路与新塘街交汇处东南侧,地处华侨城核心板块,西有深圳湾高新区总部基地、后海总部基地,南接深圳湾超级总部基地,三大超级总部环绕。
大沙河科创长廊,汇集全深圳2/3的高端研发人才、40%高新技术企业及60%的重点实验室和工程技术中心。
周边约550万㎡“航母级“白石洲旧改,规划400m国际超甲级写字楼群、星级酒店群及40万㎡城市旗舰商业圈,提供立体交通系统、幼儿园及九年一贯制学校配套。(深圳南山深业世纪山谷售楼处电话:400-992-0669)
南山华侨城,深业世纪山谷2期,推出3栋A/B座,共348套房源,面积有233㎡的3+1房,280-386㎡的4+1房户型,计划在2026年下半年带高品质精装交房。
项目是做的纯大户型楼盘,仅占全市供应量的0.28%,可谓一席难求,全部拥有中央公园一线景观,还做到了8梯3户,双梯入户,层高3.5米的标准。
如需了解更多详情,欢迎咨询深业世纪山谷售楼处咨询/预约电话:400-992-0669 中介请勿扰,过来我们营销中心看房务必记得提前来电预约,预约看房的话最终的价格还能更加优惠。
233㎡的3房2厅2卫+家政套间,仅3栋A/B座A户型,双梯入户,设计的是横厅格局,客餐厅7.9米开间,动静分区,主卧大套间约24㎡,大次卧约19㎡,小次卧约14.82㎡,另外还有独立保姆套房,一字型厨房,得房率约78-82%(包含赠送),约11.4㎡观景大阳台,西北朝向,看高尔夫景观
280㎡的4房2厅3卫+家政套间,仅3栋A/B座B户型,双梯入户,设计的是横厅格局,客餐厅8.5米开间,主卧大套间约25㎡,大次卧套间约19㎡(不含卫生间),小次卧约11㎡/8.7㎡,另外还有保姆套房,L型厨房,得房率约78-82%(包含赠送),约9.66㎡观景大阳台,西南朝向,看高尔夫景观。
386㎡的4房2厅3卫+家政套间,仅3栋A/B座C户型,双梯入户,设计的是竖厅格局,客厅5.8米开间,LDKB一体化设计,双阳台,主卧大套间约31㎡,次卧套间约15.5㎡(不含卫生间),次卧约17.81㎡/12.96㎡/7.36㎡,另外还有保姆套房,L型厨房,得房率约78-82%(包含赠送),约12.76㎡观景大阳台,正西朝向,看高尔夫景观。
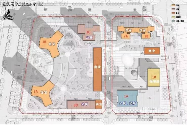
深业世纪山谷,由深业集团打造,总占地面积约4.21万㎡,总建筑面积约38.92万㎡,计容建筑面积约28.2万㎡,容积率6.04,绿化率35%,共分一二期开发。
深业世纪山谷一期,总建筑面积约22万㎡,计容建筑面积约11.32万㎡,共由3栋28-42层建筑组成,其中1栋公寓+酒店42层,1栋B座保障房28层,2栋A座/2栋B座住宅41层。
总规划532户,其中商品房292套,保障房240套,另外还有商务公寓412套,酒店266套,全部加在一起有1210套,地下室有3层,规划停车位1943个。
深业世纪山谷二期,总建筑面积约16.92万㎡,计容建筑面积约16.87万㎡,3栋A座/3栋B座住宅69层,3栋C座公寓50层,3栋D座公寓4层,其中住宅是独立小区管理,总规划348户,车位配比是给到了1:2。(深圳南山深业世纪山谷售楼处电话:400-992-0669)
项目携手华阳国际、CCD香港郑中、杜康生等世界知名设计团队倾力打造,汇聚国际大师眼光,融合全球超前理念,定标独属于世家的美学格调。
一步一芳华,8重大堂缔造隐秘归家仪式,奢阔门庭,迎接优雅而归,营造城市舒适悠境,大隐于显,演绎全城仰望。
约2400㎡主入口环岛花园,将质感与品味相融,构建显赫归家前场,打开深湾峯境生活的美学之屿。
首层户户专用候梯厅,臻选进口高端石材,艺术玻璃,复古金属铜等高端材质,标准层私家电梯厅,8梯3户,双梯入户,日立电梯,高效便捷出行。
想了解更多我们项目近期动态、剩余楼层、底价信息与保留房源,请认准我们售楼处电话/预约热线:400-992-0669 中介勿扰
开发商:深圳沙河世纪山谷(深圳)投资有限公司
物业公司:深圳深业物业集团有限公司
物业管理费:9.9元/㎡ 售楼热线:400-992-0669
总占地面积:约4.21万㎡ 总建筑面积:约万㎡
容积率:6.04 绿化率:35% 车位占比:1:2
产权年限:2019.11-2089.11年(70年)
总户数:二期348户 层高:3.5米
总栋数及楼高:二期住宅,共2栋,69层。
梯户比:8梯3户 停车位:2135个
交房时间:2026年下半年 交付标准:高标准精装修
『深业世纪山谷』周边配套信息
交通方面:深业世纪山谷家门口有在建设中的29号地铁线“白石洲站”,已经开通的1号地铁线“白石洲站”距离约600米,1站到高新园,3站到红树湾,4站到科苑,5站到后海。
另外自驾10分钟内可达深圳湾总部基地,南山高新园,20分钟内可到后海总部基地。
商业方面:深业世纪山谷周边商业丰富,距离约1.2公里内有益田假日广场,深圳万象天地,约1.5公里有京基百纳广场,约5公里还有深圳海岸城,深圳湾万象城等集中高端购物中心。
学校方面:根据2024年南山区教育局的最新学区划分,深业世纪山谷小学学区划分在南山外国语集团沙河小学,初中学区划分在南山外国语学校集团第二实验学校初中部。另外还有1所九年制的南山外国语学校集团沙河学校待建。
「深业世纪山谷2期」主体已经全部封顶,并且门窗框架跟玻璃都已经基本做好,整体的建设进度还是比较快的。
南山华侨城是深圳老牌豪宅区域,地理位置优越,不管去深圳湾总部基地,后海总部基地,高新园都很方便。
项目定位是高端住宅小区,全部都是奢阔大户型,哪怕在南山这种地段目前也仅有中海深湾玖序可以媲美,起步都是2000多万的房子,圈层不一样,深业世纪山谷2期整体的居住人群比较纯粹,3A/3B栋都是商品房,独立小区管理,深业金钥匙服务,有独立金牌管家。
深业世纪山谷官方最新介绍:备案价、折扣、学区、地铁、交通、户型图、特价房、优缺点、得房率、优惠活动、小区图片、开盘时间、交房时间、周边配套、最新详情等咨询。
深圳深业世纪山谷售楼处电话: 400-992-0669 预约来访下定当天更享折上折!!
(售楼中心 | 欢迎来电咨询 | 请提前预约登记看房 | 1:1销售专业讲解)
南山深业世纪山谷售楼中心热线: 400-992-0669(售楼处)【VIP贵宾专线
本广告仅为邀约邀请,图片及文字等仅供参考,项目周边配套、市政设施等最终以政府部门规划建设为准;买卖双方的权力与义务以最终签署的《商品房买卖合同》及补充协议约定为准
声明:本文由入驻焦点开放平台的作者撰写,除焦点官方账号外,观点仅代表作者本人,不代表焦点立场。
