深圳鸿荣源壹成中心_鸿荣源壹成中心(欢迎您)*楼盘介绍*价格/户型/楼盘电话
扫描到手机,新闻随时看
扫一扫,用手机看文章
更加方便分享给朋友
深圳龙华【鸿荣源壹城中心】— 售楼处—欢迎您!!
鸿荣源壹成中心·十区售楼处电话:400-992-0669 中介勿扰
温馨提示:来电可了解楼盘最新动态、房价、在售房源、交楼时间等信息!让你买的放心,住的舒心!

龙华壹成中心,总占地约41万平米,总建面达320万平米,是深圳规模最大的住宅社区之一!

目前最近的地铁站是4号线龙华站,未来周边还规划了3条地铁线以及多个地铁站

其中:龙华壹城中心它分为11个区域建设
1区 为6栋保障房,下方是商业壹方天地E区(包含山姆会员店)
2区 为3栋住宅+1栋写字楼,下方是商业壹方天地D区
3区 为6栋住宅+1栋写字楼,下方是商业壹方天地C区
5区 为4栋住宅+1所幼儿园
6区 为8栋住宅
7区 为6栋住宅+2所幼儿园
8区 为4栋住宅+2栋写字楼
9区 为9栋住宅+1栋写字楼
11区 为7栋住宅
12区 为龙华第二实验学校
各区住宅开售及商业开业时间
9区:住宅于2015年11月开盘
5区:住宅于2016年6月开盘
6区:住宅于2016年8月开盘
7区:住宅于2017年8月开盘
8区:住宅于2018年12月开盘
3区:住宅于2019年7月开盘
11区:住宅于2020年7月开盘
2区:住宅于2021年4月开盘

龙华壹方天地商业,总面积达60万㎡,分为5个区域,每个区域之间有空中连廊相连

壹方天地E区 2017年11月开业

壹方天地A区 2018年9月开业

壹方天B区 2019年7月开业

壹方天C区 总建面达25万㎡,是5区中最大的,2021年10月开业

壹方天D区 还在施工中
10区,是整个大工程的最后一个项目

它的备案名叫做 壹城时尚花园
壹城时尚花园是该项目第9个开盘的住宅小区

在此之前的8期住宅都是瓷砖的外立面,终于在最后一期,换上了最流行、最时尚的铝板外立面;而且还带装修(之前的都不带装修)
不仅如此,本项目也是户型面积最小的一区,全部在100㎡以内
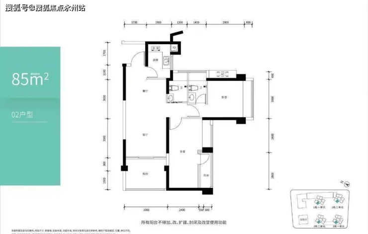
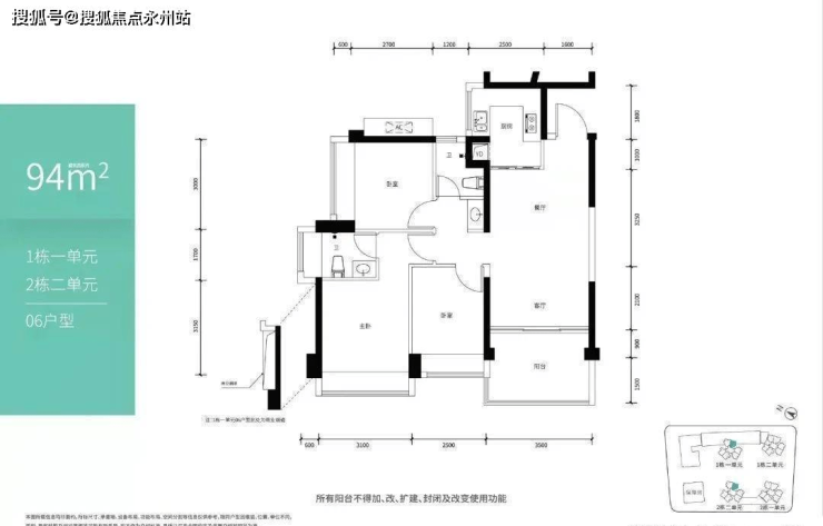
鸿荣源壹城中心户型分布平面图

鸿荣源壹城中心户型图
该户型西南向
单价区间:69860.52-73560.52元/㎡
总价区间:588-625万

该户型正南向
单价区间:71650.51-76700.52元/㎡
总价区间:663-712万

该户型正南向
单价区间:69710.51-73100.52元/㎡
总价区间:652-679万

该户型西北向
单价区间:65320.51-71600.51元/㎡
总价区间:547-603万

该户型正南向
单价区间:70960.51-76000.52元/㎡
总价区间:656-705万

该户型东北向
单价区间:67160.51-70760.52元/㎡
总价区间:628-678万

有孩子需要上学的话,这里非常方便,东边的幼儿园和小学已经建好。

南边的初中和另外一所幼儿园正在施工!

龙华实验学校附属幼儿园

龙华实验学校小学部
龙华创新实验学校初中部效果图

该初中投资约2.3亿元
建设24班
提供1200个初中学位




深圳龙华-龙华人民路-工业路-梅龙路-东环一路-建设路围合而成—鸿荣源壹城中心【售楼处】
龙华【鸿荣源壹城中心】鸿荣源壹城中心开发商售楼处电话:400-992-0669(中介勿扰)
来电可了解楼盘最新动态、房价、在售房源、交楼时间等信息!让你买的放心,住的舒心!
鸿荣源壹城中心开发商售楼处直销_欢迎来电预约享受内部折扣_恭迎品鉴
◆提前来电-预约登记尊享售楼处销售专业讲解〢一对一热情服务〢◆
鸿荣源壹城中心开发商售楼中心〢预约可享内部优惠〢匠心钜制-恭迎品鉴〢
温馨提示:项目没有所谓的“分机号”注意保护个人隐私!谨防上当!看房请务必提前预约,避免临时无人接待,感谢您的配合!
免责声明🔉:以上信息仅供参考,所有图文资料及说明请以政府最终批文及双方现场签署的买卖合同为准;本图文内容如无意中侵犯某方权益,请联系我们将第一时间处理。
声明:本文由入驻焦点开放平台的作者撰写,除焦点官方账号外,观点仅代表作者本人,不代表焦点立场。
