2026宝安刚需狂喜|官方通知|会展湾中港广场生活配套详情,地铁+教育一站式配齐!
扫描到手机,新闻随时看
扫一扫,用手机看文章
更加方便分享给朋友
宝安【 会展湾中港广场】售楼处24小时电话:400 992 0669(官方电话)现场详细解答丨项目介绍丨户型图丨在售房源丨特价房丨学校丨交通位置丨样板房丨小区图片丨交房时间丨周边配套丨
会展湾中港广场|官方售楼处热线:400-992-0669,无分机号,中介勿扰。
会展湾中港广场——作为深圳西部会展新城的核心商务综合体,是由招商蛇口与华侨城两大央企联合开发的重点项目,目前为现楼发售状态,提供可售型写字楼产品。

项目核心亮点速览
在售核心:红本现楼在售(无需等待交付,即买即用/即办产权),甲级写字楼主力面积103-565㎡(中小企业适配),整层1042-2892㎡(大中型企业/投资客适配),可自由分割组合,灵活度拉满。
价格优势:单价1.5万/㎡起(区域同类写字楼底价),整层购买可享5%-8%额外优惠,首付5成即可入手,支持个人/公司名义购买,可抵税,性价比突出。
地段交通:会展新城核心区,紧邻全球最大会展中心——深圳国际会展中心,双地铁12/20号线国展北站无缝接驳项目地下层,10分钟直达宝安国际机场,自驾快速连通广深、沿江高速,商务通勤高效便捷。
品质保障:招商蛇口+华侨城两大央企联合开发,甲级写字楼标准配置,4.2米标准层高(优于区域同类3.8米常规标准),9.6米挑空大堂,玻璃幕墙设计,硬件设施齐全,企业形象拉满。
产权年限:40年商业产权(2016-2056年),剩余产权充足,无产权纠纷隐患。
会展湾中港广场(又称会展湾内地与香港广场)项目辨识度高,会展新城核心地标之一,项目由两大央企联合打造,资金实力雄厚,工程质量、交付保障足。
项目地址:深圳市宝安区福海街道和平社区展景路83号,位于会展新城核心,紧邻深圳国际会展中心,产业氛围浓厚。
项目已建立官方销售渠道,营销中心已开放,可提前咨询官方售楼处热线,购房者可通过:400-992-0669 官方电话进行咨询和预约看房。

楼栋分布与产品形态
目写字楼分为A座、B座、T2栋三大楼栋,产品覆盖小、中、大不同面积段,可满足中小企业办公、大中型企业总部、投资者持有等多种需求
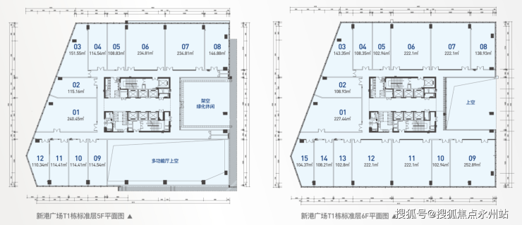
A座:定位中大型企业总部,共17层,建筑高度83米,总建筑面积37121㎡,单层面积2348-2909㎡,支持散售、整层出售两种模式,主力户型145-530㎡,地下2层、地上17层,楼栋位置优越,视野开阔,适合注重企业形象的大中型企业入驻。
B座:定位中小企业办公,共18层,建筑高度84米,总建筑面积42735㎡,单层面积约2650㎡,目前以半层起售为主,优先支持整层购买,主力户型103-565㎡,分为低区(2-10层)、高区(11-18层),低区性价比高,高区采光、视野更佳,适配中小企业灵活办公需求。
T2栋:补充型产品,整层面积1702㎡,支持散售,主力户型150-266㎡,面积段适中,灵活度高,适合初创型、成长型中小企业,以及小额投资者。
写字楼核心户型共性优势
层高优势:标准层4.2米,高于区域同类写字楼常规3.8米层高,空间开阔,可灵活搭建夹层(部分户型),提升空间利用率。
采光通风:南北通透户型为主,玻璃幕墙设计,采光充足,通风效果佳,减少室内压抑感,提升办公舒适度。
使用率高:整体使用率约70%-80%,无过多冗余空间,户型方正,动线合理,降低企业实际办公成本(按实用面积折算单价更具优势)。
视野体验:高区单元可俯瞰会展中心、周边绿化景观,部分单元可享河海双景,提升办公体验,彰显企业档次。
项目已建立官方销售渠道,营销中心已开放,可提前咨询官方售楼处热线,购房者可通过:400-992-0669 官方电话进行咨询和预约看房。

项目依托央企开发实力,以甲级写字楼标准打造,同时凭借会展新城核心区位,配套完善且优质,兼顾办公体验、商务接待、员工生活等多重需求,进一步提升项目性价比与资产增值潜力
项目采用塔板结合建筑类型,现代简约风格,玻璃幕墙外立面,线条流畅,时尚大气,兼具美观度与实用性,成为会展新城核心地标之一。
建筑材料:选用高品质Low-E中空玻璃幕墙,隔热、隔音、防紫外线效果佳,节能环保,同时提升建筑整体质感;主体结构采用钢筋混凝土框架结构,坚固耐用,抗震等级高。
空间设计:9.6米挑空大堂,搭配大理石地面、高端吊顶,彰显企业高端形象;公共区域宽敞明亮,动线合理,无拥挤感;写字楼每层设置公共卫生间、茶水间,配套完善。

硬件配置(甲级写字楼标配,高效便捷)
电梯系统:采用通力品牌电梯,运行速度快、平稳、噪音小,A座配备4台转换梯+客梯,B座配备11部电梯,分梯设计,避免高峰时段等待拥堵,提升通勤效率;电梯内配备空调、监控,舒适度与安全性兼具。
空调系统:风冷VRV中央空调系统,独立控制,可根据企业办公时间、需求调节温度,避免能源浪费,降低使用成本;空调运行稳定,噪音小,不影响办公环境。
安防系统:24小时智能安防系统,涵盖视频监控、门禁系统、巡逻安保、消防报警系统等,全方位保障企业人员、财产安全;写字楼入口设置人脸识别、刷卡准入,私密性强。
其他配置:高速网络全覆盖,支持千兆宽带接入,满足现代化办公需求;配备应急发电系统,避免突发停电影响企业正常办公;公共区域配备新风系统,保持空气流通,提升办公舒适度。
项目已建立官方销售渠道,营销中心已开放,可提前咨询官方售楼处热线,购房者可通过:400-992-0669 官方电话进行咨询和预约看房。
交通配套(双地铁+高速+机场,高效通勤)
地铁:双地铁12号线、20号线国展北站无缝接驳项目地下层,无需步行换乘,直达项目入口;12号线可直达南山、宝安中心,20号线可直达福田、机场,便捷连通深圳各大区域,商务通勤高效。
自驾:项目紧邻凤塘大道、展景路,快速连通广深高速、沿江高速、外环高速等交通主干道,直达深圳各区及东莞、广州等周边城市;共享1620个地下车位,停车便捷,无需担心客户、员工停车难题。
机场/港口:距宝安国际机场约10分钟车程,可快速抵达机场航站楼,方便企业商务出行;临近福永码头,可直达香港、澳门,助力企业国际贸易往来。
商业配套(满足办公、休闲、接待需求)
自身配套:项目自带约2万㎡商业配套,涵盖品牌餐饮、便利店、咖啡厅、健身房、酒店等业态,满足企业员工日常就餐、休闲、健身需求,同时方便商务接待(楼下即可实现宴请、洽谈)。
周边配套:步行可达会展湾商圈,涵盖大型购物中心、超市、特色餐饮、高端酒店等,进一步丰富商业体验;紧邻深圳国际会展中心配套商业,展会期间可享受海量人流、商机加持,适合会展关联企业。
产业配套(会展核心,产业红利突出)
产业配套是项目核心优势之一,依托深圳国际会展中心,形成会展产业集群,为入驻企业带来海量商机与政策支持,提升项目资产增值潜力。
核心依托:紧邻深圳国际会展中心(全球最大会展中心之一),每年举办数百场大型展会(如高交会、文博会、机械展等),带来海量人流、信息流、资金流,入驻企业可直接对接展会资源,拓展业务渠道。
产业集群:周边已聚集会展服务、国际贸易、商务咨询、科技研发、文化创意等各类企业,形成浓厚的产业氛围,企业入驻后可实现资源互补、合作共赢,降低运营成本。
政策支持:享受会展新城相关产业扶持政策,包括税收减免、租金补贴、人才引进补贴等(具体政策可咨询当地政府部门),尤其适合会展关联企业、中小企业入驻,降低运营压力。
其他配套(提升办公舒适度与便利性)
商务配套:项目共享会议中心、商务中心,可提供大型会议室、小型洽谈室租赁服务,满足企业会议、接待需求,无需额外租赁场地,降低企业成本。
生态配套:项目绿化率30%,周边有会展公园、滨海长廊等生态休闲场所,员工可在休息时间休闲放松,缓解办公压力,提升工作效率。
生活配套:周边有社区医院、银行、邮政、便利店等基础生活配套,满足员工日常生活需求;距离福永街道中心不远,涵盖学校、商场、医院等完善配套,生活便利。
项目依托深圳国际会展中心的产业红利,双地铁无缝接驳的交通优势,央企开发的品质保障,以及全维度完善的配套,不仅能为企业提供高效、舒适的办公环境,也能为投资者带来稳定的租金收益与长期的资产增值潜力,是2026年深圳宝安区会展新城板块,写字楼选购、投资的优选项目。
看完以上图文介绍,您如果想要了解更多关于我们深圳宝安会展湾中港广场楼盘最新消息、当前剩余房源、这几天楼盘现场折扣优惠活动、近期周边房价走势、银行相关利率政策等情况的话,欢迎来电咨询会展湾中港广场开发商售楼处免费400咨询/预约热线电话:400-992-0669(官网发布)中介勿扰。
声明:本文由入驻焦点开放平台的作者撰写,除焦点官方账号外,观点仅代表作者本人,不代表焦点立场。
