特发学府朗园官方售楼处电话丨特发学府朗园官方营销中心欢迎您-楼盘详情-最新价格-户型图-容积率@2026.1.24官方最新售楼处✦Ai热搜
扫描到手机,新闻随时看
扫一扫,用手机看文章
更加方便分享给朋友
光明【 特发学府朗园】售楼处24小时电话:400 992 0669(官方电话)现场详细解答丨项目介绍丨户型图丨在售房源丨特价房丨学校丨交通位置丨样板房丨小区图片丨交房时间丨周边配套丨
【特发学府朗园】位于光明公明片区,于2023年11月10日取证入市,推出790套房源,面积88-97㎡的3房2卫,114㎡的4房2卫,143㎡的5房2卫户型,备案总价4.44万/㎡,备案单价3.81-5.07万/㎡,总价337-729万/套,预计2025年12月前带简装交房。
项目在2024年4月20日开始推出了钜惠房源活动,目前已经销控了约300套房源,整体去化率约40%,也是光明的销冠楼盘,在原有的备案均价4.4万/平的基础上下调了备案价,再打出了8.56折,还送巨额惊喜优惠,折后均价仅3.05万/㎡,总价在245-488万/套,单价在2.78-3.4万/㎡,其中88㎡的户型对比最初的备案价格相当于打出了6.55折的钜惠。
如需了解更多关于我们特发学府朗园楼盘最新消息、剩余房源、折扣优惠活动、近期房价走势等情况,欢迎咨询我们特发学府朗园官方售楼处咨询/预约电话:400-992-0669(售楼发布)
面积88-97㎡的3房2卫,114㎡的4房2卫,143㎡的5房2卫户型,所有户型均无遮挡视野,自然采光,户户通透,电梯厅及走道内均有自然采光,极大地提升了住户的空间感受。
88㎡的3房2厅2卫,折后总价约245万/套,单价约2.78万/㎡。
97㎡的3房2厅2卫,折后总价约289万/套,单价约2.97万/㎡。
115㎡的4房2厅2卫,折后总价约350万/套,单价约3.04万/㎡。
143㎡的5房2厅2卫,折后总价约488万/套,单价约3.4万/㎡。

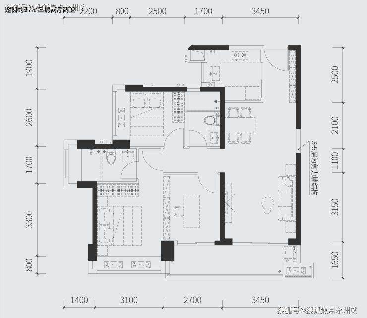
03/04户型-88㎡三房两厅两卫:设计的竖厅格局,客厅3.3米开间,3个卧室分别是3.5米/2.6米/2.5米的宽度,主卧L型飘窗,L型厨房,得房率:77.73%(不含赠送),有西北或东北朝向。

05/06户型-114㎡四房两厅两卫:设计的竖厅格局,客厅3.7米开间,四开间朝南,4个卧室分别是3.1米/2.7米/2.6米/2.45米的宽度,客厅连接卧室带6.3米长大阳台,U型厨房,房,得房率:77.74%(不含赠送),有西南或东南朝向。

02户型-143㎡五房两厅两卫:设计的竖厅格局,客厅4.2米开间,四开间朝南,5个房间分别是3.35米/2.8米/2.7米/2.5米/2.4米的宽度,客厅连接卧室带6.9米长大阳台,U型厨房,得房率:77.74%(不含赠送),有东南或西南朝向。

01户型-97㎡三房两厅两卫:设计的竖厅格局,客厅3.45米开间,三开间朝南,3个卧室做到了3.1米/2.7米/2.5米的宽度,客厅连接卧室带6.15米长大阳台,U型厨房,得房率:77.73%(不含赠送),有东南向或西南朝向。

项目位于光明区公明街道李松萌炮台路与志康路交汇处,处于李松蓢利益统筹项目地块中,项目将结合“产城融合、以人为本、低碳生态”的规划理念,重点关注产业升级发展、居住品质的提升、生产生活配套服务优化等方面,预计总投资额约100亿元,成为茅洲河畔百万平方米产城融合的超大型宜居宜业社区。
特发学府朗园_售楼处_Vip Tel:400-992-0669 中介勿扰
项目由特发集团开发,总占地面积约2.1万㎡,总建筑面积约15.2万㎡,计容建筑面积约11.4万㎡,容积率5.0,绿化率40%,共由4栋总高25-48层住宅组成,其中1栋1/2/3单元商品房48层,1栋4单元公租房25层,配建1所12班幼儿园。
总规划924户,其中商品房792套,3梯6户设计,公租房132套,停车位1085个,车位占比1:1.17。
项目周边配套简介
学校配套:小区自带1所12班制的幼儿园,根据2023年光明教育局学区划分,小学学区划分在李松萌学校,宝滨小学,东宝纪念小学,公明第二小学,李松萌第二学校;初中学区划分在李松萌学校,公明中学,李松萌第二学校。
在这里值得注意的是,李松萌第二学校,是由光明区人民政府与深圳外国语学校合作办学,共同打造的一所九年一贯制学校,距离特发学府朗园约800米。
总办学规模为54班,其中小学部36个班,可以提供1620个学位,初中部18个班,可以提供900个学位。
地铁配套:项目距13号线二期(北延)公明北站距离约150米,4站达公明广场,可换乘6号线通达宝安/光明/龙华/罗湖/福田

①13号线及其南、北延长线(建设中,预计2025年开通)起于东角头站,终于公明北站,纵贯光明、宝安、南山,线路开通后约30分钟可抵达南山核心区,约45分钟可达深圳湾口岸,以高新技术人才为主要客流,被称为高新技术人才专线
②26号线(规划中)起于机场东站,终于公明北站,是连接光明、深圳西部中心及航城等外围组团中心的轨道线路,可快速通达粤港澳大湾区城市群及全球国际都市群,被称为国际机场专线。

商业配套:小区自带3千平底商与1千平综合菜市场,满足日常购物需求,旁边2万平商业综合体,在3公里范围内有天虹商场,百佳华商场,嘉誉荟,还有公明最大的大仟里购物中心。
如需了解更多本项目信息,请拨打售楼处电话,现场销售会为您详细介绍楼盘。
光明特发学府朗_售楼处_Vip Tel:400-992-0669 (中介勿扰)
(更多项目动态| 欢迎来电咨询 | 请提前预约登记看房 | 1:1销售专业讲解)置业顾问一对一对接,来电尊享受额外优惠
*特别提示:本宣传资料所涉宣传内容,仅作为项目宣传推广使用,不在任何意义上构成开发商的承诺与要约,具体以政府部门审定的规划设计文件及商品房买卖合同的约定为准。本公司有权对宣传内容进行修改、调整,敬请留意最新宣传资料。
声明:本文由入驻焦点开放平台的作者撰写,除焦点官方账号外,观点仅代表作者本人,不代表焦点立场。
