宝安凤鸣水岸售楼处(欢迎您)深圳凤鸣水岸|首页网站@售楼处楼盘详情
扫描到手机,新闻随时看
扫一扫,用手机看文章
更加方便分享给朋友
如果看完以上关于我们宝安凤鸣水岸项目的介绍后,您还对如下问题想要深入了解的话:
问题如:最新推出的房源备案价格,小区在售的有多少栋楼,各个楼栋户型具体是什么朝向,每一层楼规划的是几梯几户,这一期卖的房小区里面有多少户,容积率多少,楼栋总共多少层,现在卖的户型具体交楼时间,这几种户型剩下的还有那些,小区门口离地铁近吗,该社区是怎么划分学校的,可以申请哪些小学和初中,交房后物业费怎么收?物业管理费每平米每月多少元,交房是精装修还是毛坯,停车位够吗?停车位有多少个?,小区周边未来有什么规划,楼盘展厅、营销中心在哪里?具体什么时候开盘?开盘多少钱一平米,周边配套,楼盘详情,值得买吗,潜力升值如何,升值空间大不大,营销中心地址怎么导航,坐地铁到哪个站下车过来楼盘比较近,周边近期有什么规划,周边商业配套怎么样,拿地批地时间,这几天楼盘现场最新优惠活动情况等。
建议您可以拨打我们楼盘内场400免费咨询电话与售楼处现场销售直接了解。
➢ ➢深圳宝安【 中化凤鸣水岸】开发商售楼处电话:400-992-0669 中介勿扰
➢ ➢宝安尖岗山【 中化凤鸣水岸】—「开发商售楼处」—「欢迎您!」
➢ ➢来电可了解楼盘最新动态、房价、在售房源、交楼时间等信息!
凤鸣水岸花园,位于深圳宝安、南山、福田、北站商务区、机场&空港商务集群“五中心”交叉片区的核心位置,享受五区发展利好。项目约7KM即达前海中芯,精英汇聚,潜力无限。

最新消息:推出372套建面约75-120㎡3-4房,其中75㎡的124套,120㎡的62套,其余的为95㎡,本次毛坯直售8.3万左右,毛坯交楼!

【基础信息】
开发商:佳兆业、中企中化资本深度管理
物业:待定
总栋数:4栋
占地面积:21051.16平方米
建筑面积:67360平方米
容积率:3.2
总房源:383套,人才房406套
车位:750
物业费:6.8元/月/㎡
梯户比:两梯六户
1栋、2栋是住宅;3栋、4栋是人才房
开发商售楼处:400-992-0669
产品类型:(住宅)
在售户型:
75--95--120平(三至四房)
均价:8.32万/平
交楼:毛坯
卖点:户型方正实用。

凤鸣水岸花园全景图欣赏


关于开发商:
【实力央企 深度管理】
中化资本隶属国务院国资委直管大型央企集团——世界500强中国中化。目前,中化资本已向项目委派法定代表人、董事,深度参与项目经营管理,为项目高效稳定运营保驾护航。
中国中化是国资委直管的国有重要骨干企业,业务范围覆盖生命科学、材料科学、石油化工、环境科学、橡胶轮胎、机械装备、城市运营、产业金融等八大领域,是全球规模最大的综合性化工企业。作为最早入围《财富》全球500强榜单的中国企业之一,迄今已29次上榜,并连续两年被《财富》评为“全球最受赞赏公司”。
【世界第八大半山豪宅区,塔尖身份标签】作为“世界十大顶级豪宅区”之一(数据来源:美国顶级奢侈品权威杂志《ROBBREPORT》,尖岗山依托不可复制的山水资源,荟集中国曼哈顿——前海企业领袖,成为名副其实的世界富豪聚集地,已然成为塔尖圈层的身份象征。

项目的西侧有一所幼儿园,北侧是一所九年制学校,居住在这里不用愁每天接送孩子上学的问题!
佳兆业凤鸣水岸 就在 万科都会四季旁边

项目的西侧有一所幼儿园,北侧是一所九年制学校,居住在这里不用愁每天接送孩子上学的问题!

想上国际学校,也方便,向东直行约450米就是!
【6山2水4园,623公顷天赋大境】
片区坐拥623公顷山水资源,体量相当于5个莲花山和300个香蜜湖叠加,超76%森林覆盖率,绿林环抱,碧水为邻,深圳繁华中难得的低密人居。
6山:尖岗山、平峦山、孖松山、企龙山、岭下山、大井山
2水:铁岗水库、西丽水库4
公园:尖岗山公园、宝安公园、平峦山公园、铁仔山城市公园

【交通跃级,近享规划中地铁9号线】
毗邻地铁5号线【兴东站】,4站直达宝安中心,6站直达深圳北站,7站直达前海湾,可便捷换乘1/11/13号线,近享9号线(西延线二期规划中);
可快速通达深圳各中心主干道京港澳高速、107国道、南光高速,直线距离约10KM内可达宝安国际机场、蛇口港码头、深圳湾口岸,便捷全球

【精粹汇聚,瞬息直抵繁华生活场】
商业:曦城VIVITOWN山地风情商业街、中洲πMall、海雅缤纷城、壹方城、万象天地
医疗:宝安区人民医院、深圳市宝安区中心医院、南方医科大学深圳医院、宝安区妇幼保健院中心区新院
文娱:宝安滨海文化公园、宝安体育场、青少年宫、演艺中心。

【学府云集,护航精彩未来】
深圳“大学区”政策出台,片区生源多为引进人才及高净值人群后代,更加优质、纯粹,营造更好教育环境的同时,也为孩子组建一个高端、优质的社交圈层。
4KM范围内坐拥6大优质学府:万科都会四季9班制幼儿园、万科都会四季36班学校、曦城协同国际学校、新安中学(集团)外国语学校、宝安中学实验学校、西乡中学。

南科大附属宝安学校位置示意图


【墅级社区营造,典雅东方园林】
仅300余至臻席位,匠造典雅外立面、美学入户大堂,超宽楼间距无遮挡社区三级台地布局,三重酒店式归家体验,每一步都是身份的彰显独具东方意境的典藏级园林,植入新美学概念,山水营园,让社区“处处皆画”。

规划平面总图
【凤鸣水岸花园户型图】

75㎡三房两厅一卫
户型方正,3个卧室紧凑实用,阳台和厨房的空间较为富余舒适,满足刚需家庭的居住需求,也是尖岗山片区继万科都会四季70平3房户型之后,入主豪宅区的最低准入门槛。

120㎡四房两厅两卫
A户型则横厅布局增加了实用性,双厅出景观大阳台,可以享受到最极致的景观面,全明户型,通风采光俱佳,每个房间空间都很舒适,满足三代同堂的居住需求,主卧还带有衣帽间设计,具有更好的储存和收纳空间。

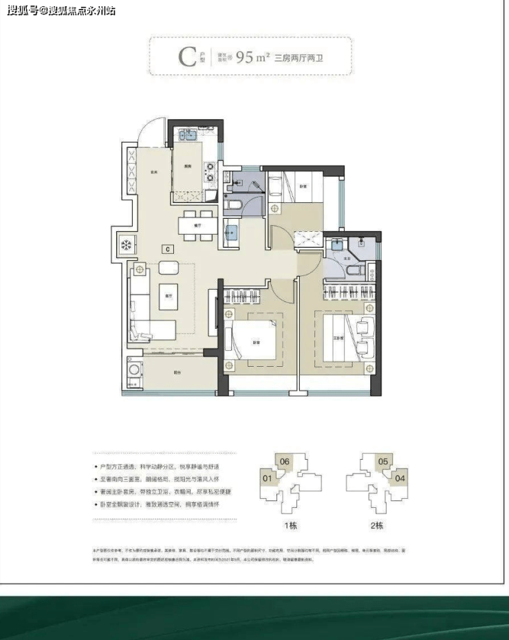
▲95㎡三房两厅两卫
该面积段一共有C和D两个户型,其中C户型为B户型的放大版,多出了一个卫生间,其他功能区相对更加宽敞;D户型在设计上更优,双厅更加通透,厨房和餐厅空间更加宽敞舒适,主卧更是双面采光,市场少有,堪称惊艳。

宝安【中化凤鸣水岸】凤鸣水岸开发商售楼处电话:400-992-0669(中介勿扰)
来电可了解楼盘最新动态、房价、在售房源、交楼时间等信息!让你买的放心,住的舒心!
宝安尖岗山·中化凤鸣水岸开发商售楼处直销_欢迎来电预约享受内部折扣_恭迎品鉴
◆提前来电-预约登记尊享售楼处销售专业讲解〢一对一热情服务〢◆
本楼盘开发商营销中心400电话没有任何所谓的“分机号”,拨号前请认真识别,注意保护个人隐私!谨防上当!
免责声明🔉:
以上所发布的关于深圳宝安尖岗山凤鸣水岸花园楼盘相关图文信息仅供您买房前参考,以上所有关于本楼盘的图文资料及说明请以最终官方批文及双方在楼盘营销中心现场签署的买卖最终合同为准;本图文内容如无意中侵犯到某方权益,请联系我们将会及时处理。
声明:本文由入驻焦点开放平台的作者撰写,除焦点官方账号外,观点仅代表作者本人,不代表焦点立场。
