深圳缙樾府欢迎您(缙樾府)首页网站|楼盘价格/配套/学区/户型
扫描到手机,新闻随时看
扫一扫,用手机看文章
更加方便分享给朋友
「桑泰缙樾府」推220套面积114-115-118-133㎡4-5房!附近可参考价格鸿荣源尚璟公馆,2022年4月备案均价8.94万/㎡,按目前市场行情价格应该会有打折,西丽刚入市汉园茗院准现房折后单价去到6万多!
项目位于南山区南头同乐片区中山园路与铁二路交汇处,项目东侧紧挨着同乐实验学校,西侧是同乐物联网产业综合基地,南侧是安居房同乐馨苑。
桑泰缙樾府_售楼处_Vip Tel:400-992-0669 中介勿扰
桑泰缙樾府项目基础信息
【开 发 商】深圳市塘泰投资发展有限公司
【总 建 面】约47780.16㎡【可售套数】220套
【推售户型】约114㎡-133㎡4-5房
【售楼处电话】400-992-0669
【楼层总高】 31层 【每层层高】 3米
【梯 户 比】3梯4户 【容 积 率】3.62
【交通配套】12号线同乐南站
【商业配套】隆尚Minitown、海雅缤纷城
【教育配套】教科院同乐实验学校
【医疗配套】宝安区人民医院
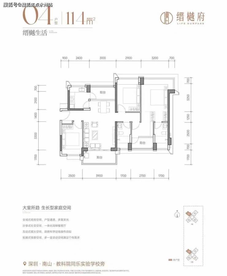
项目住宅总户数为220户,整个项目只有2栋相同平面的100米高纯商品住宅,十字型平面,114-115-118㎡四房各两条腿、133㎡五房2条腿,东南、西南朝向。
所有户型都存在后期阳台改餐厅和房间情况,114㎡四房起步,产品及面积段非常相似的在售项目是赤湾金众云山海公馆,而西丽汉园茗院110㎡只能做到三房。
隔壁地块荔源雅苑面积为50㎡两房,89㎡三房以及117㎡四房,以小面积刚需为主,不管是开发商品牌、小区整体品质还是户型都要低于缙樾府。_Vip Tel:400-992-0669 中介勿扰

户型分析
全部为南北通户型,这在市面上还是非常少见的,十字型布局好处是户型采光通风非常好,缺点就是会有对视的纯在。
每户都存在通过阳台改造赠送,所以改造后使用率基本接近90%,属于市场上高拓产品,就算对比未来建筑新规户型都不落下风。
114㎡4房2厅5卫:客厅朝东北主卧朝西南,户型使用率还不错,客厅做到3.9米开间,所有次卧都不需要利用飘窗搭床,这在市面上已经非常少见了,适合四房刚需家庭。
115㎡4房2厅2卫:西南朝向,尺度与114㎡除了厨房有细微差异,其它完全一样。
118㎡4房2厅2卫:东南朝向,差异主要在于玄关处,入户门没有直面客餐厅。
133㎡5房2厅2卫:朝东南,这个面积段做到5房绝对属于市场独一份的存在,同时还带一个储藏间。
整体看来看户型还是很有亮点的,最主要四房面积控制在120㎡以内、五房控制在133㎡,还是少有的100米非超高层以及阳台赠送,本来荔源雅苑117㎡四房尺度还是不错的,但对比缙樾府还是有差距的,只能说不是你不优秀,还是要看和谁比。
位于南山与宝安交界处,现状周边品质一般,区域无重大利好,距离项目2公里西丽高铁站,未来将成为国内最大的高铁、城际与城市轨道交通换乘站。
交通:项目离地铁12号线南乐南站700米,距离偏远。车行去到科兴大概5公里10分钟,临近南坪快速、北环以及南海大道,车行交通还是非常便利的。
教育:对口教科院同乐实验学校,教学质量一般。
综合配套:约1万㎡隆尚Minitown(招商中,直线约100m)、海雅缤纷城1.7㎞、沃尔玛,楼下规划公园绿地(约2.5万㎡),新安公园、中山公园,虽然地处南山综合配套其实更依赖宝安。
如需了解更多本项目信息,请拨打售楼处电话,现场销售会为您详细介绍楼盘。
桑泰缙樾府_开发商售楼处_Vip Tel:400-992-0669 (中介勿扰)
(更多项目动态| 欢迎来电咨询 | 请提前预约登记看房 | 1:1销售专业讲解)置业顾问一对一对接,来电尊享受额外优惠
*特别提示:本宣传资料所涉宣传内容,仅作为项目宣传推广使用,不在任何意义上构成开发商的承诺与要约,具体以政府部门审定的规划设计文件及商品房买卖合同的约定为准。本公司有权对宣传内容进行修改、调整,敬请留意最新宣传资料。
声明:本文由入驻焦点开放平台的作者撰写,除焦点官方账号外,观点仅代表作者本人,不代表焦点立场。
