融湖盛景花园售楼处(欢迎您)融湖盛景花园楼盘最新详情/房价_户型_地址_详情
扫描到手机,新闻随时看
扫一扫,用手机看文章
更加方便分享给朋友
龙岗【 融湖盛景花园】开发商售楼处电话:400-992-0669 中介勿扰
来电可了解楼盘最新动态、房价、在售房源、交楼时间等信息!让你买的放心,住的舒心!
融湖盛景花园,项目位于深圳市龙岗区平湖街道辅岐路与辅城坳阳光路交叉口东北侧,距离地铁10号线禾花站约660米。本次开盘推出的产品项目为融湖中心城的5期住宅,也是住宅的收官之作。融湖中心城总共分五期开发,总建筑面积约100万㎡,涵盖住宅、商业mall、文化站、教育配套、写字楼于一体,一二三期已交付,融湖盛景花园为住宅收官之作,商业、教育配套醇熟,大城生活逐步兑现。
项目交通配套:
1、枢纽站:平湖枢纽站(距离项目一路之隔),未来将汇聚高铁/城际、地铁、长途巴士、公交总站等多元交通换乘
2、城际:广深城际(已开通,单天单向40列次);惠深城际(预计2022年开通,深圳西丽—坂田—平湖—龙岗中心—坪地—惠阳新圩—仲恺—惠环—麦地—惠州站)
3、地铁:10号线(建设中,预计2020年6月通车;连接平湖、坂田、福田)
17号线(规划中,连接平湖、布吉、罗湖,建成后直达罗湖口岸)
18号线(规划中,连接盐田、平湖、宝安、大空港,建成后直达空港新城、宝安机场)
5、自驾:紧邻城市主干道——平吉大道,快速通达水官—南坪快速、清平高速、机荷高速等多条高速路。
五期地块规划占地约6.2万㎡,规划容积约20万㎡,其中,住宅约18.5万㎡,商业约1.2万㎡,配建一所9班幼儿园,建筑面积2700㎡。
近期将推888套,建面约82-111㎡ 3-4房。

融湖盛景花园楼栋户型分布:
采用围合式布局,营造约4.1万㎡中央大花园;园林以自然无界、度假为主题,为业主营造精致的休闲归家体验;内部配置泳池、社区会客厅、健身跑道、0-12岁儿童全龄活动区等。
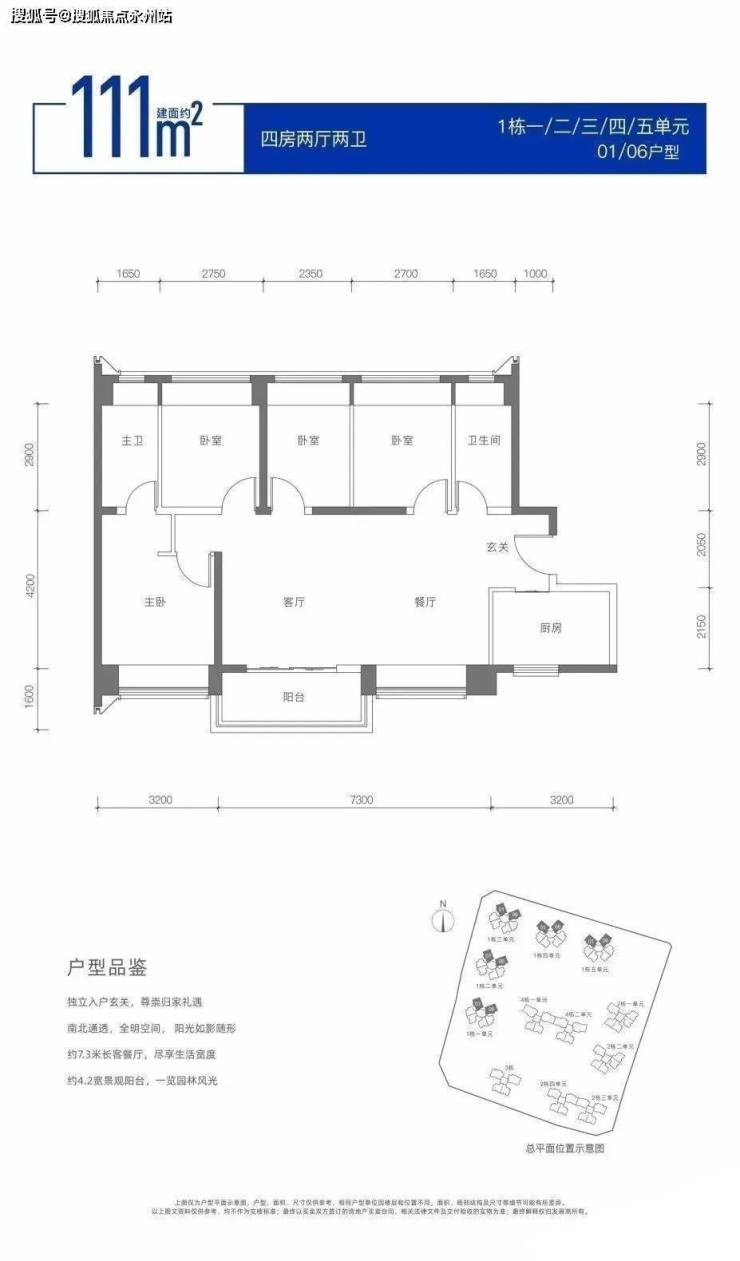
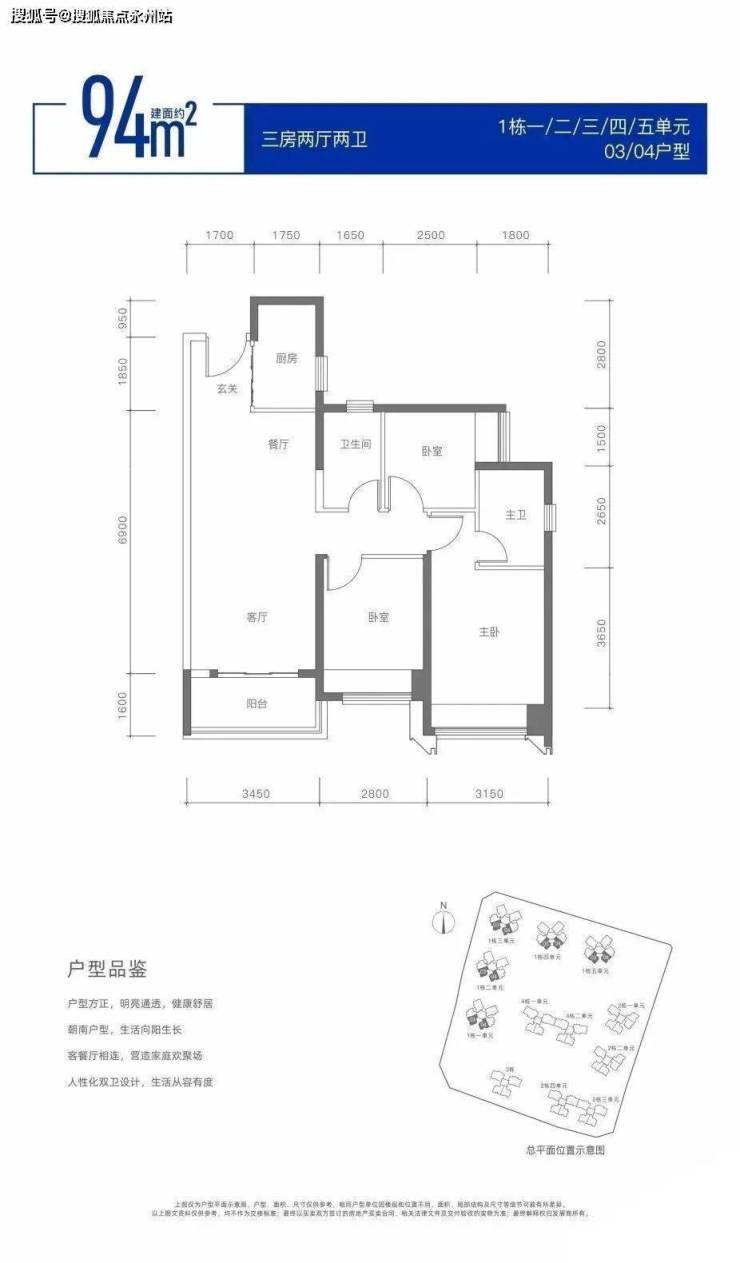
融湖盛景花园户型图鉴赏
龙岗【 融湖盛景花园】开发商售楼处电话:400-992-0669 中介勿扰
来电可了解楼盘最新动态、房价、在售房源、交楼时间等信息!让你买的放心,住的舒心!
温馨提示:看房请务必提前预约,避免临时无人接待, 感谢您的配合!
【免责声明】
· 本文中所提到的融湖盛景花园项目名称均为本项目的推广名,具体备案名可能存在不同。
· 本宣传资料仅作为要约邀请,相关图文内容不排除因政府相关规划、规定及开发商未能控制的原因而发生变化,本公司保留对宣传资料修改的权利,敬请留意最新资料。
·本资料对项目或户型产品的介绍,旨在提供相关信息,不意味着本公司对此作出了承诺,买卖双方的权利义务以双方签订的《商品房买卖合同》及附件等协议为准。
· 本文部分图片来源于国际互联网,版权归原作者所有,如涉及版权等问题,请立即联系我们,我们会给予更改或相关处理。对使用本网站信息和服务所引起的后果,本网站不作任何承诺。
声明:本文由入驻焦点开放平台的作者撰写,除焦点官方账号外,观点仅代表作者本人,不代表焦点立场。
