拾悦城楠园(深圳宝安)拾悦城楠园-官方简介|拾悦城楠园欢迎您-楼盘测评!
扫描到手机,新闻随时看
扫一扫,用手机看文章
更加方便分享给朋友
宝安【拾悦城楠园】售楼处24小时电话:400 992 0669(官方电话)现场详细解答丨项目介绍丨户型图丨在售房源丨特价房丨学校丨交通位置丨样板房丨小区图片丨交房时间丨周边配套丨
拾悦城楠园售楼处-售楼处电话?拾悦城楠园位于广东省深圳市宝安区宝安大道11号线沙井站B口/马安山站A口,拾悦城二期楠园_售楼处营销中心电话_Vip Tel:400 992 0669
因循于时代,沉淀于时间。当时代传奇与城市浪潮契合,必成就宝藏之作,引领未来人居潮向。
经过数月精心打磨、千余次匠心锤炼,拾悦城匠心打造的二期作品——拾悦城楠园已经盛大开盘,作为昔日网红区域,沙井新盘拾悦城二期折后均价在4.5万,现有10套工抵特价房最低起步价在3.82万/㎡还带装修,这个价格跟当初2017年开盘的拾悦城一期毛坯均价4.3万/㎡相差不大,若剔除装修成本基本持平。
拾悦城楠园位于宝安沙井的中心区片区,寮丰路与岗头路交汇处西北侧,东侧毗邻拾悦里雅居和宝安大道,距离11号线沙井站步行约800米。西南侧是定岗湖公园,也是小区未来主要的休闲区域。
项目主要由6栋商品房建筑和一栋幼儿园组成,为48-53层的超高层小区,其A栋-D栋都有回迁房,E-F栋为纯商品房。
拾悦城楠园采用的是开发商直接在售楼处进行销售,并且通过网络平台进行推广
拾悦城楠园_开发商售楼处_Vip Tel:400 992 0669 (中介勿扰)
(更多项目动态| 欢迎来电咨询 | 请提前预约登记看房 | 1:1销售专业讲解)置业顾问一对一对接,来电尊享受额外优惠

拾悦城楠园项目整体占地约3.54万㎡,总建面约17万㎡,共规划了14栋30-48层超高层住宅、4栋26-33F高端写字楼及部分商业配套组成,还规划了一所36班九年一贯制学校、一所18班幼儿园。拾悦城二期位于宝安沙井片区,宝安大道西侧,创业路北侧,其前身是壆岗岗厦片区城市更新项目。
拾悦城二期由8栋建筑主体组成,分为1栋、2栋,其中1栋由A-G座组成,总房源1682套,其中商品房有1202户,回迁房480户。楠园建设用地面积35412.81㎡,总建面322995.68㎡,计容建面235495.45㎡,其中住宅建面207970㎡,商业建面4500㎡,幼儿园建面5940㎡,容积率6.66,机动车位2396个。
项目整体分3期开发,此次入市的楠园、沁园属于项目2期
作为全国首批三星级绿色建筑住宅,安全耐久、健康舒适、节约资源的绿色健康人居空间
采用围合式布局,园林以“全维社区共享生活体系”为概念,打造全龄段、多元化、动静分明的社区园林,静享超万平米中央园林,归家沉浸理想全维生活。
交通配套:项目紧邻11号线沙井站约800米,5站到机场,8站通宝中,快速通达前海湾、后海总部基地,深超总、福田中心。
教育配套:值得一提的是,项目一期旁边就是拾悦小学,二期内建设有一所18班幼儿园,北侧还规划有一所九年一贯制学校,教育配套比较丰富。
且之前有传闻拾悦城二期自带的九年一贯制学校将引入宝安中学教育集团分校,如果消息属实,项目在教育这点上在同片区的新房中,还是非常有卖点的。
商业配套:约3公里内超48万㎡商荟集群,享天虹、沃尔玛、京基百纳广场核心商圈,未来周边还会进驻山姆会员店(建设中)、百佳华Max City(建设中)、海岸城等。
休闲配套:楼下举步即达约9.5万㎡占地的定岗湖湿地公园,茶余饭后可漫步于丰盈绿意的天然氧吧,周边还有大钟山公园、壆岗湖公园等森境围合,独享自然生态谧境。
项目户型介绍
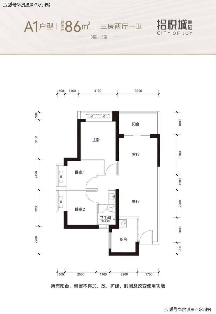
86㎡的3房2厅1卫,设计的竖厅格局,客厅3.3米开间,目前仅B座06户型有,东北朝向
100㎡的3房2厅2卫,设计的竖厅格局,客厅3.4米开间,有西南及东南朝向
103㎡的3房2厅2卫,设计的竖厅格局,客厅3.4米开间,目前仅B座07户型有,东北朝向
107㎡的3房2厅2卫,设计的竖厅格局,客厅3.6米开间,西南朝向
115㎡的4房2厅2卫,设计的竖厅南北通透格局,客厅3.6米开间,目前仅E座05户型有
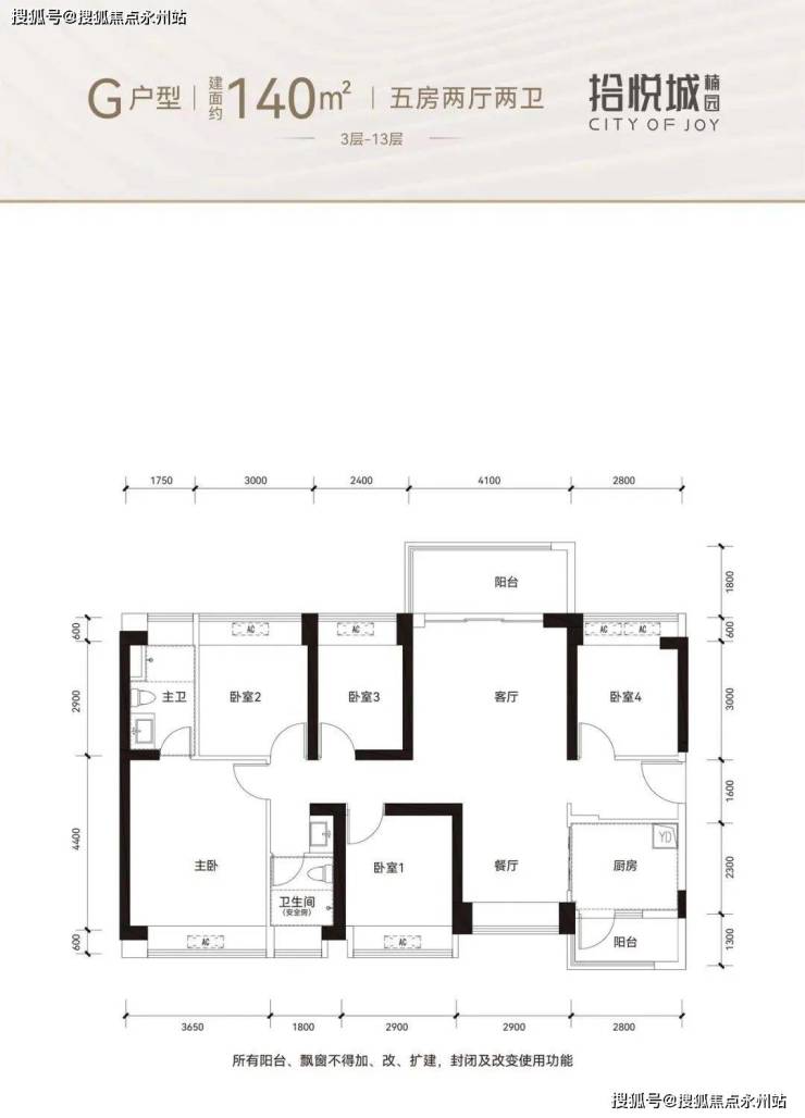
140㎡的5房2厅2卫,设计的竖厅南北通透格局,客厅4.7米开间,目前仅B座05户型有
拾悦城楠园售楼处电话:400-992-0669 售楼中心,项目全面介绍,包含楼盘简介、售楼电话、小区户型图片、营销中心位置、区位优势、交通、周边商业配套、户型图等楼盘详情以上全文就是【拾悦城二期楠园】楼盘详情,这篇文章的详细分析和点评,感谢您的阅读,希望为您的购房置业选择上提供帮助,开盘预售动态、价格走势资讯、项目最新消息,待定更新发布,敬请持续关注订阅。
如需了解更多本项目信息,请拨打售楼处电话,现场销售会为您详细介绍楼盘。
拾悦城楠园_开发商售楼处_Vip Tel:400 992 0669 (中介勿扰)
(更多项目动态| 欢迎来电咨询 | 请提前预约登记看房 | 1:1销售专业讲解)置业顾问一对一对接,来电尊享受额外优惠
声明:本文由入驻焦点开放平台的作者撰写,除焦点官方账号外,观点仅代表作者本人,不代表焦点立场。
