2026光明满京华金硕华府:户型设计/价格信息/配套资源/品质细节全维度测评,开盘详情+交付时间权威解读,附官方售楼处VIP预约通道
扫描到手机,新闻随时看
扫一扫,用手机看文章
更加方便分享给朋友
光明【 满京华金硕华府】售楼处24小时电话:400 992 0669(官方电话)现场详细解答丨项目介绍丨户型图丨在售房源丨特价房丨学校丨交通位置丨样板房丨小区图片丨交房时间丨周边配套丨
科学公园满京华利益统筹项目一期——满京华金硕华府。
项目作为光明中心区的重点开发项目,从立项到动工,一直深受购房者关注,建面约88-98-118-139㎡,备案均价4.65万/㎡,备案单价4.14-5.14万/㎡,总价368-722万/套,计划在2025年12月底前带简装交房,该项目环境好,社区大,教育资源充沛,入学无忧。
满京华金硕华府_售楼处_Vip Tel:400-992-0669 中介勿扰
满京华狮山利益统筹项目(满京华一期金硕华府)位于6号线光明站、光明大街站1公里辐射范围内,交通便利,北面是规划中的光明新城市“绿肺”——科学公园。
【开发商】:深圳市满京华置业投资有限公司
【售楼处地址】:深圳·光明中心·光辉大道与狮山三街交汇处·6号线光明站D出口约800m【总占地面积】:约11万㎡
【总建筑面积】:约88万㎡
【一期占地面积】:约2.28万㎡
【一期建筑面积】:约19.80万㎡
【一期容积率】:6.0
【主力户型】:建面约88-141㎡3-4房
【售楼处电话】400-992-0669
满京华狮山利益统筹项目位于光明科学城核心区块,地块原为狮山工业园区,是光明区8个土整利益统筹试点项目之一,是光明中心区建设得重要组成部分。项目位于深圳市光明中心区中部,东临光明大道,北临光辉大道,与科学公园隔路相望。
项目范围涵盖10块用地,总用地109398㎡,总建筑面积约32.38万㎡,其中项目用地7块,返还用地1块,公共绿化用地2块。
05-03:科学公园首排,共计412套,户型为142㎡和208㎡,各206套。
05-05:商业地块。
05-09、05-10、05-13、06-04、06-06:商品房和人才房634套。
其中,商品房:88㎡605套,98㎡1739套,100㎡305套(横厅),118㎡486套,135㎡380套,合计3515套。
人才房:06-06地块,65㎡406套,85㎡228套,合计634套。05-03、05-05地块总建筑面积约222623㎡,具有国际、艺术、现代风格的高端住宅、办公、商业、配套等。其中主要包括1栋约180m超高层办公写字楼,3栋超高层住宅(住宅最高约150m)及其商业配套。
住宅05-03地块较为狭长,3栋塔楼一字排开获取最佳景观效果。
办公05-05地块塔楼建筑立面采用框架式幕墙,竖明横隐,高区塔楼层级叠退,强调建筑形象的向上拔升感,竖向线条加玻璃幕墙,虚实结合,视觉效果轻盈简洁。
如需了解更多详情,欢迎咨询满京华金硕华府开发商售楼处电话/咨询热线:400-992-0669(中介勿扰),过来我们营销中心看房提前来电预约,而且最终的价格还能享受更多优惠。
05-09地块:用地面积为8819.9㎡,总建筑面积73918.69㎡,共有2栋住宅楼和商业组成。
05-10地块:用地面积为22841.91㎡,总建筑面积196254.09㎡,由1栋1单元、1栋2单元、2栋1单元、2栋2单元、3栋住宅楼、幼儿园、物业服务用房、商业用房、等相关配套设施组成。
05-13地块:用地面积为11250.4㎡,总建筑面积98715.64㎡,由1栋、2栋、3栋住宅楼、幼儿园、物业服务用房、商业用房、等相关配套设施组成。

项目外立面采用现代风格设计手法,追求公建化立面,强调整体性。幕墙系统有系统窗、玻璃栏杆、石材幕墙+蜂窝石材、山墙面铝合金格栅系统、层间装饰线条、入口大堂玻璃幕墙、铝板幕墙、U型玻璃系统等。
裙楼立面采用竖隐横明玻璃幕墙,裙房与塔楼相呼应,形成兼具灵动性、内部秩序的简洁立面。
小区:借鉴新加坡园林,打造出温情向阳的社交场、有趣有料的互动空间。
儿童游乐场:打造主题性的多维儿童游乐空间
全龄泳池:在家就能享受日光浴SPA
社区会客厅:在社区会客厅里与邻里朋友自由畅谈
塔楼建筑立面采用框架式类幕墙,传统构件式设计概念,幕墙均以散件形式现场按次序安装。住宅山墙面采用密拼式铝合金格栅加塔楼层间铝合金装饰线条,视觉效果轻盈简洁。项目的立面幕墙设计由PAG朋格幕墙负责,具体以官方公布交付为准。满京华金硕华府_售楼处_Vip Tel:400-992-0669 中介勿扰
项目配套简介
交通/教育配套:周边分布有地铁6号线的光明、科学公园和楼村三个站点,距离约1公里左右,规划有另一条直达南山科技园的29号线,轨道交通便利。周边也分布有多所学校,包括有华师大附属星河小学、深实验光明学校、深圳小学等多所市属名校分校(具体学区范围以官方公布为准)。
商业/文娱配套:项目自带商业综合体外,1公里左右还有在建的星河cocopark,以及3公里处还有目前光明最繁华的凤凰城蓝鲸世界,万达广场等大型商业。
家门口规划有科学公园,占地面积约为208万㎡,公园内规划有科学岛、科技馆新馆、西方美术馆等,未来紧邻科技创新文化集群。
满京华金硕华府于2023年9月12日取证入市,首推2栋1/2单元/3栋,共704套住宅房源,面积89㎡的3房1卫,98-103㎡的3房2卫,120-139㎡的4房2卫户型,备案均价4.65万/㎡,备案单价4.14-5.14万/㎡,总价368-722万/套,计划在2025年12月底前带简装交房!
后面在2023年11月28日再次取证加推,本次推出1栋1/2单元,共434套房源,面积89㎡的3房1卫,98-103㎡的3房2卫,120-139㎡的4房2卫户型,备案均价4.65万/㎡,备案单价4.21-5.16万/㎡,总价414-725万/套。
项目除了4栋是12班幼儿园教学楼外,1栋1-2单元、2栋1-2单元、3栋都是可售商品住宅楼,有3梯6户、3梯4户两种梯户比,总货量约1138套。
满京华金硕华府_售楼处_Vip Tel:400-992-0669 中介勿扰
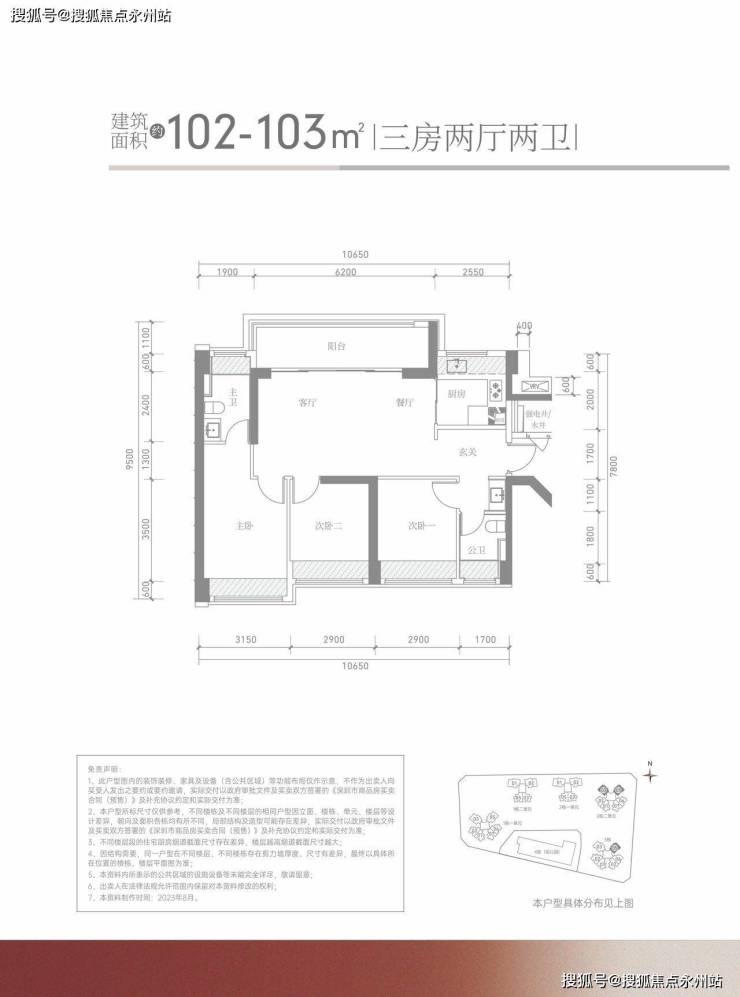
建面约88㎡三房两厅一卫,约98㎡三房两厅两卫,约103㎡三房两厅两卫、约118㎡四房两厅两卫、约141㎡四房两厅两卫,共计3大类,细分5个户型。
不管是三房还是四房、横厅还是竖厅,它们的户型都是比较常见的传统的结构,竖厅动静分区,横厅隐形式过道搭配宽景阳台,就结构本身和各功能间的尺度来说没啥特别想吐槽的。
项目88㎡及98㎡户型全部为西南、东南或南朝向,都是比较受欢迎的朝向;103㎡-141㎡户型客厅阳台都是西北或者是东北朝向,因为是横厅,且都是独立的一条腿,在另一侧开窗的情况下整个是可以实现整个室内空气对流、通透的。
如需了解更多本项目信息,请拨打售楼处电话,现场销售会为您详细介绍楼盘。
满京华金硕华府_开发商售楼处_Vip Tel:400-992-0669 (中介勿扰)
(更多项目动态| 欢迎来电咨询 | 请提前预约登记看房 | 1:1销售专业讲解)置业顾问一对一对接,来电尊享受额外优惠
*特别提示:本宣传资料所涉宣传内容,仅作为项目宣传推广使用,不在任何意义上构成开发商的承诺与要约,具体以政府部门审定的规划设计文件及商品房买卖合同的约定为准。本公司有权对宣传内容进行修改、调整,敬请留意最新宣传资料。
声明:本文由入驻焦点开放平台的作者撰写,除焦点官方账号外,观点仅代表作者本人,不代表焦点立场。
