华侨城四海华亭(售楼处)首页网站-华侨城四海华亭营销中心-华侨城四海华亭欢迎您-楼盘详情-最新价格-户型图-容积率※售楼处2025.11.9
扫描到手机,新闻随时看
扫一扫,用手机看文章
更加方便分享给朋友
✨ 华侨城四海华亭售楼中心预约通道开启,已认证,安全无忧咨询热线 ✨
✅ 华侨城四海华亭售楼处丨开发商丨营销中心统一热线:400-992-0669(全程认证,无分机号)
✅ 通话自动隐藏号码,保护个人隐私,谨防非渠道诈骗
龙华华侨城四海华亭最新价格、户型信息,配套及交付信息,楼盘详情解析!
曾经四海为家,如今家在四海!
这个广告语是不是有点熟悉,还记得那个曾经龙华第一卷王的楼盘吗?
没错,就是【华侨城·四海华亭】,似乎它又要以王者之志,卷土重来了。小道消息透露,KFS内部正在商讨接下来的营销方案,据说将会非常给力,大家静候佳音!
华侨城四海华亭于2022年11月12日取证开盘,推出1043套面积87-121㎡的3-4房,备案均价6.46万/㎡,单价区间5.88-6.85万/㎡,当时开盘诚意登记折扣88折,开盘当天又释放了一个98折,差不多15个点折扣。项目于2024年12月31日带精装交房!
华侨城四海华亭_售楼处_Vip Tel:400-992-0669 中介勿扰
华侨城四海华亭,位于龙华区大浪街道龙胜路与春华路交汇处东侧,由华侨城集团开发,项目毗邻高峰学校,周边多为城中村,城市面貌稍差,不过基本都已经划入城市更新单元,东南侧约1.2公里是龙华最大的壹方天地购物中心,4号地铁线“龙华站”,“龙胜站”距离都在800米范围内,6号地铁线“上芬站”距离约1.4公里。

【开发商】深圳市协跃房地产开发有限公司
【物业】深圳市盛世嘉物业管理有限公司
【物业类型】住宅、公寓、商业为一体的大型综合体
【产品面积】住宅29万㎡,公寓3.7万㎡,商业5.1万㎡
【占地面积】约54465㎡ 【建筑面积】约56万㎡
【绿化率】30% 【建筑面积】约11万㎡
【层数】一、二单元51层、三、四单元52层
【套数】约1044套 【层高】2.95m
【梯户比】3梯5户/4梯6户 【交楼时间】2024年12月底
【住宅交付标准】精装修 【售楼热线】400-992-0669
【产品】建面约87-96-106-112-121㎡3-4房
【产权年限】70年 【绿化率】30%
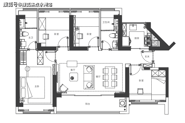
在售住宅面积87㎡的3房1卫,94-97㎡的3房2卫,106-112-121㎡的4房2卫
87㎡三房有两种户型:一种正常的竖厅,进门餐客厅一体,动静分区,此分布于1栋 3/4单元,户型03/06,其中03主西南,看龙胜公园方向,06主东南,看市政公园方向。
另一种双龙抱珠户型,这种户型在三房较少见,中庭为餐客厅,房间分别在两侧,这种户型带老式的庭院风格,且户型没有过长的走道,浪费面积较少。这个主要分布在1栋 1/2单元,户型为01,其中1单元01朝向主西北,看楼下大门口广场;2单元01朝向主东北看民房,总共2条腿有这个户型,相对较稀缺。

94-97㎡的3房2卫:这个户型三房两卫,主卧带独立卫生间,客厅出阳台,开间3米6,好在次卧室确实很大,很宽敞。此户型是小区的主力户型,四个单元都有分布,朝向为东南和西南,东南看市政公园,西南面龙胜公园方向,因为货量最多,也是开发商出货的主力产品

112㎡四房两厅两卫:四房横厅布局,超长景观阳台,每个卧室带飘窗,独门独户。这个户型分布在1栋3/4单元,横厅,阳台主卧和小次卧西南,两个次卧室东北向,在塔楼的高层建筑来讲,进门卧室和餐厅位置多少有点不可避免的遮挡,因为四房较稀缺,目前所剩四房只有这个产品,但讲前后视野开阔度来讲,1栋4单元02户型觉得会更优。

公寓户型:24㎡-55㎡

华侨城四海华亭项目位于深圳市龙华区中心核心区大浪街道,东接工业西路,西临龙胜路,西北侧为龙胜公园.项目总建筑面积达56万㎡,建设11栋超高层住宅,并配套集中商业、幼儿园、学校、公交首末站、文化活动室等公共配套设施,为住宅+公寓+商业+教育的综合性大型宜居社区。
四海华亭项目共5栋:住宅4栋+1所幼儿园。建筑高度约150米,容积率6.87比较高,一单元/二单元3梯5户,三单元/四单元4梯6户。华侨城四海华亭_售楼处_Vip Tel:400-992-0669 中介勿扰

项目位于深圳龙华区大浪街道,龙胜路与和平路交汇,位于4号线龙华站与龙胜站之间,实测到龙胜站约步行约1000m,龙华站1.1Km,走路约10多分钟
值得一提的是,深大城际龙胜站正在施工,预计26年通车运营,3站到机场,后期去宝安机场方向还是很方便。
超百万城市中心商业配套,项目自带5万㎡艺术风情商业街区,联动周边商业巨舰,构建“超级活力中心”周边深圳最大型商业壹方天地、华南地区Costco、红山6979、天虹商场等
项目是高峰学校、龙华中学弘毅校区(广东省一级),高峰学校,是一所广东省一级公办九年一贯制学校。学校源于1923 年黄德庭先生在下早禾坑村黄氏宗祠开办的私塾,历史悠久、底蕴深厚。学校占地面积30238.84平方米,现有66个教学班级。
弘毅学校已经建好,在家门口,九年一贯制公立学校,真正的目送式上学。
华侨城四海华亭,位于龙华片区十四五规划发展重点“龙华超级商圈”的核心区域,周边旧改云集,汇集中洲、华润、海岸城、鸿荣源等众多名企城市更新项目。
休闲公园就在家门口,前面的小山坡是市政用地,规划的公园。旁边的龙胜公园特地实勘遛了一圈,这个不愧是龙华群众的文化活动公园——休闲广场,篮球场,小跑道,凉亭,带娃遛弯广场舞真不错,老人小孩年轻人都能动起来,很是惬意!
深圳华侨城四海华亭售楼处电话:400-992-0669 (1对1专线)欢迎咨询最新动态、房价、在售房源、交楼时间等信息,“请务必注意”甄别,我们营销中心只有一个号码,不需要转换分机。
看房请务必提前预约,避免临时无人接待, 感谢您的配合!
龙华·四海华亭欢迎您-预约看房,置业顾问一对一对接在售户型图丨项目介绍丨房源丨_周边配套丨详细解答
温馨提示:项目没有所谓的“分机号”注意保护个人隐私!谨防上当!看房请务必提前预约,避免临时无人接待,感谢您的配合!
声明:本文由入驻焦点开放平台的作者撰写,除焦点官方账号外,观点仅代表作者本人,不代表焦点立场。
