一文读懂深圳华侨城新玺优缺点!分析一下华侨城新玺值得买吗?
扫描到手机,新闻随时看
扫一扫,用手机看文章
更加方便分享给朋友
深圳湾三大豪宅:深圳湾一号、恒裕深圳湾、华侨城新玺。而今天介绍的华侨城是这三个里面唯一拥有200㎡面积+纯大户。性价比之王!拥有一线海景且带大阳台,同级产品在30万+,新玺近期好楼层好朝向特价房低至17万。绝版资产,值得臻藏!
最新动态:当前我们项目在售建面约230-700㎡面积段,具体剩余楼层、户型、朝向欢迎咨询深圳华侨城新玺开发商售楼处电话:400-992-0669(中介勿扰),预约看房价格可以更优惠,下面是我们项目近期推出的几套一口价房源,详情请咨询售楼处电话了解最新动态。
深圳湾黄金海岸线上的封面地标,永久一线海景!下楼即可悠闲的漫步15公里滨海长廊!
项目基础指标
开发商:深圳华侨城新玺发展有限公司
占地:2.5万㎡
建面:17.6万㎡
产权年限:40年
1栋公寓:约230-700㎡大平层
总楼层:38层
层高:3.6米
梯户比:三梯一户、三梯两户
开发商电话:4009920669
交楼标准:豪装
交楼时间:2023年12月
管理费:14.8元/m²
物业公司:华侨城至尊物业华管家
展厅地址:南山区湾厦路1号华侨城新玺展示中心
2022年、2023年长期霸榜深圳豪宅榜。因其高端定位,纯粹圈层,以及占据湾区核心地段、稀缺且不可复制的资源,深受各界富豪、塔尖精英人士的青睐!
华侨城新玺 可居住、可收藏、可接待、可宴请!这样全能型的豪宅,你想拥有吗?值不值得买?看看下面:
【粤港澳之核,大湾区之芯】
环抱联动前海、蛇口、深圳湾,形成三大千亿经济中心叠加发展格局,成为深圳未来30年发展的最直接的受益者。

【集萃生活理想,领驭万象风华】
海陆空轨交通枢纽,世界版图从容跨越
太子湾邮轮母港 | 深圳湾口岸 | 大南山隧道 | 妈湾跨海隧道 | 微波山隧道 | 望海路 | 深港澳国际机场群 | 地铁2/12号线
【新玺的由来】
这里曾是蛇囗渔港—深圳最大的国家一级渔港,珠三角地区最大的海鲜进出口港口。蛇口渔港以灯塔、渔船、海鲜闻名,是这座城市发展的见证和缩影。
2018年蛇口渔人码头正式拆除,综合体项目的位置即为“华侨城新玺”。
深圳市区最后一片留存渔民记忆的地方——蛇口渔港,迎来了脱胎换骨的升级改造。


蛇口渔港整体规划将被打造成集市民休闲、海洋主题教育、文化艺术交流、高端住宅、旅游娱乐、商业办公等功能于一体,也将成为深圳一张靓丽的城市名片。

【景观—三面环海,收放世界想象】
国际湾区唯一三面环海的海幕豪宅,天赋臻稀,独具匠心的建筑排布与户型设计,最大程度上保留了270°的海景视野。

【品质—镶嵌在海中的豪宅,湾区仅此一处】
①世界大师与传奇建筑的对话
邀请世界顶级设计团队
德国gmp建筑设计
英国MSP景观
法国RFR幕墙等世界大师
汇聚成至诚用心的高品质综合体。

②灵动立面,地标级滨海综合体
立面熠熠生辉,点亮一湾璀璨,项目最高建筑约250米,筑就片区新地标。
【奢享配套——私密半岛,环海花园】
①首层城市花园,无缝连接15公里滨海长廊
②自带约2.5万㎡峡谷中庭式商业,滨海购物新体验
③高端私密会所、深圳首个悬空无边际海景泳池



【产品—深圳湾罕有海幕纯大户】
①稀缺纯板楼设计,户户朝南,户户赏海。双面采光,南向均为永久无遮挡海景,东西端户更享受三面采光与270°环幕海景。
②3.6米奢阔层高,约230-700㎡纯大户,户户面海,带大景观阳台。
③内部空间灵动百变。

准现楼|稀缺板楼|南北通透|户户看海


【实力央企—品牌实力】



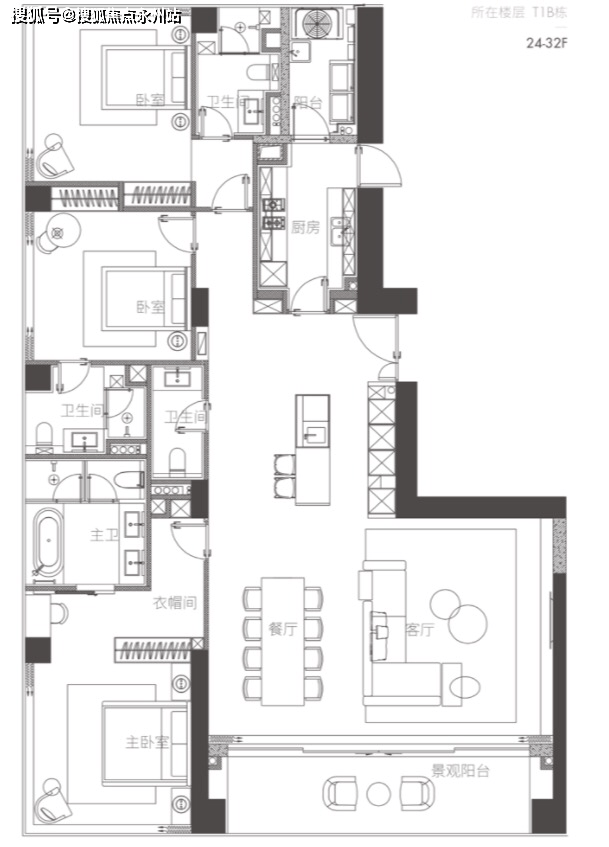
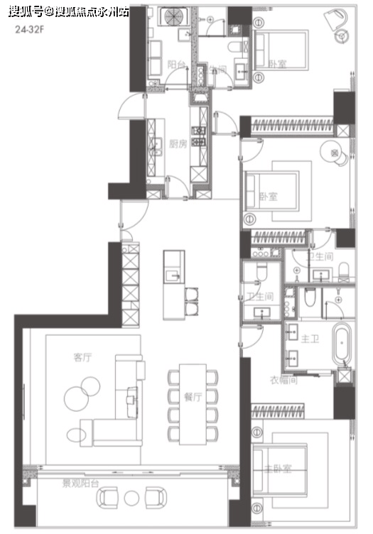
约230平3房2厅3卫
华侨城新玺-样板房展示单位
一栋(公寓)展示单位:
一单元:1601(350m²)、1602(230m²)
三单元:3405(400m²)
四单元:2607(230m²)、2608(280m²)



【户型亮点】
1. 超9米超宽幕开间,厅出阳台邂逅无垠海景
2. 三套房设计,尊贵私属空间
3. 主卧L形全景落地窗,270°最佳观海位
4. 动静分区布局有序

【户型亮点】
1. 双龙抱珠户型设计,户型方正实用
2. 双套房朝南,赏南向一线海景
3. 广角视野景观阳台,遨游无垠海天



【户型亮点】
1. 超8米超宽幕开间,厅出阳台邂逅无垠海景
2. 三套房设计,尊贵私属空间
3. 主卧L形全景落地窗,270°最佳观海位
4. 动静分区布局有序

【户型亮点】
1. 双龙抱珠户型设计,户型方正实用
2. 双套房朝南,赏南向一线海景
3. 广角视野景观阳台,遨游无垠海天
【一栋 一、二单元】高区
(33-38层)
三梯一户

01+02户型 约700㎡ 六房三厅七卫
南、西、北,三面景观视野
看深圳湾海景、内海景、城市景观

【户型亮点】
1. 一层一户,臻稀单位,仅6席。
2. 七房六套房设计,尊贵私属空间
3. 主卧L形全景落地窗,270°最佳观海位。南向超大三厅一体,奢华大气。
4. 动静分区布局有序
03+04户型 约500㎡ 五房三厅六卫
南、东、北,三面景观视野
看深圳湾海景、内海景、城市景观

【户型亮点】
1. 一层一户,臻稀单位,仅6席。
2. 五房四套房设计,尊贵私属空间
3. 主卧L形全景落地窗,270°最佳观海位。南向超大三厅一体,奢华大气。
4. 动静分区布局有序
(33-38层)
三梯一户


【户型亮点】
1. 一层一户,臻稀单位,仅6席。
2. 四套房设计,尊贵私属空间
3. 主卧L形全景落地窗,270°最佳观海位
4. 动静分区布局有序
往后余生,日出日落都是你!



【实景图】

【华侨城新玺开发商售楼处电话:400 992 0669 (中介请勿扰)】
✅ 过来参观样板间,记得提前拨打售楼处电话在线预约,感谢配合!
✅ 看房提前预约可享楼盘内场优惠,安排现场销售人员一对一服务!
✅ 来电可了解楼盘最新动态、房价、户型面积、优惠折扣政策信息!
郑重提醒:本楼盘开发商售楼处电话从未设置任何所谓的“分机号”,拨打之前请认真甄别,保护好个人隐私,谨防上当!
免责声明🔉:
以上所发布的关于深圳蛇口华侨城新玺楼盘资料和相关信息仅供参考,所有图文资料及说明请以最终批文及双方在我们楼盘营销中心现场签署的买卖合同为准;本篇图文内容如无意中侵犯某方权益,请联系我们将会及时处理。
声明:本文由入驻焦点开放平台的作者撰写,除焦点官方账号外,观点仅代表作者本人,不代表焦点立场。
