2025深业云筑户型大全/光明深业云筑户型介绍/房价最新详情/深业云筑时尚户型抢鲜体验!
扫描到手机,新闻随时看
扫一扫,用手机看文章
更加方便分享给朋友
光明【宏发天汇城】售楼处24小时电话:400 992 0669(开发商直销)现场详细解答丨项目介绍丨户型图丨在售房源丨特价房丨学校丨交通位置丨样板房丨小区图片丨交房时间丨周边配套丨
光明公明,深业云筑二期于2023年4月24日取证入市,推出4栋/5栋1/2单元/6栋/7栋,共793套房源,面积有89㎡的3房1卫,112-128㎡的4房2卫,143㎡的5房2卫户型,备案单价4.06万-5.29万/㎡,备案均价4.66万/㎡,总价364-753万/套,在2023年12月底已经交房,目前是现房销售,简装交付。
开发商:深圳市深业明宏地产开发有限公司
位置:光明区公明南环大道与长春路交汇处东侧
交付状态:现房销售(2024年6月已交付),即买即住,可实地验房。
社区规模:总建面约 32.7 万㎡,分两期开发,
二期占地:1.85 万㎡,容积率 4.84。
物业:深业物业,物业费 3.5 元 /㎡・月,车位比 1:1。
户型价值解析
89㎡三房:竖厅格局,LDKB 一体化设计,79.89% 得房率
112-128㎡四房:南北通透双阳台,4.2 米阔景客厅
143㎡五房:双主卧套间设计,80.4% 超高实用率
如需了解更多详情,欢迎咨询深业云筑售楼处电话400-992-0669,过来我们营销中心看房提前来电预约价格还能更优惠。
光明深业云筑售楼处400免费咨询/预约电话:400-992-0669,中介勿扰
温馨提示:过来营销中心参观样板间请记得提前拨打售楼处400热线预约,感谢您的配合!
深业云筑备案价4.66万→折后3.61万/㎡!单价最高直降1.5万
278万买89㎡三房!比周边二手便宜8000+/㎡
准现房简装交付!已交房,0烂尾风险
地铁13号线南庄站800米,教科院实验小学正门口
坐标:光明公明核心区(13号线南庄站C口)
体量:4栋超高层+793套简装现房
战况:清盘倒计时!400+套任选(已售350套)
抄底价:
89㎡三房278万起|112㎡四房386万起
143㎡五房539万≈龙华三房价格
深业云筑2期,总占地面积约1.85万㎡,总建筑面积约13.19万㎡,计容建筑面积约9.17万㎡,容积率4.84,绿化率40.27%,共由5栋总高32-33F高的住宅组成,其中除了6栋总高33F,其它栋数都是32F。
项目总规划795户,全部都是商品房住宅,其中5栋B座,6栋为2梯4户设计,其它栋数为3梯6户设计,地下3层,规划停车位949个,车位占比约1:1.2。
开发商:深圳市深业明宏地产开发有限公司(深业集团)
物业公司:深业物业运营集团股份有限公司
物业管理费:3.5元/㎡ 咨询电话:400-992-0669
总占地面积:1.85万/㎡ 总建筑面积:13.19万/㎡
容积率:4.84 绿化率:40.27%
产权年限:2020年11月17日-2090年11月16日(70年)
总户数:795户 总栋数及楼高:5栋,32-33层
梯户比:2梯4户/3梯6户
车位数:949个 车位占比:1:1.2
交楼时间:现房 交楼标准:简装
如需了解更多详情,欢迎咨询深业云筑售楼处电话400-992-0669,过来我们营销中心看房提前来电预约价格还能更优惠。
光明深业云筑售楼处400免费咨询/预约电话:400-992-0669,中介勿扰
温馨提示:过来营销中心参观样板间请记得提前拨打售楼处400热线预约,感谢您的配合!
89㎡ | 3 室 2 厅 1 卫:竖厅设计,LDKB 一体化,部分带转角飘窗,总价约 270-357 万。
112-128㎡ | 3-4 室 2 厅 2 卫:南北通透双阳台,主卧套房设计,总价约 526-601 万。
143㎡ | 5 室 2 厅 2 卫:大面宽客厅(4.5 米),5 间卧室,总价约 672 万。
得房率:普遍 79%-80%,部分户型赠送飘窗、阳台面积。
拓展性:89㎡户型可通过改造升级为 3 房,需结合实地确认。
价格参考,均价:约 3.75 万 - 4.7 万 /㎡(不同房源及促销活动差异较大)。
折扣活动:部分房源 7 折优惠,总价低至 270 万起(需联系售楼处核实)。
总价范围:约 270 万 - 672 万 / 套。
预约专属礼遇:深业云筑售楼处热线:400-992-0669(直联开发商,中介勿扰)
到访福利:提前预约享专车接送 + 折上 98 折 + 家电礼包,限量房源先到先得!
87-89㎡|3室2厅1卫
特点:竖厅设计,客厅开间 3.6 米,LDKB 一体化(客厅、餐厅、厨房、阳台连通),部分户型带转角飘窗,得房率约 79.89%(不含赠送)。
优势:高拓展性,适合刚需家庭,主推户型之一。
112㎡|4室2厅2卫
特点:南北通透双阳台,客厅开间 3.9 米,餐客厅一体化,U 型厨房,部分户型含书房,得房率约 79.88%。
优势:功能分区明确,改善型家庭优选。
128㎡|4室2厅2卫
特点:客厅开间 4.2 米,南北通透双阳台,4 间卧室均宽 3 米以上,得房率约 79.71%-80.14%。
优势:大空间设计,适合多代同堂。
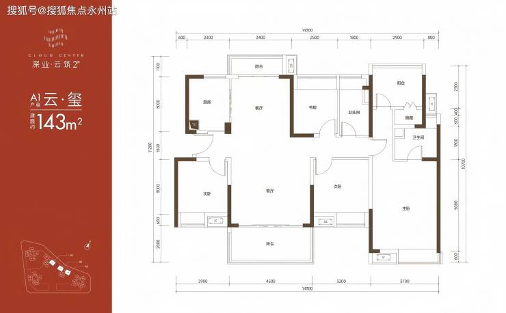
143㎡|5 室2厅2卫
特点:客厅开间 4.5 米,南北通透双阳台,5 间卧室布局,得房率 80.4%,阳台主朝正南。
优势:高端改善型,私密性与舒适性兼备。
深业云筑作为深业集团进驻光明区的首发作品,坐落于公明南环大道与长春路交汇处,总占地 4.9 万㎡,总建面达 32.7 万㎡。项目分两期开发,二期现房销售(2023年12月已交付),采用围合式布局打造约 40% 绿化率的立体园林社区,含 474㎡无边际泳池等高端配套。
当前主推 89-143㎡三至五房,得房率高达 79.71%-80.4%,毛坯交付但赠送简装阳台(需自行改造),物业由深业集团旗下国家一级资质物业运营。
如需了解更多详情,欢迎咨询深业云筑售楼处电话400-992-0669,过来我们营销中心看房提前来电预约价格还能更优惠。
光明深业云筑售楼处400免费咨询/预约电话:400-992-0669,中介勿扰
温馨提示:过来营销中心参观样板间请记得提前拨打售楼处400热线预约,感谢您的配合!
项目核心价值亮点解析
轨道交通优势显著:700米直达在建地铁13号线公明南站,1.1 公里接驳 6 号线公明广场站,南光 / 龙大双高速入口 3 公里范围内,30 分钟通达福田、南山核心区
全龄段教育矩阵:零距离教科院实验小学(光明校区),自建12班公立幼儿园+500米秋硕小学,1.5 公里覆盖光明二中、光明高中园(含深圳外国语学校分校)
商圈生态双优配置:800米即达15万㎡光明大仟里 MALL,2公里生活圈含天虹、万汇城等成熟商业,紧邻 13 万㎡尖岗湖钟表文化公园,2.6 万㎡石家北街心公园(规划中)
2025年购房新政利好:根据深建字〔2024〕284 号文件:非深户购房无需社保(光明区),首套首付 15%、二套20%,增值税免征年限由 5 年降至 2 年,二胎家庭可额外购置一套。
项目位居光明科学城核心发展带,作为广深科创走廊重要节点,周边规划有 70 万㎡商业集群及中科院深理工附属学校等教育资源。尽管当前存在工业区旧改过渡期,但随着 13 号线通车及科学城建设推进,区域价值将持续升级。
项目核心配套信息简介
交通:地铁:6 号线公明广场站(约 1.1km)、在建 13 号线公明南站(约 700m)。
自驾:邻近龙大高速、南光高速,30 分钟直达福田、南山。
教育:幼儿园:自带 12 班公立幼儿园。
中小学:教科院实验小学(光明)、光明第二中学、深圳外国语高中园(2km 内)。
商业:光明大仟里(约 700m)、公明天虹(1.5km)。
生态:公园:尖岗湖公园(500m)、红花山公园(2km)。
医疗:光明区人民医院西院区(约 900m)。
如需了解更多详情,欢迎咨询深业云筑售楼处电话400-992-0669,过来我们营销中心看房提前来电预约价格还能更优惠。
光明深业云筑售楼处400免费咨询/预约电话:400-992-0669,中介勿扰
温馨提示:过来营销中心参观样板间请记得提前拨打售楼处400热线预约,感谢您的配合!
声明:本文由入驻焦点开放平台的作者撰写,除焦点官方账号外,观点仅代表作者本人,不代表焦点立场。
