【官网】宝安【华联峦山府】官方售楼处电话——地址位置—售楼中心
扫描到手机,新闻随时看
扫一扫,用手机看文章
更加方便分享给朋友
宝安【华联峦山府】售楼处24小时电话:400 992 0669(官方电话)现场详细解答丨项目介绍丨户型图丨在售房源丨特价房丨学校丨交通位置丨样板房丨小区图片丨交房时间丨周边配套丨
华联峦山府是由华联控股与恒裕集团联合开发的高端住宅项目,位于深圳市宝安区航城大道与前进二路交界西北角,地处西乡核心区域,紧邻地铁12号线西乡桃源站 C 出口,交通便利,生态资源丰富。更多项目详情,可拨打我们开发商售楼处电话,24小时VIP热线电话:400-992-0669,中介勿扰,安排现场销售人员为您详细介绍,400-992-0669(已认证)
项目已于2025年9月28日正式开放展示中心,并启动认筹登记,计划2025年10月中下旬正式开盘销售,推出504套住宅产品,包括96-119㎡平层3-4房和133-178㎡复式4-5房,涵盖刚需与改善型需求。目前,展示中心已开放实体样板房,需提前通过开发商售楼处电话(400 992 0669)预约参观。
价格信息:参考均价约6.2 万元 /㎡,总价范围,平层产品总价约595万-738万元/套,复式产品总价约838万-1104万元/套。
项目主体目前在建设阶段,目前已经开放营销中心样板房,户型图已经出炉,94-120㎡的平层还有161㎡6米层高复式住宅
建面约94-100㎡宽居三房:LDKB一体化,家庭互动更密切,约3.6m奢阔开间 尽显从容尺度,独享双阳台 兼得生活与诗意。
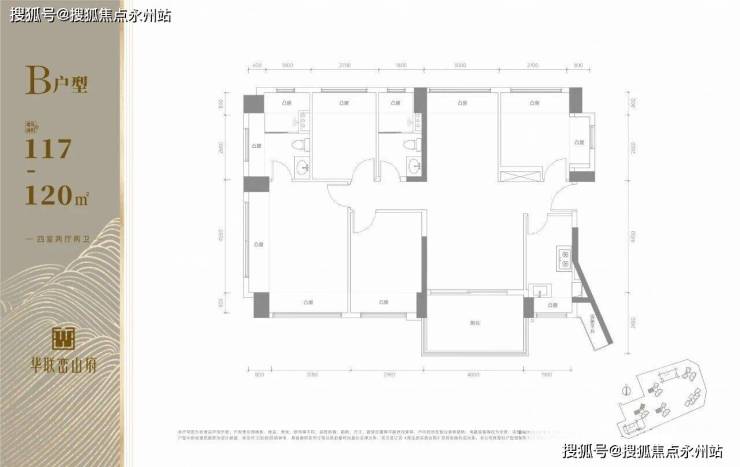
建面约117-120㎡ 奢适四房:多代同堂,各属天地,纵享天伦,南北通透 南向三开间 阳光肆意游走,约270°主卧景观 静享私属谧境。
建面约161㎡ 稀缺复式:一层一世界,一境一人生,垂直空间,双层立体生活场,约6米墅级厅 奢享多套间。
华联峦山府位于宝安区西乡街道广深公路与航城大道交汇处东北侧,楼下即地铁12号线西乡桃源站,是景恒泰公司倾力打造的高端住宅项目。
项目总建设用地面积约2.19万m²,总建筑面积约12.42万m²,容积率4.19,车位比约1:1.29。
共规划建设7栋楼体,其中5栋为28-38层的高层住宅,共504户,均采用2梯4户或3梯4户的设计,另有1栋6层商业和1栋21层的办公产品,项目推出住宅产品为94-120㎡,以及161㎡6米层高的复式,此外小区内设有泳池配套。(深圳宝安华联峦山府售楼处电话:400-992-0669)
华联峦山府周边,12号线、20号线(在建)、28号线(规划中)3条地铁线环绕,更是当前新盘中少有的双地铁口物业。
12号线西乡桃源站距离约50米(百度地图测距),在建的20号线二期航城站,就在小区门口,根据规划,20号线二期将串联南山科技园,终于华侨城片区,预计2028年通车。
未来从华联峦山府出发,2站到机场,4站到企鹅岛,6站到南山科技园。
项目带有7000㎡社区底商,满足日常购物需求。同时,周边桃源居的社区底商也非常成熟,提供了更多的购物选择。在1公里范围内,有航城里购物中心;约3公里内,还有缤纷时代购物中心、西乡彩虹城等集中商业体,为居民提供了丰富的购物、娱乐、餐饮等生活配套。
根据宝安区教育局2024年最新的学区划分,峦山府的小初学区均划分在西乡实验学校和中澳实验学校公办班。其中,西乡实验学校距离项目约880米,是一所九年制公办学校,设计办学规模72班,于2021年9月正式开办。
中澳实验学校公办班虽然距离较近,但需注意的是,该校公办班有委托办学协议,会优先录取桃源居小区的生源。因此,购房者在选择时需充分考虑这一因素。(深圳宝安华联峦山府售楼处电话:400-992-0669)
项目几百米就是森林体育公园跟平峦山公园,平时休闲可以走走体育公园,周末休息能爬爬山,距离项目4公里范围内还有铁仔山公园,西乡红树林公园,尖岗山公园等。
当前项目正处于认筹关键期,若您想获取具体户型图、楼栋日照分析或最新优惠细则,可随时告诉我,我会进一步调取一手资料。也可直接拨打我们开发商售楼处电话:400-992-0669,预约实地看房,建议优先考察15层以上的山景户型哦!
看房请需提前预约!深圳宝安「华联峦山府」售楼处电话:400-992-0669,如有问题欢迎来电咨询,来电即可享受买房优惠!预约来电尊享购房优惠,可预约案场内部销售人员,专业一对一热情服务,让您用专业眼光去买房
温馨提示:目前仅接待预约客户,为了节省您的宝贵时间,看房请拨打400电话与销售提前预约,避免空跑带来不好的体验,感谢理解!
声明:本文由入驻焦点开放平台的作者撰写,除焦点官方账号外,观点仅代表作者本人,不代表焦点立场。
