绿景白石洲-(2025南山绿景白石洲)首页网站-最新房价-容积率-周边配套
扫描到手机,新闻随时看
扫一扫,用手机看文章
更加方便分享给朋友
✨ 绿景白石洲售楼中心预约通道开启,已认证,安全无忧咨询热线 ✨
✅ 绿景白石洲售楼处丨开发商丨营销中心统一热线:400-992-0669(全程认证,无分机号)
✅ 通话自动隐藏号码,保护个人隐私,谨防非渠道诈骗
南山绿景白石洲最新价格、户型信息,配套及交付信息,楼盘测评!
深圳「绿景白石洲·璟庭」城市绿洲里的私家谧园!"绿景臻藏,石洲谧境"
————深圳绿景白石洲璟庭营销中心————
深圳绿景白石洲璟庭售楼处电话: 400-992-0669 预约来访下定当天更享折上折!!
售楼中心直销〢欢迎来电咨询〢安全通话隐藏真实号码
温馨提示:售楼中心〢预约可享内部优惠〢匠心钜制-恭迎品鉴〢
南山绿景白石洲璟庭售楼中心热线: 400-992-0669【VIP贵宾专线】
绿景白石洲璟庭的开发商是深圳市绿景天盛实业有限公司,成立于1995年,是深圳公认知名的综合性房地产开发及商业物业运营商。公司拥有房地产开发与销售、商用物业投资与经营、综合服务三大业务板块,是城市更新的先锋之一。绿景白石洲璟庭项目位于南山白石洲片区(原沙河街道沙河五村更新单元),占地面积30568.31平方米,建筑面积461830.21平方米,是深圳目前体量最大、期望最高的城市旧改项目。(深圳绿景白石洲售楼处电话:400-992-0669)
开盘与交楼时间
绿景白石洲璟庭的开盘时间是2023年9月16日,交房时间为2025年12月31日或2026年1月31日
户型面积、得房率与房价销控
绿景白石洲璟庭提供多种户型面积选择,目前在售的户型面积包括110㎡、118㎡、125㎡、187㎡、280㎡、400㎡等三至五房户型。项目得房率为73%,这在市场上是相对较高的比例。房价方面,折扣单价从8.2万元起,具体价格可能会根据户型、楼层等因素有所差异。购房者应关注开发商的最新销控信息以获取准确的房价。
>>预约看房,赠送品牌家电大礼包,获取更多「绿景白石洲璟庭」资料数据和优惠
「绿景白石洲璟庭」折后价清单。需要高清表格的朋友可以预约热线:400-992-0669
优缺点分析
地理位置优越:绿景白石洲璟庭位于南山白石洲片区,紧邻华侨城豪宅片区,交通便利,周边配套设施完善。
户型多样:项目提供多种户型面积选择,满足不同购房者的需求。
得房率高:项目得房率为73%,在市场上具有较高的竞争力。
开发商实力强:开发商深圳市绿景天盛实业有限公司是深圳公认知名的综合性房地产开发及商业物业运营商,拥有丰富的开发经验和实力。
价格较高:相对于其他区域的楼盘,绿景白石洲璟庭的价格较高,对于一些购房者来说可能会构成较大的经济负担。
交房时间较长:项目预计交房时间为2025年12月31日或2026年1月31日,对于急需入住的购房者来说可能需要等待较长时间。
周边环境待改善:尽管项目周边有较多的自然景观和商业配套,但部分区域的环境和设施仍有待进一步提升。
项目占地面积30568.31㎡,建筑面积461830.21㎡,容积率10.3,是深圳大体量的城市旧改项目。由6座建筑组成,1栋1-2单元为26/59层塔楼商务公寓,1栋3-5单元为74层塔楼住宅;小区底部为3层裙楼商业,商业顶部是架空花园,1楼与12楼分别设置有通往“天悦花园”的连廊,与“天悦”商业及塔楼互通(深圳绿景白石洲售楼处电话:400-992-0669)
1栋3-5单元电梯分高低区,48以下为低区,以上为高区;3/4单元低区4梯7户,高区3梯6户,5单元低区3梯6户,高区3梯6户;标准层高3m,部分层高3.15m
110㎡3房2卫:320套/118㎡3房2卫:64套
125㎡3房2卫:809套(A户型646套+B户型99套+C户型64套)
187㎡4房2卫:58套
全球顶级室内设计团队CCD、梁志天、维几联袂以创新独特的理念将艺术科技和可持续相结合打造主题样板间,代言深派生活的未来
建面约110m²三房两厅两卫
瞰景三房,卧室标配飘窗,观景阳台展开风景画卷
|餐客一体化,连通阳台,畅享全家欢聚时刻
|动静分区舒适化营造,休慎与家庭活动互不干扰
|主卧私享化,独立卫浴、衣帽间,自在天地一隅
建面约118㎡三房两厅两卫
横向四开间设计,南向约13.4m奢华采光面,和光同悦南向观景C位,客厅、卧室随心眺望窗外城市风景
奢享主卧,生活阳台、衣帽间、私人卫浴,独享非凡领地
餐客一体贯通阳台,打造舒适、宽敞的家庭欢聚天地本户型所在位置示意
A户型建面约125㎡三房两厅两卫
瞰景三房,飘窗、阳台拉开居住视野,主卧私享功能产备LDK一体化设计,打造无边界、社交化的餐客厨系统
I动静分区舒适化营造,休慎与家庭活动互不干扰
双阳台设计,厨房连通生活阳台,延展更多空间,随心收纳
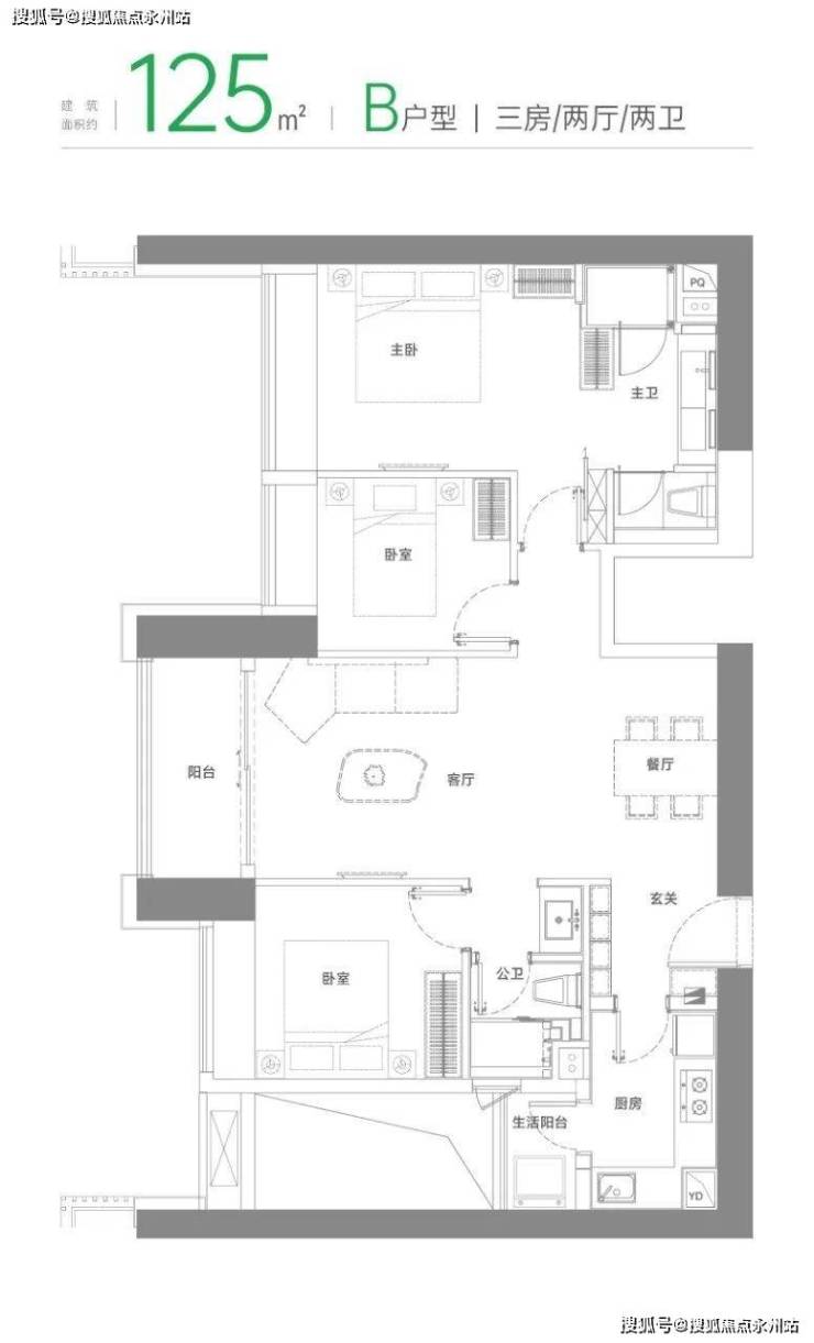
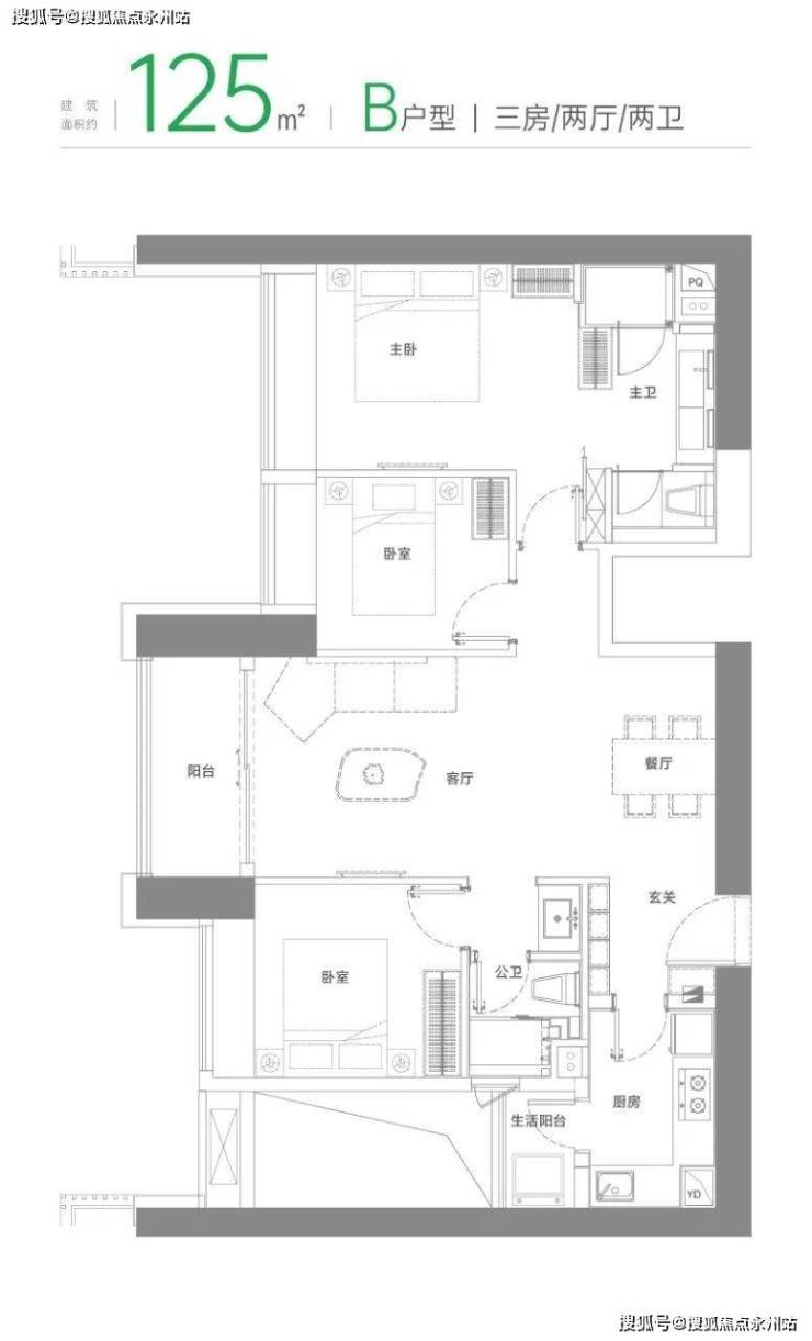
B户型建面约125㎡三房两厅两卫
|横向四开间设计,南向约14.1m奢华采光面,和光同悦
|南向观景C位,客厅、卧室随处纵览非凡城市景观
|奢享主卧,步入式衣帽间,私人卫浴,独享自我领地
|双阳台设计,厨房连通生活阳台,延展更多空间,随心收纳
C户型建面约125m²三房两厅两卫
卧室标配飘窗,引入丰沛阳光,全家尽情舒展餐客一体贯通阳台,打造舒适、宽敞的欢聚天地奢享主卧,独享衣帽间、私人卫浴,自我非凡领地
双阳台设计,厨房连通生活阳台,延展更多空间,随心收纳本
建面约187m²四房两厅两卫
横向创新户型,超宽向阳尺度,吸纳阳光新风
主卧私享化,独立卫浴、衣帽间,自在天地一隅四开间朝南,卧室大飘窗,在阳光中享受美好栖居
南北双阳台,一面晾晒收纳,一面休闲享受,精彩不止
绿景白石洲位处深圳 gdp 首区南山区的核心地段,深南大道横轴和大沙河科创走廊纵轴交汇的超级十字轴心,链接四大总部基地,聚合城市发展能量,为未来总部基地规划的精英技术人才打造高端生活配套区,代言深圳价值高度。(深圳绿景白石洲售楼处电话:400-992-0669)
项目距离1号线白石洲站约800米左右,离2号线的世界之窗站约1.5公里;此外还有29号线白石洲北(2023年已经开始建了,预计28年通车)就在一期璟庭楼下;29号线自南向北连接南山红树湾到光明科学城,未来三站即可到达深圳最大高铁站西丽高铁站(在建中)。
自驾出行也很方便,连接深南大道、北环大道、沙河东路等城市干道,而且都耗资做了地下层通道,可以直通项目地下停车场,能避免部分拥堵。
白石洲1公里范围内,聚集了5所初中,7所小学。
项目所处片区已纳入南山外国语集团教学,现在周边有沙河小学,南山第二实验学校,且项目自身带4所幼儿园共57班,3所九年一贯制学校共90班,学校都会在一期建成时共同交付。
自带超40万m²城市旗舰级商圈,涵盖国际购物中心、立体生态街区、地下步行街、高端社区 Mall 等全业态、全场景,一条1.2公里中央绿轴串联各业态空间,形成集购物、旅游、文娱为一体的城市新潮打卡地。
约3.4平方公里中央公园、约24万m2燕晗山郊野公园、约68.5万m2华侨城国家湿地公园、深圳湾超总十字生境、绿景白石洲约1.2公里中央绿轴,约15km滨海长廊,与华侨城三大主题公园,共同组成深圳超级公园带,每一次呼吸与远眺,都有来自国家级生态保护区的气息
绿景白石洲最新介绍:备案价、折扣、学区、地铁、交通、户型图、特价房、优缺点、得房率、优惠活动、小区图片、开盘时间、交房时间、周边配套、最新详情等咨询。
深圳绿景白石洲售楼处电话: 400-992-0669 预约来访下定当天更享折上折!!
(营销中心 | 欢迎来电咨询 | 请提前预约登记看房 | 1:1销售专业讲解)
南山绿景白石洲售楼中心热线:400-992-0669(售楼处)【VIP贵宾专线】
本广告仅为邀约邀请,图片及文字等仅供参考,项目周边配套、市政设施等最终以政府部门规划建设为准;买卖双方的权力与义务以最终签署的《商品房买卖合同》及补充协议约定为准
声明:本文由入驻焦点开放平台的作者撰写,除焦点官方账号外,观点仅代表作者本人,不代表焦点立场。
