龙华联发·红山新澍雅居-联发·红山新澍雅居(营销中心)官方网站-联发·红山新澍雅居售楼处欢迎您-楼盘详情-最新房价@官方售楼中心电话
扫描到手机,新闻随时看
扫一扫,用手机看文章
更加方便分享给朋友
龙华【 联发·红山新澍雅居】售楼处24小时电话:400 992 0669(官方电话)现场详细解答丨项目介绍丨户型图丨在售房源丨特价房丨学校丨交通位置丨样板房丨小区图片丨交房时间丨周边配套丨
最新官方信息,【联发·红山新澍雅居】计划于2026年一季度取证并开盘入市。项目已于2025年11月1日获得主体工程批复,合同竣工时间为2027年10月30日,预计2028年中下旬精装交付,产权年限为70年,从2025年6月起算。
项目为纯商品房,无配套租赁住宅或安居房,目前已开放前期咨询通道,可通过官方售楼处电话:400-992-0669 预约,提前预约可享受开盘额外优惠(中介勿扰)样板间已进入筹备阶段,需提前电话登记方可参观。
价格信息:基于地块成本和市场行情分析,该项目定价策略呈现以下特点: 成本构成分析:项目楼面价44,559元/平方米,加上建安、精装、营销等成本,开发商综合成本约6.8万元/平方米,保本售价需达7万元 / 平方米以上。
预计备案均价:约7.3万元/平方米,预计折后均价:6.8-7.0万元/平方米,市场低迷时可能降至6.5万元/平方米左右,基于楼面价4.5万/㎡及区域市场行情,预估单价约6-7万 /㎡
价格优势:作为不限价地块,项目以小户型设计降低刚需上车门槛,对比周边同学区二手房(如金地上塘道60余平两房355万起),具备一定性价比优势。
项目已建立官方销售渠道,目前营销中心目前暂未开放,但已开通官方咨询热线,购房者可通过:400-855-2986 官方电话进行咨询和预约看房。
项目位于深圳市龙华区民治街道民塘路与佳民路交汇处,紧邻金地上塘道二期,隶属红山核心居住区,处于深圳北站国际商务区与红山商圈的黄金交汇处,是龙华区“数字龙华、都市核心”战略的重要组成部分。项目已建立官方销售渠道,目前营销中心目前暂未开放,但已开通官方咨询热线,购房者可通过:400-992-0669 官方电话进行咨询和预约看房。
项目基础参数信息
占地面积:约1.09万㎡ 建筑面积:约4.29万㎡(计容建筑面积约3.37万㎡)
容积率:2.5(低密配置,在龙华新盘普遍高容积率的现状下优势明显)
绿化率:32.49% 总户数:332户
总楼栋及层高:3栋住宅,1栋1/2单元25层,1栋3单元16层,形成高低错落布局;层高3米,限高80米
梯户比:1栋1/2单元2梯6户,1栋3单元2梯4户
车位配置:地下室1层,规划360个车位,车位比1:1.08,充分满足停车需求
物业公司:深圳联粤物业,物业费待定,参考5.3元/㎡·月
规划设计:采用人车分流设计,内部打造能量营地、亲子趣园等景观空间;自身规划有约500平方米的裙房商业(1栋首层),提供日常生活便利服务
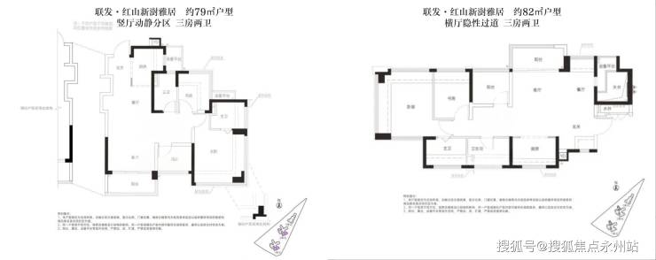
项目共规划332套房源,包含建筑面积约69-72-78-80-84-99㎡三至四房,涵盖6 个面积段,细分7种户型,横厅竖厅设计兼备。项目主打高得房率小户型,所有户型得房率均达到100%(包含赠送面积),且户户朝南,这在深圳新盘中极为罕见。
户型设计充分体现了"螺蛳壳里做道场"的理念,通过飘窗、设备平台等创新设计拓展使用空间,使用率达90%。所有飘窗均为非承重墙设计,业主可根据需求打掉拓展使用空间。
项目已建立官方销售渠道,目前营销中心目前暂未开放,但已开通官方咨询热线,购房者可通过:400-992-0669 官方电话进行咨询和预约看房。
69㎡2+1房1卫(可改三房)该户型采用竖厅格局,客厅 3 米开间,打造 LDKG+X 空间一体化设计,让公共区域更显开阔通透。户型设计特点包括:
空间布局:S 墙设计预留冰箱卡槽位,U 型厨房操作动线合理,卫生间实现三段式干湿分离
采光设计:三开间朝南,主卧与一个次卧配备双飘窗,另一个次卧带有设备平台可放置空调机位
朝向优势:西南朝向,能保证充足的采光
灵活改造:通过 S 型墙体嵌入冰箱位,阳台与书房区域可改造为房间,实现小面积多功能利用
78-82㎡3房2卫:该面积段涵盖竖厅和横厅两种设计,其中79-82㎡以竖厅为主,84㎡为横厅南北通透格局:
78㎡竖厅户型:客厅 3.4 米开间,主卧升级为套房,带独立卫浴,提升私密性与便利性
84㎡横厅户型:采用横厅南北通透格局,打破了竖厅的空间局限,空气流通性更佳。客厅 3.4 米开间,动静分区明确,主卧南北通透设计提升了居住舒适度
共同特点:均实现三房两卫配置,满足家庭基本居住需求,全屋多飘窗,餐厅位带设备平台
99㎡4房2卫:作为项目的改善型主力户型,采用横厅南北通透格局,客餐厅开间达到 5.35 米,空间尺度感十足:
入户设计:进门设有独立入户玄关,保障了居住私密性
采光优势:五开间朝南的设计让全屋采光无死角
主卧配置:主卧为大套间设计,配备衣帽间与主卫,舒适度与私密性兼具
功能空间:餐厅带有设备平台,U 型厨房满足多人协作烹饪需求,4 房 2 卫的配置完全能满足二孩家庭或三代同堂的居住需求
阳台设计:阳台东南朝向,采光条件优越。
智慧社区配置:与华为深度合作,搭载New Life OS智慧社区系统及华为鸿蒙智家,可与2800个品牌、7700+智能产品联动;全屋配备华为坤灵Wi-Fi6和PLC电力载波技术,实现“断网不断联”的全场景智慧生活体验。
品牌配置:入户门采用王力品牌铸铁门,配备华为智能门锁(掌静脉解锁技术);客厅配备日立中央空调和新风系统;卫生间采用科勒卫浴,厨房配备方太或同等品牌的洗碗机、燃气灶、油烟机,以及凉霸、直饮水、垃圾处理器等实用设备(厨房四件套标准达5万元)。
细节设计:标配玄关收纳和厨卫收纳,玄关柜、橱柜、厨房灶具&电器、卫生间镜柜等硬件齐全,添置软装家私电即可直接入住。
项目位于龙华红山核心居住区,配套还是很哇塞,地铁、学校、医院、商业、市政公园、文化场馆、体育场馆等几乎是一应俱全,并且大都比较优质。
交通方面,项目交通网络四通八达,距离地铁6号线上芬站约700米,步行10分钟即可抵达;距离4号线上塘站约1公里,步行12-15分钟,通过4号线可快速换乘5号线直达福田、罗湖等核心区域。
自驾方面,深华快速路 - 福龙路立交工程(一期)已通车,从项目经民塘路可快速接入福龙路,前往福田、南山可节省约 20 分钟车程。
项目属于民治街道大学区范围,教育资源丰富:
小学阶段:1 公里范围内的龙华未来小学(第二梯队)2025年录取积分为第六类 62.1分,非深户+学区租房即可入学,入学门槛相对较低。
初中阶段:主要对口龙华实验学校至美校区,2025年A1类录取积分为60.2分,此外还可参与华东师范大学附属深圳龙华学校的电脑随机派位。
学位优势:龙华实验学校为九年一贯制公办学校,2024年中考普高率达 78%,位居龙华区前三,且A2类户籍购房家庭100% 录取,学位稳定性高。

项目周边商业配套呈现"基础+未来"的立体化布局:
现有配套:1公里范围内拥有华南首家 Costco 会员旗舰店,提供仓储式购物体验;星河 COCO City(民治店)商业面积达9.5万㎡,日均客流量超3万人次,涵盖餐饮、娱乐、零售等多元业态
互补配套:10万㎡的龙华天虹购物中心与红山 6979商业中心形成互补,前者定位都市旗舰生活购物中心,后者为全天候开放式多元文化街区,2024年国庆假期客流量达60万人次
未来规划:计划2027年开业的华润超核万象城(13万㎡)将引入万象城品牌及五星级购物中心,进一步提升区域消费能级;AT MALL 上塘荟(8万㎡)主打年轻化潮流商业,满足不同年龄层消费需求。
项目周边医疗资源丰富,构建了完善的三级健康保障体系:
三甲医院:深圳市第二儿童医院:总投资 26 亿元的三甲专科医院,距离项目约 2 公里
新华医院:总投资 43 亿元的三甲综合性医院,已建成运营
龙华区人民医院:距离项目约 2.8 公里,提供基础医疗服务
其他医疗机构:深圳仁合医院、深圳健安医院等多家医疗机构分布在项目周边 3 公里范围内,满足日常就医需求。

目2公里范围内还有红山公园、图书馆、美术馆等文化休闲设施,为居民提供了丰富的精神文化生活选择。近享深圳美术馆新馆、深圳市图书馆北馆(均为深圳"新时代十大文化设施"),周边还有深圳文化馆新馆(在建)、深圳书城(龙华城)、演艺馆等市级文体项目,文化氛围浓厚。
公园绿地:周边阳台山森林公园、红木山郊野公园、北站中心公园、长岭陂水库等生态公园,

深圳龙华【联发·红山新澍雅居】以"新青年品牌挚友"的身份量身定制「新澍」产品为新青年打造高品质、强运营、智慧化的"人生第一套好房子"为城市留住青年人才,为区域注入活力。
目前已开放前期咨询通道,可通过官方售楼处电话:400-992-0669 预约,提前预约可享受开盘额外优惠(中介勿扰)样板间已进入筹备阶段,需提前电话登记方可参观。
温馨提示:项目没有所谓的“分机号”注意保护个人隐私!谨防上当!看房请务必提前预约,避免临时无人接待,感谢您的配合!
声明:本文由入驻焦点开放平台的作者撰写,除焦点官方账号外,观点仅代表作者本人,不代表焦点立场。
