鸿荣源尚云售楼处电话→24小时热线电话→售楼中心首页网站→楼盘百科详情
扫描到手机,新闻随时看
扫一扫,用手机看文章
更加方便分享给朋友
最新消息:位于龙华-民治片区的《鸿荣源-尚云》项目已突发拿证入市,鸿荣源尚云二期此次推612套住宅,户型建面约82-89平3房,折后总价约432万起就能上车龙华中心3房2卫!预计2025年交房,今年买明年即可入住,即买即享受,此次,价格一出就给了我们很大的惊喜,诚意十足。备案均价6.11万/平,折后均价5.75万/平,折后总价约432万起,折后计算下来:2栋二单元折后价格区间:82平3房2卫:总价432-468万,89平3房2卫:总价487-551万,2栋一单元折后价格区间:82平3房2卫:总价467-503万89平3房2卫:总价514-566万。
鸿荣源尚云花园采用的是直接在售楼处进行销售,并且通过网络平台进行推广。
龙华鸿荣源尚云花园开发商售楼处咨询/营销中心预约热线:400-992-0669(中介勿扰)
鸿荣源尚云花园,位于龙华区民治街道工业路与龙华人民路交汇处西南侧,4号地铁线“龙华站”距离约1.2公里,项目东北侧是鸿荣源壹城中心,东侧是丰润花园,西侧金地宸峯府、深圳艺术高中民治学校,南侧挨着玉华花园。
项目总占地面积约2.68万㎡,总建筑面积约23.6万㎡,计容建筑面积约20.87万㎡,容积率7.78,绿化率40.01%,共分2个地块开发,共由6栋18-57F住宅+2栋27-31F写字楼组成,南北区有风雨连廊连接,总规划1878户(可售商品房1278套),停车位1521个(占比1:0.81)。
其中A823-0919地块(北地块),总占地面积约1.53万㎡,总建筑面积约11.3万㎡,计容建筑面积约10.87万㎡,容积率7.1,共由3栋住宅组成,其中2栋1单元住宅54F,2栋2单元住宅57F,2栋3单元公共租赁住房55F,另外规划1栋写字楼31F,总规划1212户(其中商品房612套,公共租赁住房600套)。
其中A823-0920地块(南地块),总占地面积约1.15万㎡,总建筑面积约14.3万㎡,计容建筑面积约9.97万㎡,容积率8.67,共由3栋住宅组成,其中3栋1单元住宅56F,3栋2单元住宅55F,3栋3单元住宅18F,3栋4单元办公27F,总规划666户。
鸿荣源尚云花园_售楼处营销中心_Vip Tel:400 992 0669 (中介勿扰)
项目位于龙华区民治街道上芬社区(一路之隔为龙华街道景新社区辖区)龙华中心老城区,上芬社区工业路与人民路交汇处西南侧,毗邻龙华壹城中心三区,与壹方天地C区商业仅一路之隔,距离地铁五期规划的25/27号线交汇站步行约450米左右。鸿荣源尚云整体建筑色彩以深咖和米色为主,以玻璃幕墙搭配铝板线条组成,营造了明亮、轻盈、雅致的现代高端形象,颜值不亚于某些豪宅。
《鸿荣源·尚云花园》项目位于龙华商业中心城市更新单元的南二片区,与在建的金地项目“宸峯府”相邻,与壹方天地C区商业仅一路之隔,占地面积约2.68万㎡,规划总建面约34.94万㎡,计容积率建面约24.88万㎡,涵盖商品住宅、公共租赁、裙楼商业、公共配套等业态。鸿荣源售楼处营销中心_Vip Tel:400 992 0669 (中介勿扰)
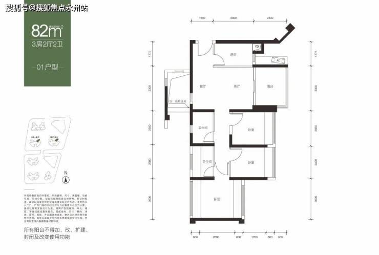
鸿荣源尚云花园正式加推北区2栋1/2单元,共612套房源,面积82㎡的3房2厅1卫,89㎡的3房2厅2卫户型,82㎡的3房,折后均价在432-503万区间,89㎡的3房,折后总价在487-566万区间,在2025年12月之前带精装交房。
83㎡的3房2厅2卫户型,设计的是竖厅南北通透格局,客厅3.3米开间,3个卧室分别是3米/2.6米/2.4米的宽度,主卧南北通透设计,L型厨房,得房率:87.94%(包含赠送)01户型是西北朝向,07户型是东北朝向。
89㎡的3房2厅2卫户型,设计的是经典竖厅格局,客厅3.4米开间,三开间朝南,3个卧室分别是3米/2.8米/2.4米的宽度,L型厨房,得房率:87.88%(包含赠送),02-03户型是东南朝向,05.06户型是西南朝向。
交通配套:目前距离最近的4号地铁线“龙华站”约1.2公里,深大城际“民治北站”距离约2公里,25号地铁线“景龙站”(在建)距离约500米。周边布局4号线,规划27/25/22号线4条地铁线
33号线-深大城际(建设中):龙胜站出发,约20分钟即可直达宝安机场。
教育配套:根据2023年龙华区教育划分,小学学区划分在龙华区第二实验学校小学部,人民路学校小学部,华育小学,作为小学共享学区;中学学区划分在人民路学校初中部,龙华区第二实验学校初中部,作为初中共享学区;
另外值得一提的是家门口的深圳艺术高中民治学校(在建),该校是一所54班学校,小学36班,初中18班,将提供2520个学位,小学1620个,初中900个,未来也将划入尚云花园学区范围内。
商业配套:享有壹城中心的超级商业配套,壹方天地约60万㎡的集中式商业,规划有A、B、C、D、E五大主题商业街区,超600家高端品牌云集于此,满足居民日常休闲、购物、娱乐需求的同时,也是龙华目前体量最大、最优质的的集中式购物中心,已成为深圳标志性商圈及网红打卡地。项目内部也设有约1.5万㎡的社区商业配套,包括超市、餐饮、幼儿园等生活服务设施。

从自住角度:这个打磨十年的项目,为龙华留住了很多500-700这个价位段的买家,高品质、商业定位不错、物业不错都是这个项目的优势,非常适合预算不高但是追求品质和新的年轻人,通勤距离也在可以接受范围内!
在深圳,一千多万的房子睡飘窗,是非常正常的一件事,基本已经成为了一个梗了!鸿荣源解决了这个问题,三个房间都不用睡飘窗!
当然追求舒适度、低密度或者希望地段更加便捷的人群,对这个项目还是会比较有抗性的,很多人可能还不知道自己喜欢什么样的房子,就被带节奏稀里糊涂地买了!
从投资角度:
龙华的房子升值比较困难,目前快成为共识了,因此如果有人说买这个项目能赚多少多少钱,英瑞认为是在割认知不够的韭菜,也容易被带到价值偏低的项目,推进火坑!
大多数人目前买到可以保值,就觉得是不错的了,这次尚云开盘价格并不高,是相对安全的,这个价位段选择太少了,能保证次新、商业、品质、地段不算太差等因素,就已经有一点点安全垫了!
龙华明治街道·鸿荣源尚云花园开发商售楼处电话:400-992-0669【营销中心】售楼处最新详情/地址/户型/价格
在售户型图丨项目介绍丨房源丨_周边配套丨详细解答—开发商售楼处电话_欢迎来电预约享受内部折扣_恭迎品鉴〢
声明:本文由入驻焦点开放平台的作者撰写,除焦点官方账号外,观点仅代表作者本人,不代表焦点立场。
