深业世纪山谷,深圳深业世纪山谷房价,楼盘户型介绍,配套学区,项目解析
扫描到手机,新闻随时看
扫一扫,用手机看文章
更加方便分享给朋友
南山【深业世纪山谷】开发商售楼处24小时电话:400 992 0669(开发商直销)现场详细解答丨项目介绍丨户型图丨在售房源丨特价房丨学校丨交通位置丨样板房丨小区图片丨交房时间丨周边配套丨
深业世纪山谷项目是一座位于深圳的城市综合体,为白石洲旧改单元,位于南山区沙河东路218号,占地面积约4.2万㎡,总建筑面积约38.9万㎡,容积率高达5.78。该综合体集住宅、公寓、酒店、商业和办公等多种功能于一体,具备了完善的生活配套和商业服务。
项目整体分两期开发建设,一期东地块包含1栋酒店+商务公寓、1栋保障房、2栋包含一、二单元的住宅;西地块包含2栋高约250米的超高层住宅,另有1栋约50层高的商务公寓。该项目二期将规划1栋住宅建筑,地上69层地下3层,建筑高度超过247米。
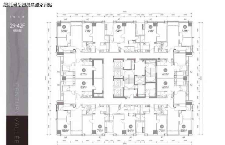
一期共两栋:分两座和ab单元,其中,1栋A座42层,结构高度149.5米高;1栋B座28层92.5米高;2栋1单元41层,结构高度137.65米高;2栋2单元41层,结构高度137.65米高。
二期由一栋4座组成,其中,3栋A座69层,结构高度243.55米高(装饰高度252米);3栋B座69层,结构高度243.55米高装饰高度252米)未来将成为南山最高的住宅建筑!;3栋C座50层,结构高度172.10米高;3栋D座4层16.9米高。
深业世纪山谷_售楼处_Vip Tel:400-992-0669 中介勿扰
二期回迁住宅:348套
3栋a座243.55米高,69层,回迁住宅54450平
3栋B座243.55米高,69层,回迁住宅54450平
3栋C座172.10米高,50层,商务公寓34061.14平
3栋D座16.9米高,4层,商务公寓2338.86平
『深业世纪山谷』公寓建面约67-87㎡湾岸资产,现房带精装
『深业世纪山谷』二期131-190㎡ 大平层产品
建面约 131㎡3.7米超大开间+双阳台设计
此户型为3.3m 层高经典竖厅双套房设计,主卧 270°大空间宽视野,可享首排高尔夫景观,客厅/主卧景观视野俯瞰双高尔夫一线果岭景观,在华侨城片区为绿视率最高产品。
景观面上,拥有3.7m 开间、生活双阳台,且所有功能空间无任何暗空间(卧室/卫生间/厨房全名可采光)
建面约 153 ㎡4.1米开间+7.1米客餐厅
此户型为坐北朝南,3.3m 层高经典竖厅 3 房 2 卫设计,主卧步入式鞋帽间;三面宽南向(客厅/主卧/次卧),景观视野俯瞰深圳湾海景。
所有功能空间无任何暗空间(卧室/卫生间/厨房全名可采光),景观面上,拥有4.1m 开间尺寸、生活双阳台,优于市面 95%以上公寓项目,进深 达到了7.1m大尺度客餐厅。
建面约 190 ㎡ 3.3米层高+7.3米生活双阳台
此户型为南北通透端头位,仅 45 套 拥有3.3m层高 并且为8.8m 大横厅设计。
奢阔 3 房两卫主卧 270°大空间设计,步入式鞋帽间,卫浴,景观(7.3m)、生活双阳台,俯瞰深湾湾景观。
【深业世纪山谷】大平层住宅,八梯三户,建筑面积约240-280-380㎡的3-5房户型
约240㎡3+1房3卫(3栋AB座A户型)横厅格局,阔绰3房+1保姆间,厨房带1个生活阳台,户型设计非常奢侈,但最小次卧在这户型里显得略小,西北朝向。
约280㎡3+2房4卫(3栋AB座B户型)横厅格局,阔绰3房+1小书房+1保姆间,厨房带1个生活阳台,户型设计非常奢侈,西南朝向。
约380㎡4+1房4卫(3栋AB座C户型)小区里最大的户型,豪华四梯设计,横厅格局,三面采光,景观无敌,厨房带1个生活阳台,双景观阳台设计,只做了4+1房,户型设计非常奢侈,西朝向。
项目毗邻沙河东路,950米达深南大道;驾车1.5公里进入北环大道,坐拥城市交通主轴,与总部经济圈紧密相连,近邻地铁1号线白石洲站,1站到达高新园,周边五轨环绕,纵横湾区主场,从容通达世界。
轨道交通:近邻地铁1号线白石洲站,一站抵达高新园、快速通达福田、罗湖、前海、宝安国际机场;周边 2、7、9、11号线环绕,驰骋交通,打破区域界限。
陆路交通:项目紧邻沙河东路,自北向南串联起京港澳高速、北环大道、深南大道、滨海大道,纵向由沙河西路、科苑路共同构成四横三纵的一体快速路网,构筑中心枢纽。
项目自带1.69万㎡商业,15分钟畅享8大国际商业中心生活圈,方大城、九方荟、欧洲城、益田假日广场、京基百纳广场、欢乐时光、万象天地、欢乐海岸等。距万象天地、益田假日广场约2.6公里,以项目为圆心,半径1.2公里范围内有万象天地、益田假日广场,实际步行距离约2.6公里,开车需10分钟左右。

项目未来会配建一个21班的幼儿园和南外教育集团的63班九年一贯制学校,可以跟住宅同步建成,现成的学校有“南外沙河小学”和“南外第二实验”
项目处于深圳最顶级的地段——深圳湾 CBD,根据2023 南山国土空间规划,此片区与科技园,后海,超总基地共同组成深圳湾 CBD。
今年拍地深圳历史最高限价地也在于此,足以代表深湾当下以及未来顶级地段的占位。
其次,项目旁边还有白石洲旧改,总建面约 550 万㎡,两倍于华润大冲的旧改项目体量,堪称深圳航母级旧改,为区域乃至深圳提供超级配套集群,将增加约 40 万方商业空间,约 5 个深圳湾万象城,3 个益田假日广场,2 个华润万象天地体量。
另外,项目 3km 内有高新园、深超总以及后海等三大总部基地环绕,贡献深圳近 1/4GDP 总量,约 208家上市公司,超 115 万高收入人群汇聚于此,未来片区内,可谓一房难求,尤其是高品质产品,未来不是有钱就能买得到的。
看完以上介绍,如需了解更多关于我们南山深业世纪山谷楼盘最新消息、剩余楼层、房价优惠活动、户型结构等情况,欢迎来电咨询我们深业世纪山谷开发商售楼处电话/预约热线:400-992-0669 中介请勿扰。
在此感谢您的认真阅读,希望为您的购房置业选择上提供帮助。想咨询了解深圳深业世纪山谷认购优惠、按时签约优惠、贷款优惠、一次性优惠、团购折扣等信息,欢迎联系南山深业世纪山谷开发商售楼处400免费服务热线:400-992-0669 (中介请勿扰),另外温馨提醒一下,因近期营销中心看房人数较多,参观样板间采取了预约制,为了不影响您的行程,过来实地看房请记得提前拨打开发商400热线进行预约,预约看房的话还可以尊享楼盘内部额外优惠,最终价格包您满意!
声明:本文由入驻焦点开放平台的作者撰写,除焦点官方账号外,观点仅代表作者本人,不代表焦点立场。
