华侨城四海华亭售楼处(欢迎您)四海华亭楼盘最新详情/房价_户型_地址_详情
扫描到手机,新闻随时看
扫一扫,用手机看文章
更加方便分享给朋友
深圳华侨城四海华亭售楼处电话_户型_地址_四海华亭房价-华侨城四海华亭楼盘
华侨城四海华亭开发商售楼处咨询|预约热线:400-992-0669(中介请勿扰)
温馨提示:来电可了解楼盘最新动态、房价、在售房源、交楼时间等信息!让你买的放心,住的舒心!

深圳龙华区地铁4号线龙胜地铁站旁新楼盘——华侨城·四海华亭,项目已经开放,整个项目本次推出产品共计为1044套,建面约87-95-105-112-120三房与四房,项目位于龙华4号线龙胜地铁站旁,相距约700米。

华侨城·四海华亭 为涵盖商业、住宅、公寓的综合体大盘。项目总建筑面积约56.3万平米,共由5个地块组成。项目首推位于05地块四海华亭·龙胜云坊的公寓,总建面约3.7万㎡。其中,《龙胜云坊》项目占比面积约1.17万㎡,规划总建筑面积约12.53万㎡,计容积率面积约9.38万,包含住宅约2.86万㎡,商务公寓约3.69万㎡,商业约2.3万㎡,菜市场约0.15万㎡,另有部分基础配套设施等。

项目基本指标:
【开发商】深圳市协跃房地产开发有限公司
【物业】深圳市盛世嘉物业管理有限公司
【产品面积】住宅约29万㎡,商务公寓约3.7万㎡,商业5.1万㎡
【占地面积】54465㎡
【建筑面积】56.3万㎡
【容积率】6.87
【层数】一、二单元51层、三、四单元52层
【套数】约1044套
【车位】约1290个
【梯户比】3梯5户/4梯6户
【产品】建面约87-120㎡3-4房
【开发商电话】400-992-0669
【产权年限】70年
住宅交付标准:精装修
公寓交楼标准:精装修

地块前身为龙胜村城市更新单元,该更新单元共涉及5个地块,《龙胜云坊》只是其中之一,另外还有四个地块分别为《龙胜尚府》《四海华亭》《龙胜悦府》《龙胜华府》《龙胜学校》。

项目总房源1046户,由5栋建筑主体组成,机动车位1249个,容积率6.87,楼栋分布图如下:

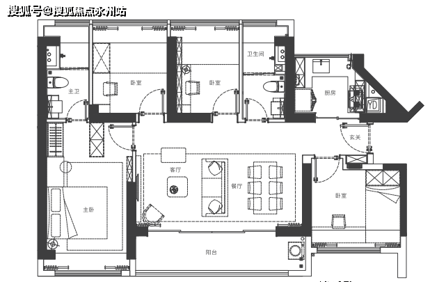
四海华亭户型鉴赏
【C2-建面约87㎡】
客餐厅一体化空间,动静分离式布局,超长玄关收纳柜体

【C3-建面约96㎡】
家政阳台定位,6人位餐厅满足多人就餐,主卧独立卫生间

【C5-建面约112㎡】
大横厅布局,超长观景阳台,卧室满面窗户,超强采光通风

【E-建面约121㎡】
大横厅布局,超长观景阳台,玄关柜餐边柜一体化设置,独立衣帽间,满足超强收纳需求

项目配套如下:
交通配套
【地铁】华侨城四海云亭距离4号地铁龙胜站与龙华站均约700米左右,3站到达深圳北站,可在深圳北站多线换乘;

教育配套
项目自带9班幼儿园,自身配建有九年一贯制弘毅学校、幼儿园,周边有龙华中心中小学、高峰学校等,且2km范围有和平实验小学、未来小学。

高峰九年制学区;其成绩多年蝉联龙华前3位置。
商业配套
项目自带部分商业可满足生活配套,步行400米港铁天颂有TIA颂荟、和平里及壹城中心商业,周边还有超级商场星河Costco,AT MALL上塘荟、红山6979商业中心。
片区发展

龙华华侨城四海华亭龙胜云坊开发商售楼处咨询/预约热线:400-992-0669 中介勿扰
来电可了解楼盘最新动态、房价、在售房源、交楼时间等信息!
温馨提示:看房请务必提前预约,避免临时无人接待,感谢您的配合!
注意:本楼盘开发商营销中心400电话没有任何“分机号”,拨号前请认真识别,注意保护个人隐私!谨防上当!
免责声明🔉:
以上所发布的关于深圳龙华华侨城四海华亭楼盘相关图文信息仅供您买房前参考,以上所有关于本楼盘的图文资料及说明请以最终官方批文及双方在楼盘营销中心现场签署的买卖最终合同为准;本图文内容如无意中侵犯到某方权益,请联系我们将会及时处理
声明:本文由入驻焦点开放平台的作者撰写,除焦点官方账号外,观点仅代表作者本人,不代表焦点立场。
